7 bedroom Character Property For Sale

Main Street, King's Newton, DE73

£1,600,000 | Available

7 Bedrooms
3 Bathrooms
5 Receptions

Ashby-de-la-Zouch

6a Bath Street, 
Ashby-de-la-Zouch, 
LE65 2FH, 
Standout Features

Property Description

Welcome to Chantry House, a once-in-a-lifetime opportunity to own a magnificent 17th-century Grade II listed gem in the heart of Kings Newton steeped in history and charm. This exquisite six-bedroom Victorian Gothic home, enthrals with its striking Ashlar stone frontage masterfully transformed in the mid-1800s, stands as a testament to the area's rich history, offering over 4,000 sqft of luxurious living space.

Upon arrival, you'll be captivated by the property's stunning stone façade and classic arched entrance, complemented by a meticulously manicured garden and lush greenery. Inside, the home boasts a thoughtfully renovated interior with exposed wooden beams, original fireplaces dated "1673," and a cosy living area perfect for family gatherings.

The heart of this home is its impressive kitchen; a former carriage house artfully transformed in 2012 by Holme Tree Bespoke Furniture. Featuring smoky taupe cabinets and contemporary appliances, all under the warmth of underfloor heated quarry tiles. The allure continues across five sophisticated reception rooms, whether dining with family or hosting guests, five reception rooms provide endless opportunities for entertaining, with a grand dining room showcasing a must-see historical ceiling strapwork.

Retreat upstairs to three elegant bathrooms and six sprawling double bedrooms, thoughtfully arranged over two floors, providing flexible accommodation options for all. The first floor is home to three stunning bedrooms, including a principal suite, while the second floor hosts another three, featuring immaculately exposed timber trusses and ample built-in storage.

Beyond the walls, discover a haven of tranquillity with secure gated access leading to a gravelled courtyard. For relaxation, enjoy the serene paved outdoor seating area or take a stroll down the charming gravel path through meticulous maintained vibrant gardens measuring approximately 3/4 acre, complete with private tennis courts and historic walled boundaries offering both leisure and the ideal setting for social gatherings.

The property's pièce de résistance is its stone-built outhouse renovated in 2007 creating a one-bedroom annex, ideal for extended family or guests.

With ample space for entertaining and family life, this timeless abode perfectly combines rustic allure with modern amenities. Seize this rare opportunity to own a piece of Derbyshire's rich heritage. Contact our Melbourne team for more information.

Nestled in the picturesque village of Kings Newton, Chantry House is more than just a home; it is an invitation to become part of a vibrant and historical community. Kings Newton, with its pastoral charm and warm, inviting atmosphere, offers a quintessentially English village life. Celebrated for its stunning vistas across the Derbyshire countryside, this area is a haven for outdoor enthusiasts, with countless walking trails and nature reserves, making it the perfect destination for those who appreciate the tranquillity of rural living.

Kings Newton is ideally situated near the historic market town of Melbourne, which is rich with heritage and community spirit. Melbourne itself is a charming blend of old-world allure and modern conveniences, replete with independent shops, cafes, and award-winning restaurants that cater to all tastes. The town is renowned for its cultural and artistic events, providing year-round entertainment and fostering a strong sense of community. This vibrant social calendar enhances the appeal for prospective buyers who value cultural engagement and community interaction.

Transport links are convenient, with proximity to major road networks that provide easy access to Derby, Nottingham, and beyond. This connectivity makes Kings Newton an ideal location for those who enjoy countryside living but require the conveniences of city life, whether for work or play. Additionally, East Midlands Airport is just a short drive away, opening the door to international travel for the jet-setter in you.

Education is also a significant consideration within the area, with a range of reputable schools nearby, making Kings Newton appealing to families seeking quality education options for their children. The community is active and family-friendly, with various local events and activities designed to engage all age groups, cementing it as a supportive and nurturing environment. EPC rating: Exempt. Council tax band: G, Tenure: Freehold,

Additional Information
Tenure:
Freehold
Council Tax Band:
G
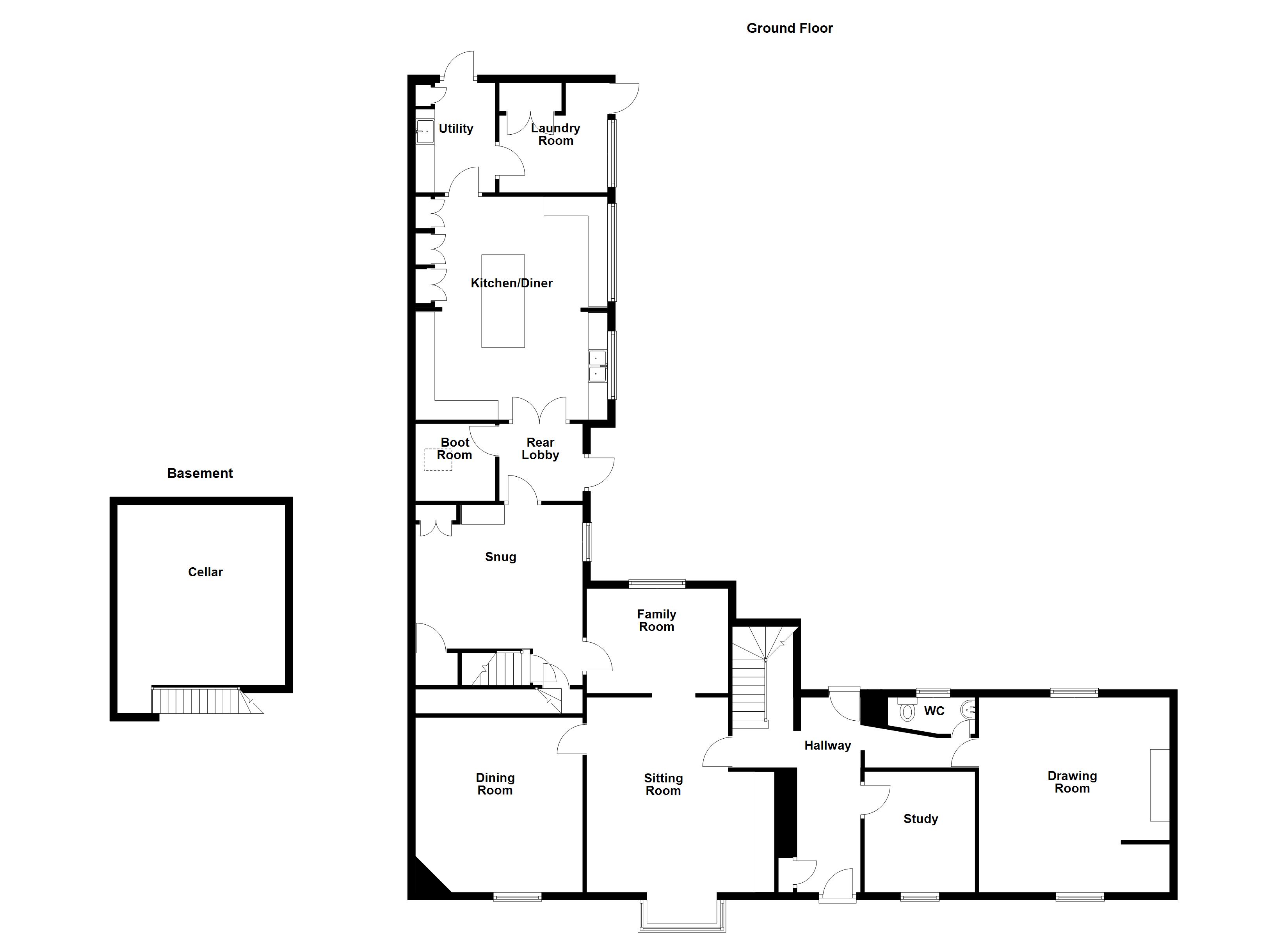
Rooms
ACCOMMODATION
ENTRANCE HALLWAY
5.56m x 1.64m (18'3" x 5'5")
DRAWING ROOM
5.14m x 4.9m (16'10" x 16'1")
STUDY
3.11m x 2.81m (10'2" x 9'3")
CLOAKROOM/W.C.
2.23m x 1.82m (7'4" x 6'0")
SITTING ROOM
5.07m x 4.23m (16'8" x 13'11")
FORMAL DINING ROOM
4.5m x 4.32m (14'9" x 14'2")
FAMILY ROOM
3.95m x 2.7m (13'0" x 8'10")
SNUG
4.55m x 4.22m (14'11" x 13'10")
REAR LOBBY
2.23m x 1.99m (7'4" x 6'6")
BOOT ROOM
2.24m x 1.71m (7'4" x 5'7")
BESPOKE LIVING KITCHEN
5.75m x 4.96m (18'10" x 16'3")
UTILITY ROOM
2.84m x 1.86m (9'4" x 6'1")
LAUNDRY ROOM
2.74m x 2.64m (9'0" x 8'8")
CELLAR
4.65m x 3.94m (15'3" x 12'11")
FIRST FLOOR ACCOMMODATION
BEDROOM ONE
5.41m x 4.04m (17'9" x 13'3")
BEDROOM FIVE
4.46m x 4.18m (14'8" x 13'9")
BEDROOM SIX
5.31m x 3.59m (17'5" x 11'9")
GUEST BATHROOM
3.64m x 1.56m (11'11" x 5'1")
MODERN SHOWER ROOM
2.78m x 1.91m (9'1" x 6'3")
TRADITIONAL ROLLTOP BATHROOM
2.81m x 2.28m (9'3" x 7'6")
SECOND FLOOR ACCOMMODATION
BEDROOM TWO
5.32m x 5.04m (17'5" x 16'6")
BEDROOM THREE
5.01m x 4.05m (16'5" x 13'3")
BEDROOM FOUR
4.6m x 3.88m (15'1" x 12'9")
ANNEX ACCOMMODATION
OPEN PLAN LIVING KITCHEN
4.44m x 4.18m (14'7" x 13'9")
ANNEX BEDROOM
4.47m x 4.24m (14'8" x 13'11")
ANNEX BATHROOM
2.53m x 1.58m (8'4" x 5'2")
COUNCIL TAX BAND:-

The property is believed to be in council tax band: G

HOW TO GET THERE:-

Postcode for sat navs: DE73 8BX

PLEASE NOTE:-

We endeavour to make our sales particulars accurate and reliable, however, they do not constitute or form part of an offer or any contract and none is to be relied upon as statements of representation or fact. Any services, systems and appliances listed in this specification have not been tested by us and no guarantee as to their operating ability or efficiency is given. All measurements have been taken as a guide to prospective buyers only, and are not precise. If you require clarification or further information on any points, please contact us, especially if you are travelling some distance to view. Fixtures and fittings other than those mentioned are to be agreed with the seller by separate negotiation.


Mortgage calculator

Calculate Your Stamp Duty
£
Results
Stamp Duty To Pay:
Effective Rate:
Tax Band % Taxable Sum Tax

Main Street, King's Newton, DE73

Struggling to find a property? Get in touch and we'll help you find your ideal property.

Interested in viewing this property?
Book a Viewing
Main menu