5 bedroom Detached house For Sale

Woodhouses, Melbourne, DE73

Offers in excess of £799,950 | Available

5 Bedrooms
3 Bathrooms
3 Receptions

Ashby-de-la-Zouch

6a Bath Street, 
Ashby-de-la-Zouch, 
LE65 2FH, 
Standout Features

Property Description

Welcome to your dream home on the edge of charming Melbourne. Offered with no upward chain this stunning five-bedroom barn conversion combines rustic appeal with modern luxury, offering over 2,500 sq. ft. of exquisite living space immersed in breath-taking countryside views. The entrance reveals a spacious hallway with limestone flooring, leading to two inviting reception rooms adorned with exposed timber trusses and a striking multi-fuel fireplace.

The heart of this home is a bespoke kitchen, where handcrafted oak cabinets meet elegant granite worktops. Culinary enthusiasts will delight in the impressive Belling cooker and the generous dining area enhanced by floor-to-ceiling French doors that open onto a tranquil courtyard. A cozy utility room complements the kitchen with additional bespoke storage and practical amenities.

Up the oak staircase, the master suite is a sanctuary of comfort, featuring a vaulted ceiling, rustic stone wall, exclusive balcony, and a stylish en-suite. A versatile adjacent room serves as a fifth bedroom or dressing area. Discover three additional well-appointed bedrooms, including one with an en-suite marked by a lavish freestanding bath.

The beautifully landscaped third-acre plot beckons with its expansive lawn, inviting patios, and serene spaces perfect for relaxation or alfresco dining. Secure electric gates introduce you to a capacious driveway and a versatile garage/workshop, offering extra space with a part converted games room or even bedroom.

This exquisite family home awaits your exploration. Schedule a viewing today to experience its captivating charm first hand. Don’t let this unique opportunity slip away! Contact our Melbourne team today to arrange your visit.

Melbourne, located in the heart of Derbyshire, is a charming and historic market town that offers a picturesque setting paired with modern conveniences. Known for its rich heritage, the town boasts beautiful Georgian architecture and offers a variety of local amenities, including boutique shops, traditional pubs, and cozy cafés. Melbourne's vibrant community spirit is reflected in its frequent local events, ensuring residents are always engaged and immersed in the town's culture.

The area surrounding Melbourne is celebrated for its stunning natural beauty. Nestled on the edge of the National Forest, it offers an abundance of opportunities for outdoor enthusiasts to enjoy activities such as walking, cycling, and nature observing. Nearby attractions include the beautiful Melbourne Hall and Gardens, providing a glimpse into the area's historical significance and a perfect setting for leisurely strolls. The semi-rural location of the property ensures residents benefit from tranquil countryside views while remaining well-connected to surrounding areas.

Melbourne is known for its excellent educational facilities, making it an ideal location for families. A range of highly regarded primary and secondary schools serve the area, ensuring quality education options are readily available. The presence of community facilities like the Melbourne Sports Park extends further opportunities for family-friendly activities, promoting an active and healthy lifestyle. EPC rating: C. Council tax band: G, Tenure: Freehold,

Additional Information
EPC Rating:
C
Tenure:
Freehold
Council Tax Band:
G
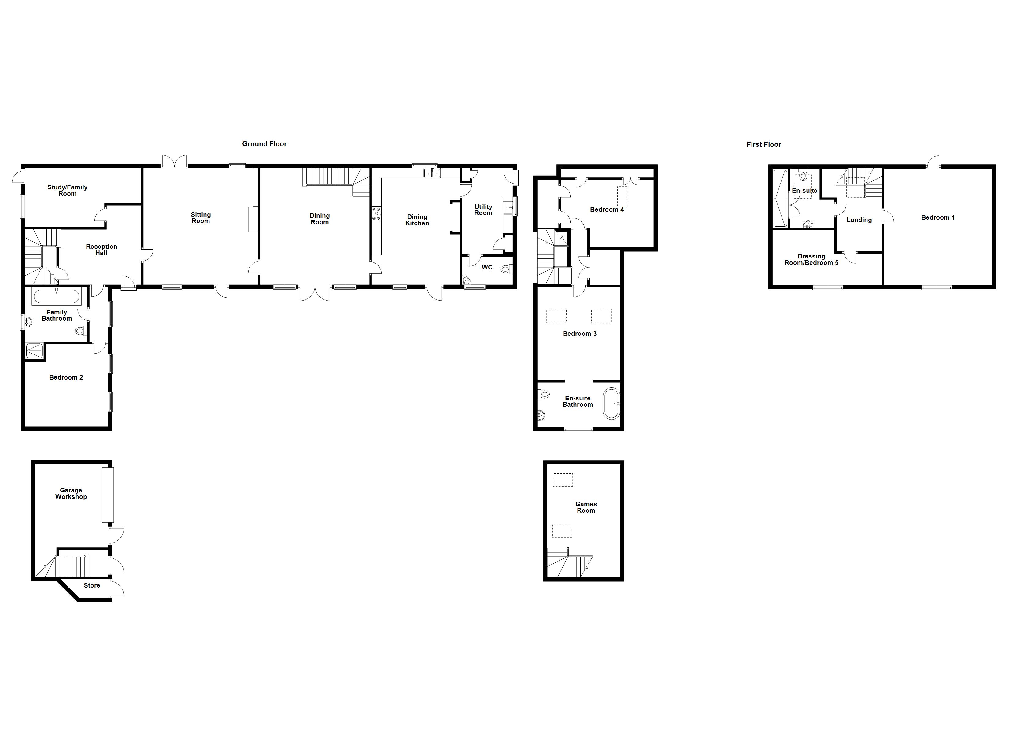
Rooms
ACCOMMODATION
ENTRANCE HALLWAY
4.62m x 2.13m (15'2" x 7'0")
VAULTED BEAMED LIVING ROOM
6.25m x 5.06m (20'6" x 16'7")
SEPARATE DINING ROOM
4.99m x 4.51m (16'4" x 14'10")
DINING KITCHEN
4.59m x 4.52m (15'1" x 14'10")
UTILITY ROOM
4.08m x 1.68m (13'5" x 5'6")
CLOAKROOM/W.C.
1.68m x 0.94m (5'6" x 3'1")
STUDY/FAMILY ROOM
4.65m x 2.79m (15'3" x 9'2")
GROUND FLOOR BATHROOM
3.22m x 1.98m (10'7" x 6'6")
GROUND FLOOR BEDROOM TWO
3.83m x 3.13m (12'7" x 10'3")
FIRST FLOOR ACCOMMODATION
MASTER BEDROOM
4.71m x 4.49m (15'5" x 14'9")
DRESSING ROOM/BEDROOM FIVE
4.36m x 2.95m (14'4" x 9'8")
EN-SUITE BATHROOM
2.46m x 2.06m (8'1" x 6'9")
SECOND FIRST FLOOR ACCOMMODATION
BEDROOM THREE
4.27m x 3.31m (14'0" x 10'10")
EN-SUITE BATHROOM
2.81m x 2.07m (9'3" x 6'9")
BEDROOM FOUR
3.85m x 2.99m (12'8" x 9'10")
GARAGE/WORKSHOP
5.93m x 4.16m (19'5" x 13'8")
GAMES ROOM
5.63m x 3.73m (18'6" x 12'3")
COUNCIL TAX BAND:-

The property is believed to be in council tax band: G

HOW TO GET THERE:-

Postcode for sat navs: DE73 8DN

PLEASE NOTE:-

We endeavour to make our sales particulars accurate and reliable, however, they do not constitute or form part of an offer or any contract and none is to be relied upon as statements of representation or fact. Any services, systems and appliances listed in this specification have not been tested by us and no guarantee as to their operating ability or efficiency is given. All measurements have been taken as a guide to prospective buyers only, and are not precise. If you require clarification or further information on any points, please contact us, especially if you are travelling some distance to view. Fixtures and fittings other than those mentioned are to be agreed with the seller by separate negotiation.


Mortgage calculator

Calculate Your Stamp Duty
£
Results
Stamp Duty To Pay:
Effective Rate:
Tax Band % Taxable Sum Tax

Woodhouses, Melbourne, DE73

Struggling to find a property? Get in touch and we'll help you find your ideal property.

Interested in viewing this property?
Book a Viewing
Main menu