5 bedroom Detached house Sold STC

North Road, Retford, DN22

£450,000 | SSTC

5 Bedrooms
2 Bathrooms
2 Receptions

Retford

7 New Street, 
Retford, 
DN22 6EG, 
Standout Features

Property Description

Offered for sale with no onward chain, this substantial and character-rich four-bedroom detached residence presents a rare opportunity on one of Retford’s most sought-after roads.

Blending traditional charm with generous proportions, the home also benefits from a modern, self-contained one-bedroom annexe — perfectly suited for extended family members, independent teenagers, guest accommodation or potential supplementary income.

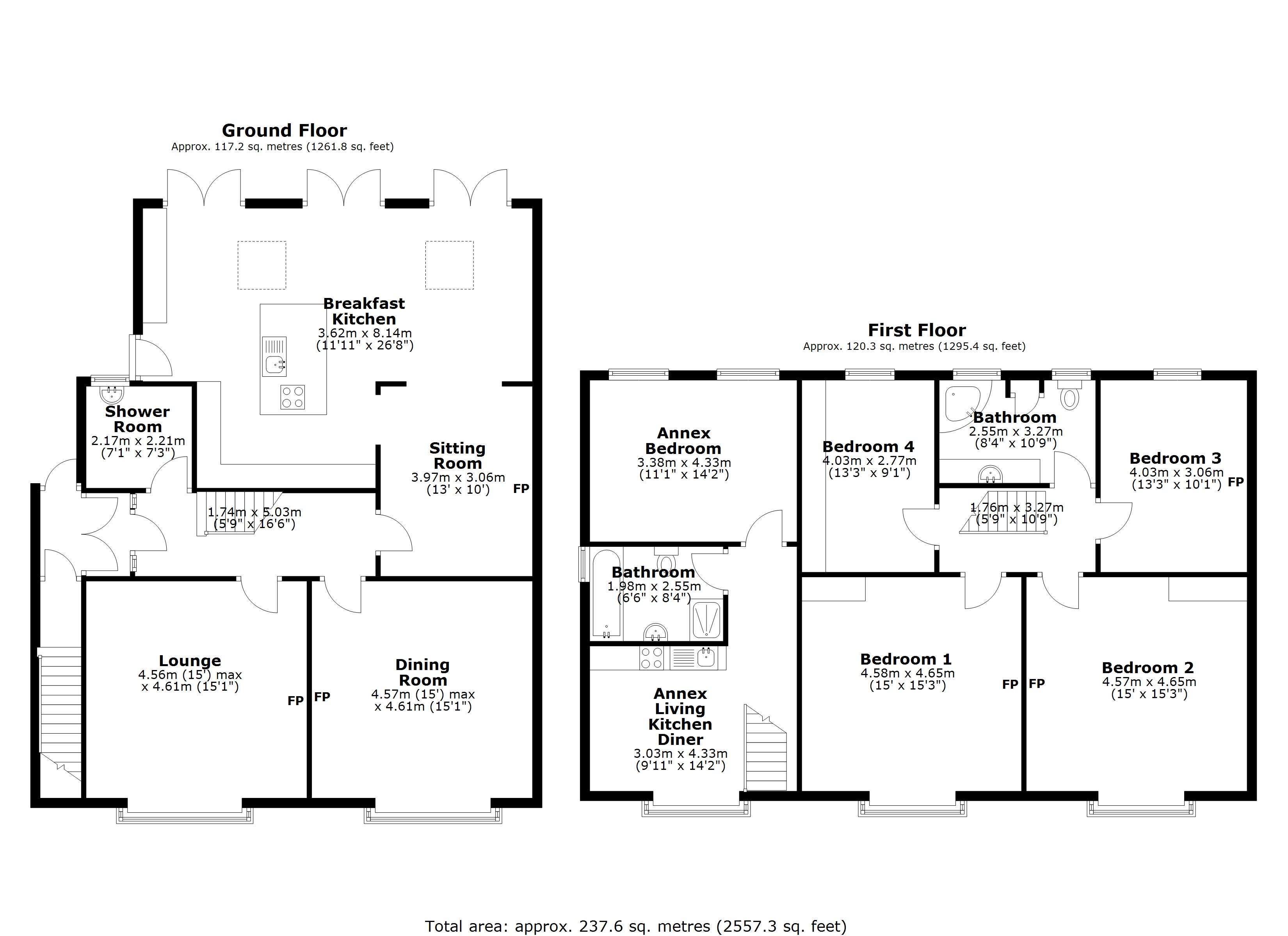
The principal accommodation includes a welcoming entrance hall, elegant lounge and formal dining room, additional sitting room, spacious breakfast kitchen, contemporary ground floor shower room, four well-proportioned bedrooms and a family bathroom.

Externally, the property offers extensive parking via a large private driveway leading to a sheltered carport and detached single garage. The rear garden is predominantly laid to lawn with a pleasant breakfast terrace — ideal for outdoor dining.

Positioned on prestigious North Road, the property enjoys close proximity to Retford town centre, well-regarded schools including Carr Hill Primary & Nursery School and The Elizabethan Academy, and excellent road and rail connections.

Early viewing is strongly recommended to fully appreciate the scale, flexibility and location on offer. EPC rating: C. Council tax band: E, Tenure: Freehold,

Additional Information
EPC Rating:
C
Tenure:
Freehold
Council Tax Band:
E
Rooms
Porch

Accessed via composite entrance door, with staircase rising to the first-floor annexe and internal access to:

Inner Porch

Featuring French doors opening into:

Entrance Hall

An impressive hallway with carved wooden staircase rising to the first floor, ceiling light point and access to principal reception rooms.

Lounge
4.57m x 4.6m (15'0" x 15'1")

A beautifully proportioned reception room showcasing an open fireplace with ornate mahogany surround and mantel. Period details include decorative cornicing, picture rail and traditional skirting boards. Bay window to the front elevation and ceiling rose with central light fitting.

Dining Room
4.57m x 4.6m (15'0" x 15'1")

Equally impressive in scale, featuring a log burner set upon a raised marble hearth with floating oak mantel. Original decorative detailing continues, along with a front-facing bay window and feature ceiling rose.

Sitting Room
3.05m x 3.96m (10'0" x 13'0")

A versatile additional reception space with chimney breast alcove, wood-effect flooring, ceiling light point and decorative downlighting. Archways lead through to:

Breakfast Kitchen
3.63m x 8.15m (11'11" x 26'9")

A striking vaulted kitchen and family space flooded with natural light. Fitted with an extensive range of oak shaker-style cabinetry complemented by granite worktops and central island.
Integrated appliances include a five-ring gas hob, full-height fridge and freezer, oven, combination microwave and wine cooler. Space and plumbing for washing machine and dishwasher.
Travertine flooring with underfloor heating, multiple Velux windows and three sets of French doors opening onto the rear terrace. Internal access to the carport.

Ground Floor Shower Room
2.16m x 2.21m (7'1" x 7'3")

Modern three-piece suite comprising floating vanity unit with wash basin, WC and generous walk-in rainfall shower. Fully tiled walls and flooring, chrome heated towel rail and obscured rear window.

First Floor Landing

Spacious galleried landing with loft access and central light point.

Bedroom One
4.57m x 4.65m (15'0" x 15'3")

An elegant bedroom with decorative fireplace, fitted storage, original cornicing and picture rail. Bay window to the front elevation.

Bedroom Two
4.57m x 4.65m (15'0" x 15'3")

Another generous double bedroom with decorative fireplace, built-in storage and front-facing bay window.

Bedroom Three
3.05m x 4.04m (10'0" x 13'3")

Featuring a Victorian-style fireplace and fitted wardrobes with shelving and drawers. Window overlooking the rear garden.

Bedroom Four
2.77m x 4.04m (9'1" x 13'3")

Fitted bedroom furniture including wardrobes and overhead storage. Rear-facing window.

Family Bathroom
2.54m x 3.28m (8'4" x 10'9")

Well-sized bathroom comprising vanity wash basin, WC and corner bath. Storage cupboard housing boiler and hot water cylinder. Fully tiled walls, heated towel rail and two obscured rear windows.

First Floor Annexe

Accessed via staircase from the porch.

Open Plan Kitchen / Living Area
4.34m x 5.11m (14'3" x 16'9")

Fitted with base units, laminate worktops and tiled splashback. Stainless steel sink, integrated hob and oven, space for undercounter fridge. Bay window to the front and recessed lighting.

Bedroom
3.38m x 4.34m (11'1" x 14'3")

Two rear-facing windows and downlighting.

Bathroom
1.98m x 2.54m (6'6" x 8'4")

Four-piece suite including bath, separate shower enclosure, pedestal basin and WC. Fully tiled with heated towel rail and obscured side window.

Outside

The frontage is partially enclosed by brick walling and offers a substantial private driveway providing parking for multiple vehicles. The driveway extends beneath a sheltered carport to a detached single garage. Outdoor tap and security lighting are installed.
To the rear, the garden is enclosed by brick walling and timber fencing and is predominantly laid to lawn with a designated breakfast terrace and exterior lighting.

Disclaimer

Every care has been taken with the preparation of these Particulars but complete accuracy cannot be guaranteed, If there is any point, which is of particular importance to you, please obtain professional confirmation. Alternatively, we will be pleased to check the information for you. These Particulars do not constitute a contract or part of a contract. The floor plan shown in these particulars is for illustrative purposes only and should not be interpreted as a scaled drawing. Any site measurements given are subject to site survey.

Services

We wish to advise prospective purchasers that we have not tested the services or any of the equipment or appliances in this property, accordingly we strongly advise prospective purchasers to commission their own survey or service reports before finalising their offer to purchase.


Mortgage calculator

Calculate Your Stamp Duty
£
Results
Stamp Duty To Pay:
Effective Rate:
Tax Band % Taxable Sum Tax

North Road, Retford, DN22

Struggling to find a property? Get in touch and we'll help you find your ideal property.

Interested in viewing this property?
Book a Viewing
Main menu