4 bedroom Detached house For Sale

Sutton Lane, Sutton cum Lound, DN22

Guide Price £350,000 | Available

4 Bedrooms
2 Bathrooms
2 Receptions

Retford

7 New Street, 
Retford, 
DN22 6EG, 
Standout Features

Property Description

Period Charm Meets Practical Living at 2 Sutton Lane

** GUIDE PRICE £350,000 - £360,000 **

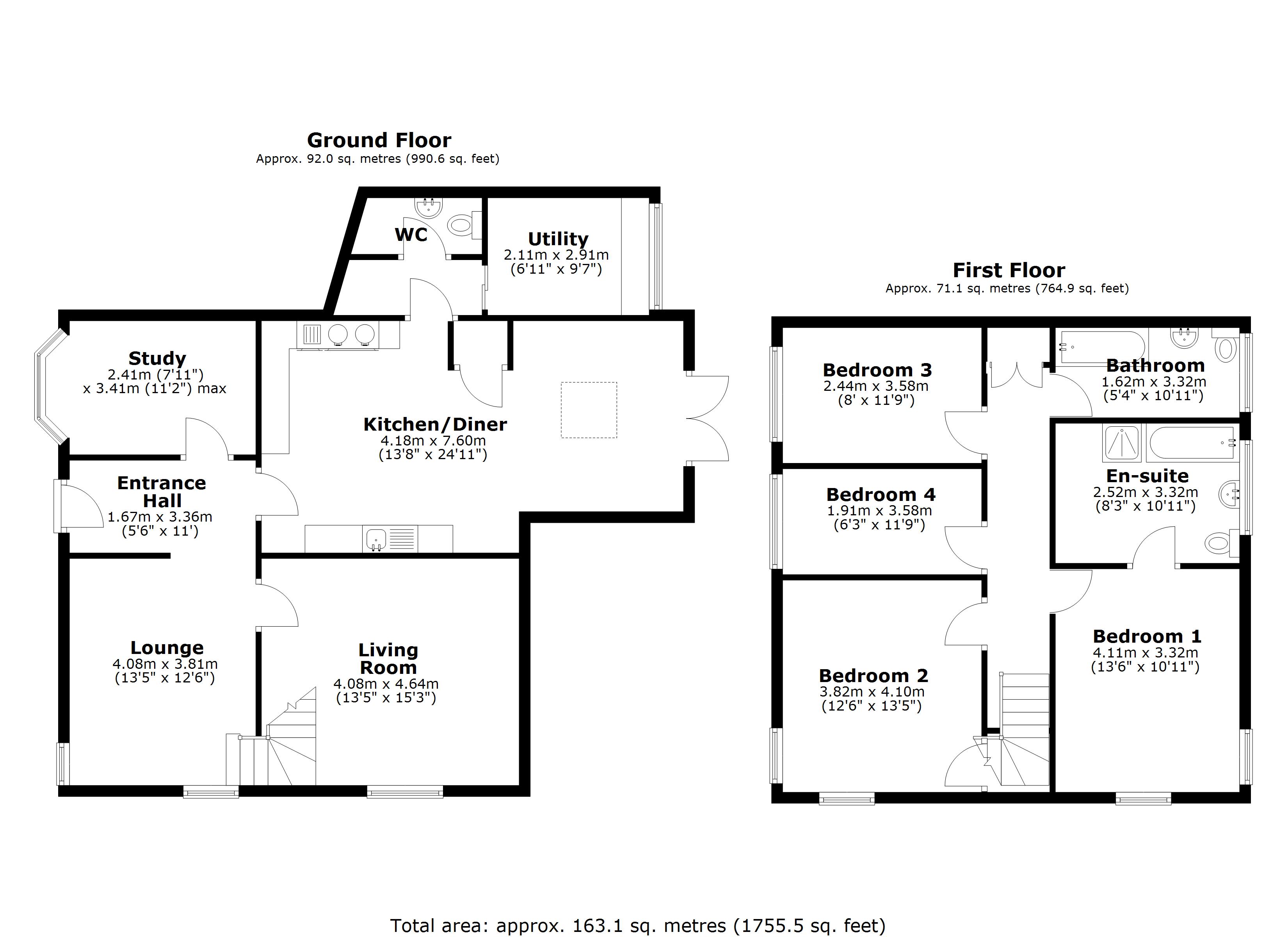
This attractive four-bedroom family home in need of updating throughout seamlessly blends period charm, including sash windows and two working fireplaces, with modern convenience. The heart of the house is the characterful Kitchen Diner, which features an AGA cooker, a Butler-style sink, exposed beams, and French doors leading directly to the private rear patio. Ground floor living space is versatile, offering a traditional lounge, a bright front reception area, a dedicated study, and practical amenities like a downstairs WC and a utility room.

The first floor provides four comfortable bedrooms. The spacious Master Bedroom benefits from fitted storage and a full Ensuite complete with both a bath and a quadrant shower cubicle. The remaining three bedrooms share a well-appointed Main Bathroom. Outside, the property is set just off the village's main road and includes a Northwest-facing, enclosed rear garden with both a lawn and a patio area for entertaining, along with the convenience of a small detached garage and additional storage outbuildings. EPC rating: D. Council tax band: E, Tenure: Freehold,

Additional Information
EPC Rating:
D
Tenure:
Freehold
Council Tax Band:
E
Rooms
Entrance Hallway

Features exposed woodwork and a solid wooden front door.

Lounge
4.08m x 3.81m (13'5" x 12'6")

Two sash windows to the front and right aspects, a single panel radiator, wooden flooring throughout, and a fireplace with a surround.

Living Room
4.08m x 4.64m (13'5" x 15'3")

A window to the right aspect, a single panel radiator, a TV point, and an under-stairs space suitable for storage or a small office area. Includes a fireplace and surround.

Downstairs WC

A single-flush WC and a wall-mounted wash handbasin.

Utility Room

A double-glazed window to the rear aspect, and space and plumbing for a washing machine and wall-mounted cupboards.

Kitchen Diner
7.6m x 4.18m (24'11" x 13'9")

The Kitchen Diner is a spacious area featuring French doors that lead out to the rear patio, complete with matching side lights and double-glazed glass. It includes a TV point, a double panel radiator, and a good complement of floor and wall-mounted cupboards. The room provides space for a large American-style fridge freezer, and is equipped with a double Butler-style sink with a mixer tap, as well as plumbing and space for a freestanding Dishwasher. Character is added by a double-glazed fixed (or Velux) window with exposed beam work, an AGA cooker, and tile flooring that runs throughout the space.

Study
2.41m x 3.41m (7'11" x 11'2")

A double panel radiator with a window and exposed beam work.

Stairs & First Floor Landing

Stairs lead from the entrance hallway to the first-floor landing, which features a stair window, a single panel radiator, an airing cupboard, and access to the loft.

Bedroom One
4.11m x 3.32m (13'6" x 10'11")

Two sash windows to the right rear aspect, a double panel radiator, fitted storage, and a TV point.

En-suite
2.52m x 3.32m (8'3" x 10'11")

Includes an airing cupboard, a double panel radiator, a wall-mounted towel rail, a wash handbasin on a pedestal, a single-flush WC, a single panel bath with a mixer tap and shower attachment, and a quadrant shower cubicle with an electric wall-mounted shower. Features a double-glazed obscure glass window to the rear aspect.

Bedroom Two
3.82m x 4.1m (12'6" x 13'5")

Windows to the right and front aspects, a double panel radiator, a storage cupboard, and a TV point.

Bedroom Three
2.44m x 3.58m (8'0" x 11'9")

Window to front aspect, single panel radiator, and TV point throughout.

Bedroom Four
1.91m x 3.58m (6'3" x 11'9")

Sash window to the front of the property and a TV point throughout.

Bathroom
1.62m x 3.32m (5'4" x 10'11")

A double panel radiator, a double-glazed obscure glass window to the rear aspect, a wall-mounted heated towel rail, a dual-flush WC, a wash handbasin on a pedestal with a mixer tap, and a single panel bath with a mixer tap and showerhead attachment. Includes a shower screen and a wall-mounted shower control.

Gardens & Grounds

Exterior and Approach:

Location & Front: The property is situated just off the main road entering the village. It features a small lawn area and a path leading to the solid wooden front door.

Front Reception Area: Two sash windows to the front and right aspects, a single panel radiator, wooden flooring throughout, and a fireplace with a surround.
Rear Garden: A private and enclosed garden with a patio area for entertaining and a lawn area. It faces Northwest.

Outbuildings: Includes a small detached garage at the front and a detached outbuilding for storage in the rear garden. There are no additional attached outdoor buildings.

Access: Side access is available to the rear garden.

Disclaimer

Every care has been taken with the preparation of these Particulars but complete accuracy cannot be guaranteed, If there is any point, which is of particular importance to you, please obtain professional confirmation. Alternatively, we will be pleased to check the information for you. These Particulars do not constitute a contract or part of a contract. The floor plan shown in these particulars is for illustrative purposes only and should not be interpreted as a scaled drawing. Any site measurements given are subject to site survey.

Services

We wish to advise prospective purchasers that we have not tested the services or any of the equipment or appliances in this property, accordingly we strongly advise prospective purchasers to commission their own survey or service reports before finalising their offer to purchase.


Mortgage calculator

Calculate Your Stamp Duty
£
Results
Stamp Duty To Pay:
Effective Rate:
Tax Band % Taxable Sum Tax

Sutton Lane, Sutton cum Lound, DN22

Struggling to find a property? Get in touch and we'll help you find your ideal property.

Interested in viewing this property?
Book a Viewing
Main menu