4 bedroom Detached house For Sale

Bitham Court, Stretton, Burton-on-Trent, DE13

£395,000 | Available

4 Bedrooms
2 Bathrooms
2 Receptions

Burton on Trent

36 Station Street, 
Burton on Trent, 
DE14 1AX, 
Standout Features

Property Description

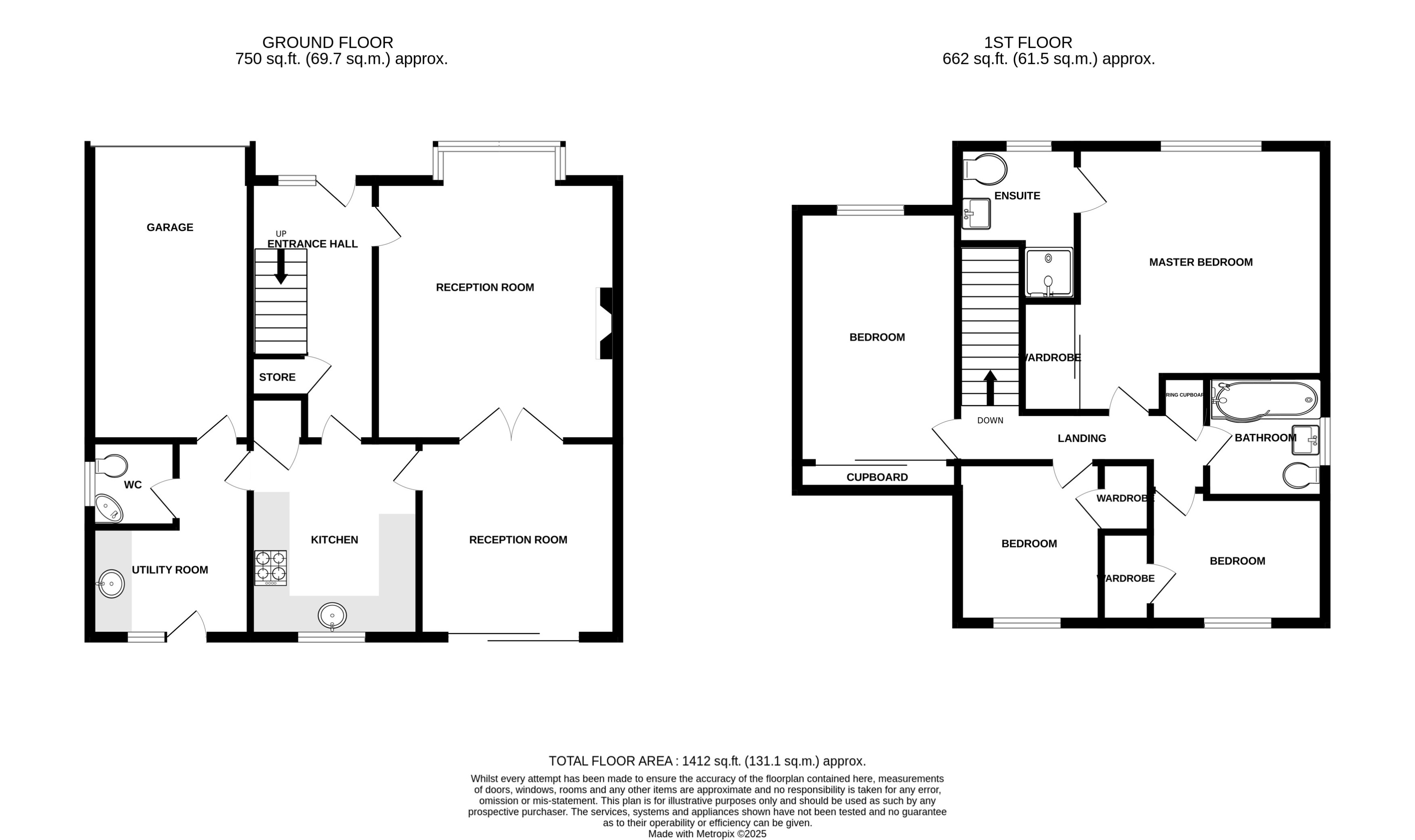
***  No Upward Chain  ***   Situated on this ever popular small and select development this impressive well proportioned and beautifully presented home is worthy of an internal inspection in order to appreciate the accommodation on offer.  In brief the accommodation comprises: - open canopied entrance, spacious entrance hall, bay windowed lounge, dining room, fitted kitchen, large utility room and guest cloak room.  On the first floor a landing leads to four well proportioned bedrooms, en-suite to master bedroom and family bathroom.  Outside are beautifully maintained gardens to both front and rear and a driveway to the front leads to the garage. EPC rating: D. Council tax band: E, Tenure: Freehold,

Additional Information
EPC Rating:
D
Tenure:
Freehold
Council Tax Band:
E
Rooms
Accommodation In Detail
Open Canopied Entrance

having quarry tiled floor and hardwood entrance door with obscure leaded glazed light to side leading to:

Entrance Hall
4.22m x 1.8m (13'10" x 5'11")

having staircase rising to first floor, coving to ceiling, fitted smoke alarm, one central heating radiator and thermostatic control for central heating and useful understairs storage cupboard.

Front Sitting Room
4.06m x 4.22m extending to 5.1m into bay

having Upvc double glazed walk-in square bay window to front elevation, coving to ceiling, two central heating radiators, feature Sandstone fireplace with matching hearth and backplate together with inset living flame gas fire and double doors opening through into:

Dining Room
3.14m x 3.3m (10'4" x 10'10")

having sliding double glazed patio doors opening out to the rear patio, coving to ceiling and one central heating radiator.

Fitted Kitchen
2.7m x 3.3m (8'10" x 10'10")

having a lovely array of maple fronted base and eye level units with complementary rolled edged working surfaces, stainless steel sink with mixer tap over, four ring gas hob with extractor over, built-in double oven/microwave, integrated fridge/freezer and dishwasher, one central heating radiator, low intensity spotlights to ceiling and Upvc double glazed picture window overlooking the rear garden.

Utility Room
3.3m x 2.4m (10'10" x 7'10")

having a good array of maple fronted base and wall mounted units with complementary rolled edged working surfaces, plumbing for washing machine, ceramic tiling to floor, stainless steel sink with mixer tap over, low intensity spotlights to ceiling, access to loft half obscure glazed door to rear, Upvc double glazed window to rear elevation, courtesy access door to garage, one central heating radiator, and cupboard housing Worcester condensing combi gas fired central heating boiler.

Guest Cloak Room

having low level wc, corner wash basin, ceramic tiling to floor, one central heating radiator and obscure Upvc double glazed window to side elevation.

On The First Floor
Landing

having fitted smoke alarm, access to loft via retractable ladder and large full height airing cupboard having one central heating radiator and shelving.

Master Bedroom
4.1m x 2.87m extending to 3.93

having Upvc double glazed window to front elevation, one central heating radiator, low intensity spotlights to ceiling and mirror fronted double wardrobes.

En-Suite Shower

having three piece suite comprising low level wc with concealed cistern, vanity wash basin with cupboards under, wall mounted cupboards, shower enclosure with thermostatically controlled shower, extractor vent, heated chrome ladder towel radiator and obscure Upvc double glazed window to front elevation.

Bedroom Two
2.4m x 3.54m (7'10" x 11'7")

having Upvc double glazed window to front elevation, one central heating radiator and mirrored triple wardrobes.

Bedroom Three
2.93m x 2.41m (9'7" x 7'11")

having Upvc double glazed window to rear elevation, one central heating radiator and built-in wardrobe.

Bedroom Four
2.74m x 2.18m (9'0" x 7'2")

having Upvc double glazed window to rear elevation, one central heating radiator and built-in wardrobe.

Family Bathroom

having modern white suite comprising vanity wash basin with cupboards under, low level wc with concealed cistern, P-shaped bath with curved shower screen and thermostatically controlled shower, range of cupboards, obscure Upvc double glazed window to side elevation, full tiling complement to walls, low intensity spotlights to ceiling and chrome ladder towel radiator.

Outside

There is a pleasant fore garden with circular edged lawn and various mature shrubs. A double width tarmacadam driveway provides ample parking and leads to the attached garage. To the rear is a very pleasant, secluded garden screened well by timber fencing and featuring a large flagged patio, shaped lawns, herbaceous borders, seating area and the garden having a lovely aspect.

Garage
5.05m x 2.44m (16'7" x 8'0")

having up and over door, electric light and power.

Services

All mains services are believed to be connected to the property.

Measurement

The approximate room sizes are quoted in metric. The imperial equivalent is included in brackets.

Tenure

Freehold - with vacant possession upon completion. Newton Fallowell recommend that purchasers satisfy themselves as to the tenure of the property and we would recommend that they consult a legal representative such as a Solicitor appointed in their purchase.

Note

The services, systems and appliances listed in this specification have not been tested by Newton Fallowell and no guarantee as to their operating ability or their efficiency can be given.


Mortgage calculator

Calculate Your Stamp Duty
£
Results
Stamp Duty To Pay:
Effective Rate:
Tax Band % Taxable Sum Tax

Bitham Court, Stretton, Burton-on-Trent, DE13

Struggling to find a property? Get in touch and we'll help you find your ideal property.

Interested in viewing this property?
Book a Viewing
Main menu