4 bedroom Barn Conversion For Sale
£650,000 | Available
This distinguished four-bedroom barn conversion presents an exceptional opportunity for those seeking a home with both character and contemporary refinement. Situated in a quiet and rural location within Elkesley, Nottinghamshire, the property offers an impressive blend of original features and modern finishes. Architecturally striking, the building retains its intrinsic charm while having undergone an exquisite transformation to create an inviting, highly practical living space suitable for modern lifestyles.
The residence features a spacious high specification kitchen/living/diner, designed to provide a practical and welcoming environment for family meals and entertaining guests. Large aluminium windows, recently installed, maximise natural light throughout the property, enhancing the sense of space and spotlighting the balance between the building's heritage and its sophisticated updates. The interior layout is complemented by three versatile public rooms, providing ample space for relaxation, dining, and flexible family living.
Across the four bedrooms, comfort and privacy are ensured, with the master and further bedrooms accommodating family or guest needs with ease. The property also benefits from two well-appointed bathrooms, contributing further to its overall appeal.
Externally, this home stands out with a substantial private garden, offering space for recreation and tranquil outdoor enjoyment. A double garage and large block paved driveway provide generous parking for multiple vehicles and convenient access for residents and visitors alike. LPG heating serves the property, supporting effective climate control throughout the seasons as well as two 8.5KW woodburning Stovax stoves.
The property is available on a freehold tenure. EPC rating is 'E'.
Local area
Elkesley is a charming rural village positioned within Nottinghamshire, offering a peaceful setting with a strong sense of community. Elkesley has easy access to Clumber Park, a village primary school and is in the catchment area of Tuxford Academy. The location benefits from excellent transport links, connecting residents to nearby towns and key regional destinations. Surrounded by countryside yet within reach of necessary amenities, Elkesley successfully combines rural tranquillity with accessibility, making it a desirable setting for both families and professionals. EPC rating: E. Council tax band: G, Tenure: Freehold,
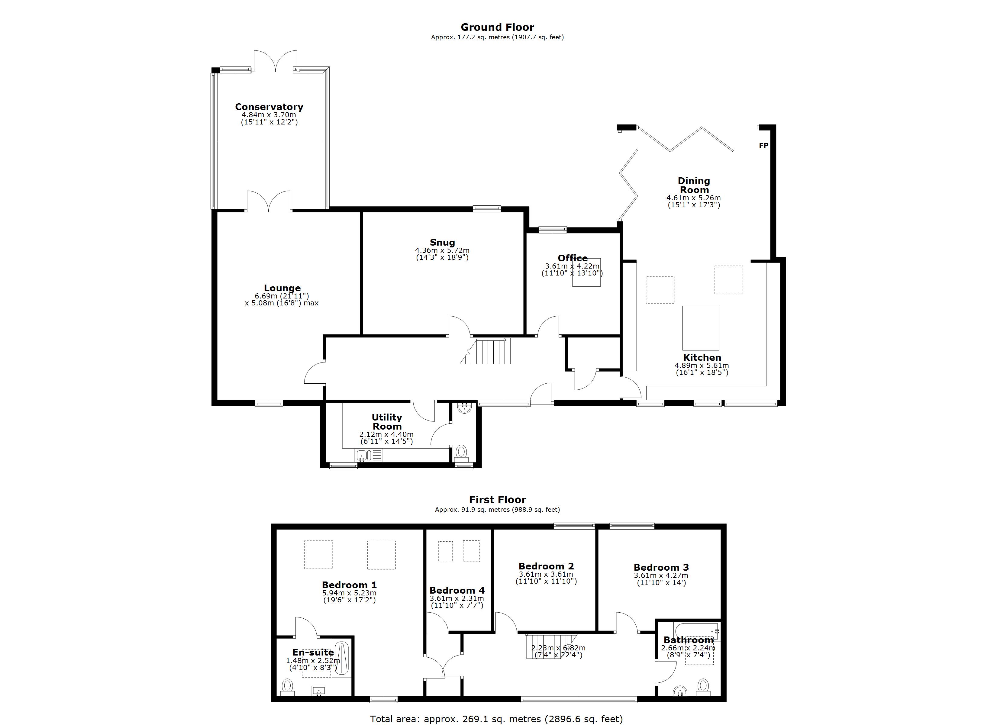
Large UPVC front door with four double-glazed windows to the front aspect. Broadleaf solid oak flooring continues through from the kitchen and dining area.
Two panel radiators, storage cupboard and an elegant wooden staircase with glass inserts leading to the first floor. Useful space beneath the stairs for additional storage.
Impressive high vaulted ceilings with exposed beamwork and three double-glazed windows to the front aspect.
The Haecker-Kuechen kitchen is fitted with a plethora of Neff Kitchen appliances: Two integrated Ovens, Induction Hob, Extractor, Microwave, Warming Tray and Dish Washer. The central island offers the perfect place to cook and catch up after a busy day.
Additional features include tall wall-mounted radiators and two Velux windows, allowing for plenty of natural light.
Open-plan from the kitchen, featuring Broadleaf solid oak flooring continued throughout. Two sets of bi-fold doors open onto the rear patio, overlooking the raised patio and tiered lawn garden.
The space also benefits from a large wall-mounted radiator, TV point and a Stovax log burner, creating a perfect entertaining and family area.
Double-glazed windows to the rear aspect, panel radiator and TV point. A cosy secondary reception space.
Double-glazed window to the front aspect. Fitted floor-mounted cupboards providing ample storage for coats and shoes.
Bowl-and-a-quarter sink with drainer, space and plumbing for washing machine, space for tumble dryer and housing for the LPG gas-fired combi boiler. Tall wall-mounted radiator.
Obscure double-glazed window to the front aspect. Low-level flush WC, wash hand basin with mixer tap set within a vanity unit and wall-mounted heater.
Double-glazed window to the front aspect and French doors leading to the conservatory. Carpeted throughout with panel radiator, built-in media wall unit and Stovax log burner.
Brick-built lower walls with double glazing to three aspects and French doors opening onto the patio and rear garden. Wooden flooring throughout, corrugated roof and tall radiator.
Double-glazed window to the rear aspect, carpeted flooring and panel radiator. Ideal for home working with ample space for two desks.
Double-glazed window to the front aspect. Wooden flooring throughout, exposed beamwork and panel radiator.
Two Velux windows and a double-glazed window to the front aspect. Exposed beamwork and brickwork. Carpeted flooring and panel radiator.
Large walk-in shower with thermostatic controls and rainfall showerhead. Wash hand basin set within a vanity unit with mixer tap. Low-level flush WC and wall-mounted heated towel rail. Velux window.
Double-glazed window to the rear aspect. Carpeted throughout with exposed brickwork and beams. Panel radiator.
Double-glazed window to the rear aspect. Exposed beams, carpeted flooring and panel radiator.
Velux windows, acoustic panelled feature wall, carpeted flooring and panel radiator.
Low-level flush WC, pedestal wash hand basin with mixer tap, panel bath with overhead Aqualisa Digital Shower and exposed beamwork. Heated towel rail and Velux window.
Block-paved driveway providing ample off-road parking, accessed via large gates. Lawned garden area and pathway leading to the front entrance.
Double garage and electric vehicle charging point.
Aluminium windows throughout the main property, with UPVC windows in the conservatory.
Every care has been taken with the preparation of these Particulars but complete accuracy cannot be guaranteed, If there is any point, which is of particular importance to you, please obtain professional confirmation. Alternatively, we will be pleased to check the information for you. These Particulars do not constitute a contract or part of a contract. The floor plan shown in these particulars is for illustrative purposes only and should not be interpreted as a scaled drawing. Any site measurements given are subject to site survey.
We wish to advise prospective purchasers that we have not tested the services or any of the equipment or appliances in this property, accordingly we strongly advise prospective purchasers to commission their own survey or service reports before finalising their offer to purchase.
| Tax Band | % | Taxable Sum | Tax |
|---|
Struggling to find a property? Get in touch and we'll help you find your ideal property.