3 bedroom Semi-detached house For Sale

Mead Walk, Stapenhill, Burton-on-Trent, DE15

£225,000 | Available

3 Bedrooms
1 Bathrooms
2 Receptions

Burton on Trent

36 Station Street, 
Burton on Trent, 
DE14 1AX, 
Standout Features

Property Description

A traditional semi detached home in this established residential location close to local amenities and local schools.  The property is complemented by a very generous mature garden with open aspects to the rear.  In brief the accommodation comprises: - entrance porch, hallway, lounge, good sized living room, kitchen and  on the first floor a landing leads to three bedrooms and bathroom.  The property is partially double glazed. EPC rating: F. Council tax band: B, Tenure: Freehold,

Additional Information
EPC Rating:
F
Tenure:
Freehold
Council Tax Band:
B
Rooms
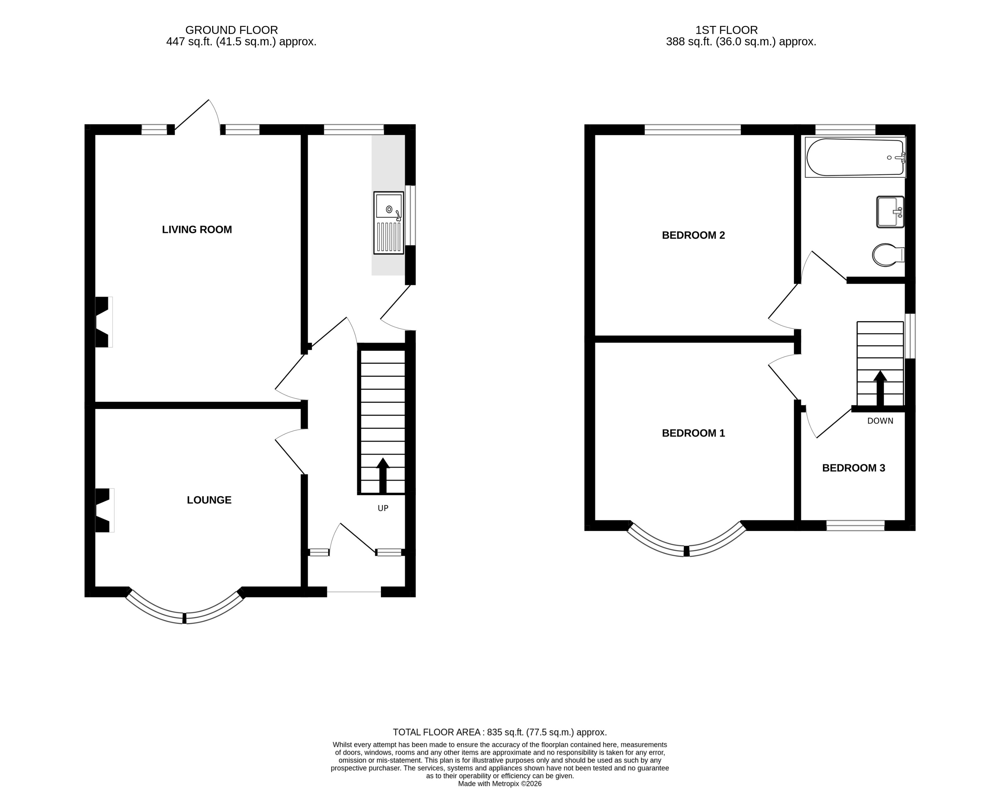
Accommodation In Detail

Glazed entrance door leading to:

Reception Hall

having staircase rising to first floor and understairs store cupboard.

Lounge
3.5m x 3.1m (11'6" x 10'2")

having gas fire and window to front elevation.

Living Room
4.63m x 3.5m (15'2" x 11'6")

having French doors to rear elevation, window to rear elevation and gas fire.

Kitchen
3.64m x 1.78m (11'11" x 5'10")

having stainless steel sink with double drainer set into work top, built-in cupboards, windows to rear and side elevations and Upvc door to side.

On The First Floor
Landing

leading to:

Bedroom One
3.15m x 3.18m (10'4" x 10'5")

having built-in cupboards and window to rear elevation.

Bedroom Two
3.5m x 3.4m (11'6" x 11'2")

having bay window to front elevation.

Bedroom Three
2.26m x 1.83m (7'5" x 6'0")

having window to front elevation.

Bathroom

having bath, wc, wash basin and window to rear elevation.

Outside

To the front of the property is a fore garden laid to grass with a driveway providing ample parking space and gives access to a detached garage. To the rear is an extensive garden which is predominantly laid to grass with some established plants, shrubs and trees. The property backs onto open fields.

Services

All mains services are believed to be connected to the property.

Measurement

The approximate room sizes are quoted in metric. The imperial equivalent is included in brackets.

Tenure

Freehold - with vacant possession upon completion. Newton Fallowell recommend that purchasers satisfy themselves as to the tenure of the property and we would recommend that they consult a legal representative such as a Solicitor appointed in their purchase.

Note

The services, systems and appliances listed in this specification have not been tested by Newton Fallowell and no guarantee as to their operating ability or their efficiency can be given.
Anti-Money Laundering Regulations – Intending purchasers will be required to provide identification documents via our compliance provider, Coadjute, at a cost of £45 plus VAT per transaction. This will need to be actioned at the offer stage and we would ask for your co-operation in order that there will be no delay in agreeing the sale.


Mortgage calculator

Calculate Your Stamp Duty
£
Results
Stamp Duty To Pay:
Effective Rate:
Tax Band % Taxable Sum Tax

Mead Walk, Stapenhill, Burton-on-Trent, DE15

Struggling to find a property? Get in touch and we'll help you find your ideal property.

Interested in viewing this property?
Book a Viewing
Main menu