3 bedroom Semi-detached house For Sale
£275,000 | Available
*** No Upward Chain *** Virtual Tour Available ***
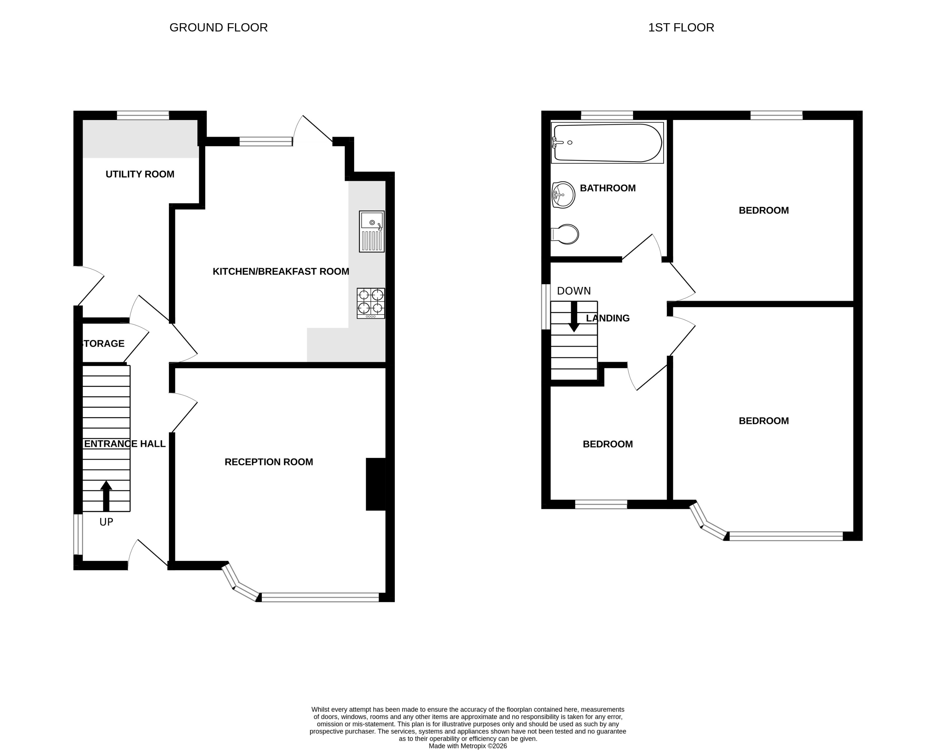
Newton Fallowell are delighted to present to the market this well presented family home set ideally for all local amenities and town centre. Occupying an enviable plot and offering modern living throughout this home comprises of in brief:- entrance hallway, reception room, kitchen/breakfast room, utility. First floor offers three well proportioned bedrooms and a family bathroom. Outside provides landscaped gardens to both front and rear as well as a single detached garage and garden room with fully equipped bar. There is an extensive lawn to the rear backing on to the brook. EPC rating: D. Council tax band: C, Domestic rates: £2007, Tenure: Freehold,
having Upvc double glazed window to side elevation, wall mounted radiator, stairs rising to first floor and under stairs storage.
having upvc double glazed bay window to front elevation, wall mounted radiator and feature gas fire.
having an array of wall and base level units, integrated dishwasher, cooker with induction hob, extractor fan over, stainless steel sink and drainer, space for fridge / freezer, stainless steel splashback surround, wall mounted radiator, Upvc double glazed window.
having wall mounted radiator, Upvc double glazed window to rear elevation, plumbing for washing machine as well as a stainless steel sink and drainer.
having Upvc double glazed window to side elevation.
having wall mounted radiator as well as Upvc double glazed bay window to front elevation.
having Upvc double glazed bay window to rear elevation and wall mounted radiator.
having Upvc double glazed window to front elevation, wall mounted radiator and built in over stairs storage.
having obscure Upvc double glazed window to rear elevation, wall mounted radiator, low level wc, wash pedestal hand basin and panelled bath with shower over.
To the front is a generous sized driveway providing ample off road parking leading to single detached garage and front lawn. Side access leads to a landscaped rear garden with large lawn leading down to the a brook, decked and patio seating areas as well
Note - the approximate room sizes are quoted in imperial. The metric equivalent is included in brackets.
The services, systems and appliances listed in this specification have not been tested by Newton Fallowell and no guarantee as to their operating ability or their efficiency can be given.
All mains are believed to be connected.
Freehold - with vacant possession upon completion. Newton Fallowell recommend that purchasers satisfy themselves as to the tenure of the property and we would recommend that they consult a legal representative such as a Solicitor appointed in their purcha
Anti-Money Laundering Regulations – Intending purchasers will be required to provide identification documents via our compliance provider, Coadjute, at a cost of £45 plus VAT per transaction. This will need to be actioned at the offer stage and we would ask for your co-operation in order that there will be no delay in agreeing the sale.
| Tax Band | % | Taxable Sum | Tax |
|---|
Struggling to find a property? Get in touch and we'll help you find your ideal property.