3 bedroom Semi-detached house For Sale

Burton Road, Woodville, Swadlincote, DE11

£175,000 | Available

3 Bedrooms
1 Bathrooms
2 Receptions

Burton on Trent

36 Station Street, 
Burton on Trent, 
DE14 1AX, 
Standout Features

Property Description

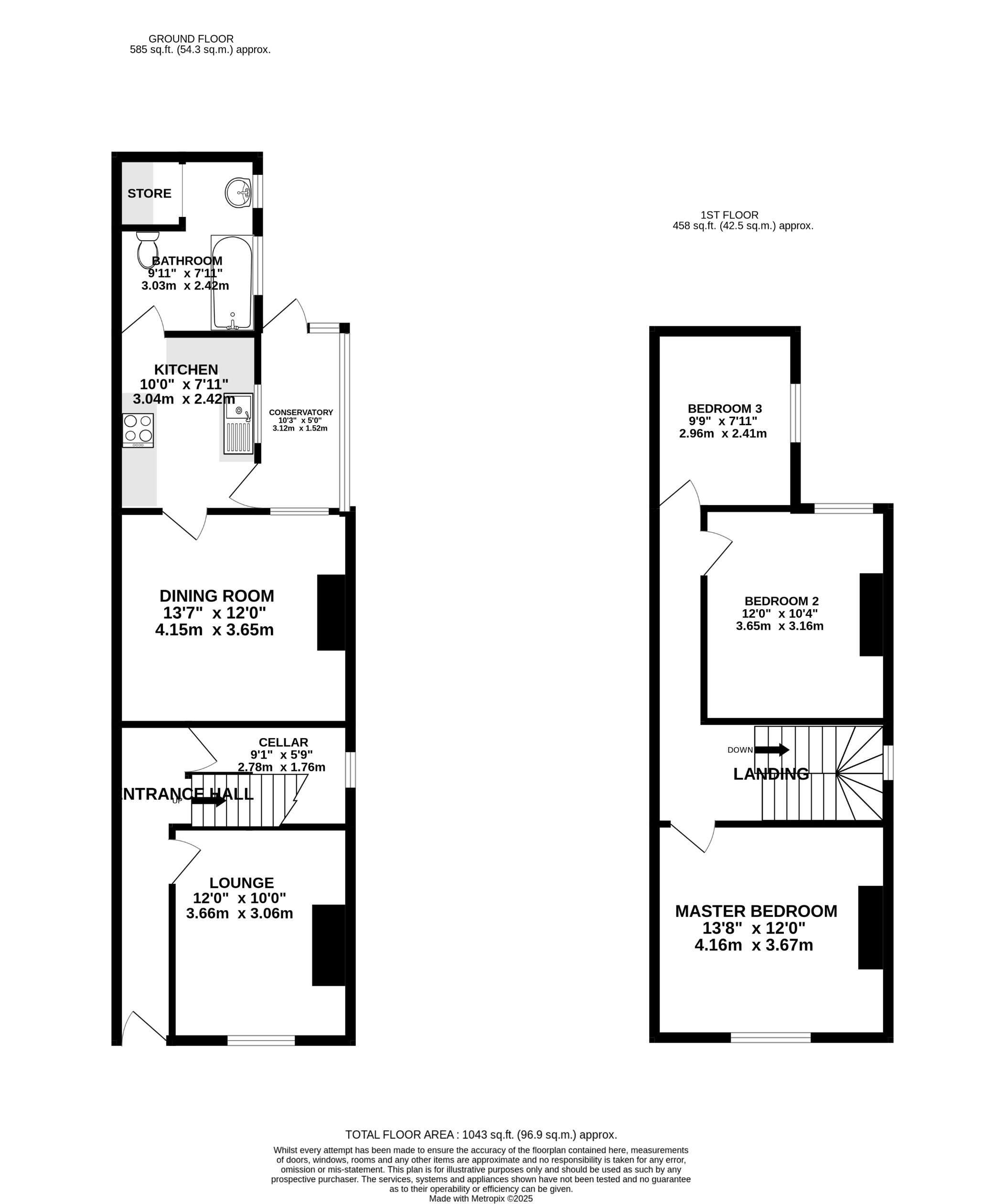
Newton Fallowell are pleased to be able to offer for sale this traditional Victorian three bedroomed semi detached home on a prominent road in Woodville.  With an abundance of traditional features throughout the property, modern combination boiler and Upvc double glazing this property is ideal for any first time buyer or investor.  The accommodation in brief comprises: - lounge, dining room, kitchen, bathroom, conservatory and on the first floor a landing leads to three double bedrooms.  Externally the property has a good sized fully enclosed rear garden which is mainly laid to lawn and good sized patio area ideal for entertaining. Viewings are highly recommended. EPC rating: D. Council tax band: A, Tenure: Freehold,

Additional Information
EPC Rating:
D
Tenure:
Freehold
Council Tax Band:
A
Rooms
Accommodation In Detail

Frosted Upvc double glazed door leading to:

Porch

leading through to:

Entrance Hall

having staircase rising to first floor, one central heating radiator, original coving and architraves and access to cellar.

Cellar

having consumer unit for electrics, gas and electric meters, frosted Upvc double glazed window to side elevation and offers plenty of storage.

Lounge
3.06m x 3.66m (10'0" x 12'0")

having multi fuel log burner with tiled hearth and wooden surround, BT point, one central heating radiator and Upvc double glazed window to front elevation.

Dining Room
4.15m x 3.65m (13'7" x 12'0")

having one central heating radiator and Upvc double glazed window to the conservatory.

Kitchen
2.42m x 3.04m (7'11" x 10'0")

having range of base and wall mounted units, marble effect laminate work surface, space for under counter fridge, electric single oven, four ring electric hob with extractor over, tiled splashback, one central heating radiator, Upvc double glazed window to conservatory and Upvc double glazed stable style door leading to the conservatory.

Ground Floor Bathroom
2.42m x 3.03m (7'11" x 9'11")

having low level wc, pedestal wash basin with chrome mixer tap, bath with chrome hand held shower together with fitted electric shower over, glass shower screen, tiling around wet areas, built0in storage cupboard housing the Worcester Bosch combination boiler and plumbing for washing machine, one central heating radiator and two frosted Upvc double glazed windows to side elevation.

Conservatory
1.52m x 3.12m (5'0" x 10'3")

having tiling to floor, space for fridge/freezer and tumble dryer, Upvc double glazing and Upvc double glazed door to rear elevation.

On The First Floor
Landing

having access to loft space, one central heating radiator and Upvc double glazed window to side elevation.

Master Bedroom
4.16m x 3.67m (13'8" x 12'0")

having one central heating radiator and Upvc double glazed window to front elevation.

Bedroom Two
3.16m x 3.65m (10'4" x 12'0")

having one central heating radiator and Upvc double glazed window to rear elevation.

Bedroom Three
2.41m x 2.96m (7'11" x 9'9")

having one central heating radiator and Upvc double glazed window to side elevation.

Outside

To the front of the property is a half height wall and paved courtyard area. To the rear is a fully enclosed garden with a paved patio area and the rest of the garden is mainly laid to lawn. There is side access with security gate.

Services

All mains services are believed to be connected to the property.

Measurement

The approximate room sizes are quoted in metric. The imperial equivalent is included in brackets.

Tenure

Freehold - with vacant possession upon completion. Newton Fallowell recommend that purchasers satisfy themselves as to the tenure of the property and we would recommend that they consult a legal representative such as a Solicitor appointed in their purchase.

Note

The services, systems and appliances listed in this specification have not been tested by Newton Fallowell and no guarantee as to their operating ability or their efficiency can be given.

Note

Anti-Money Laundering Regulations – Intending purchasers will be required to provide identification documents via our compliance provider, Coadjute, at a cost of £45 plus VAT per transaction. This will need to be actioned at the offer stage and we would ask for your co-operation in order that there will be no delay in agreeing the sale.


Mortgage calculator

Calculate Your Stamp Duty
£
Results
Stamp Duty To Pay:
Effective Rate:
Tax Band % Taxable Sum Tax

Burton Road, Woodville, Swadlincote, DE11

Struggling to find a property? Get in touch and we'll help you find your ideal property.

Interested in viewing this property?
Book a Viewing
Main menu