3 bedroom Detached bungalow For Sale

Wood Lane, Swadlincote, DE11

£350,000 | Available

3 Bedrooms
1 Bathrooms
1 Receptions

Burton on Trent

36 Station Street, 
Burton on Trent, 
DE14 1AX, 
Standout Features

Property Description

This is a fabulous opportunity to acquire one of only three beautifully constructed detached bungalows located upon a select development.  An internal inspection will reveal accommodation which in brief comprises: - large impressive L-shaped entrance hall, stunning open plan living dining kitchen accessed via double doors and having a good array of integrated appliances, the living area having fabulous views over Swadlincote town and has French doors opening out to the landscaped garden, there is a separate utility room.  There are three well proportioned bedrooms and bathroom with four piece suite.  Outside the sweeping tarmacadam driveway leads to a garage. there is a small lawned fore garden and to the rear is a lively enclosed well fenced landscaped garden with fabulous views. EPC rating: Unknown. Council tax band: X, Tenure: Freehold,

Additional Information
Tenure:
Freehold
Rooms
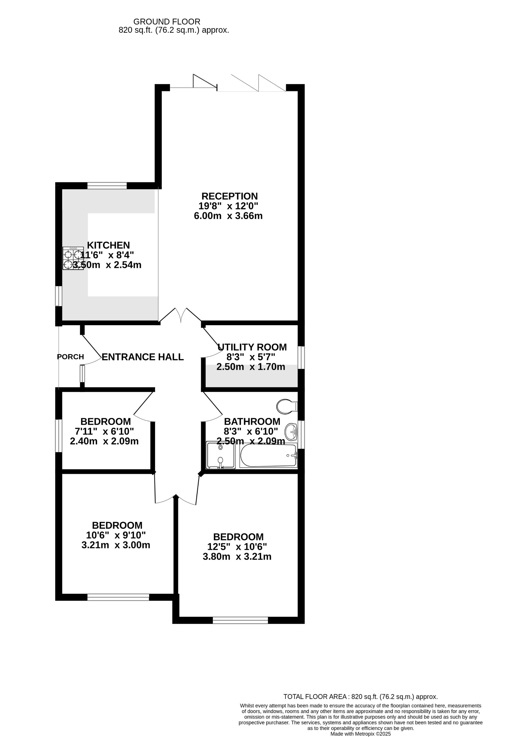
Accommodation In Detail
Open Canopied Entrance

having half obscure double glazed entrance door with obscure double glazed light to side leading to:

Impressive Entrance Hall
3.21m x 4.91m (10'6" x 16'1")

having low intensity spotlights to ceiling, thermostatically underfloor heating, fitted smoke alarm and access to loft space.

Stunning Open Plan Living Dining Kitchen

featuring:

Living Area
5.15m x 3.73m (16'11" x 12'3")

having Upvc double glazed French doors with double glazed lights to either side leading to the rear garden.

Kitchen Area
3.55m x 2.85m (11'8" x 9'4")

having a lovely array of taupe coloured base and wall mounted units with complementary rolled edged working surfaces, integrated appliances including oven, fridge/freezer, induction hob with extractor over and dishwasher, polycarbonate sink and draining unit, Upvc double glazed windows to rear and side elevations and low intensity spotlights to ceiling.

Utility Room
2.57m x 1.7m (8'5" x 5'7")

having a good range of fitted base units, rolled edged working surfaces, large airing cupboard housing pressurised hot water cylinder, low intensity spotlights to ceiling, fitted extractor vent and Upvc double glazed window to side elevation.

Master Bedroom
3.3m x 3.9m (10'10" x 12'10")

having Upvc double glazed windows to front elevation and underfloor heating.

Bedroom Two
3.3m x 3.16m (10'10" x 10'4")

having Upvc double glazed window to front elevation and underfloor heating.

Bedroom Three
2.43m x 2.14m (8'0" x 7'0")

having Upvc double glazed window to side elevation and underfloor heating.

Bathroom

having four piece suite comprising low level wc, side fill panelled bath with shower attachment over, fully tiled shower enclosure with bi-fold door, pedestal wash basin, heated chrome ladder towel radiator, low intensity spotlights to ceiling, fitted extractor vent, underfloor heating and obscure Upvc double glazed window to side elevation.

Outside

To the front of the property is a lawned fore garden. A driveway provides access to a separate garage with electric remote control roller shutter door, electric light and power. To the rear is a flagged patio and lawned garden which is well screened and offers fabulous views over Swadlincote Town.

Services

All mains services are believed to be connected to the property.

Measurement

The approximate room sizes are quoted in metric. The imperial equivalent is included in brackets.

Tenure

Freehold - with vacant possession upon completion. Newton Fallowell recommend that purchasers satisfy themselves as to the tenure of the property and we would recommend that they consult a legal representative such as a Solicitor appointed in their purchase.

Note

The services, systems and appliances listed in this specification have not been tested by Newton Fallowell and no guarantee as to their operating ability or their efficiency can be given.
Anti-Money Laundering Regulations – Intending purchasers will be required to provide identification documents via our compliance provider, Coadjute, at a cost of £45 plus VAT per transaction. This will need to be actioned at the offer stage and we would ask for your co-operation in order that there will be no delay in agreeing the sale.


Mortgage calculator

Calculate Your Stamp Duty
£
Results
Stamp Duty To Pay:
Effective Rate:
Tax Band % Taxable Sum Tax

Wood Lane, Swadlincote, DE11

Struggling to find a property? Get in touch and we'll help you find your ideal property.

Interested in viewing this property?
Book a Viewing
Main menu