3 bedroom Detached bungalow Sold STC

Broad Street, Syston, LE7

£385,000 | SSTC

3 Bedrooms
2 Bathrooms
1 Receptions

Syston

1250 Melton Road, 
Syston, 
LE7 2HB, 
Standout Features

Property Description

Perfect for those in search of single storey living, fall in love with this well proportioned three bedroom detached bungalow occupying a tucked away position along a highly desirable tree lined street within walking distance of Syston town centre and the train station. Boasting gas central heating and double glazed windows throughout, the layout includes an entrance porch and hallway, lounge, conservatory, breakfast kitchen, utility room, master bedroom with built in wardrobes and en-suite, two further bedrooms and a shower room. The plot boasts off road parking with an integral garage and gated access leading through to a low maintenance private garden. An immediate viewing comes highly recommended to avoid disappointment. EPC rating: C. Council tax band: D, Tenure: Freehold,

Additional Information
EPC Rating:
C
Tenure:
Freehold
Council Tax Band:
D
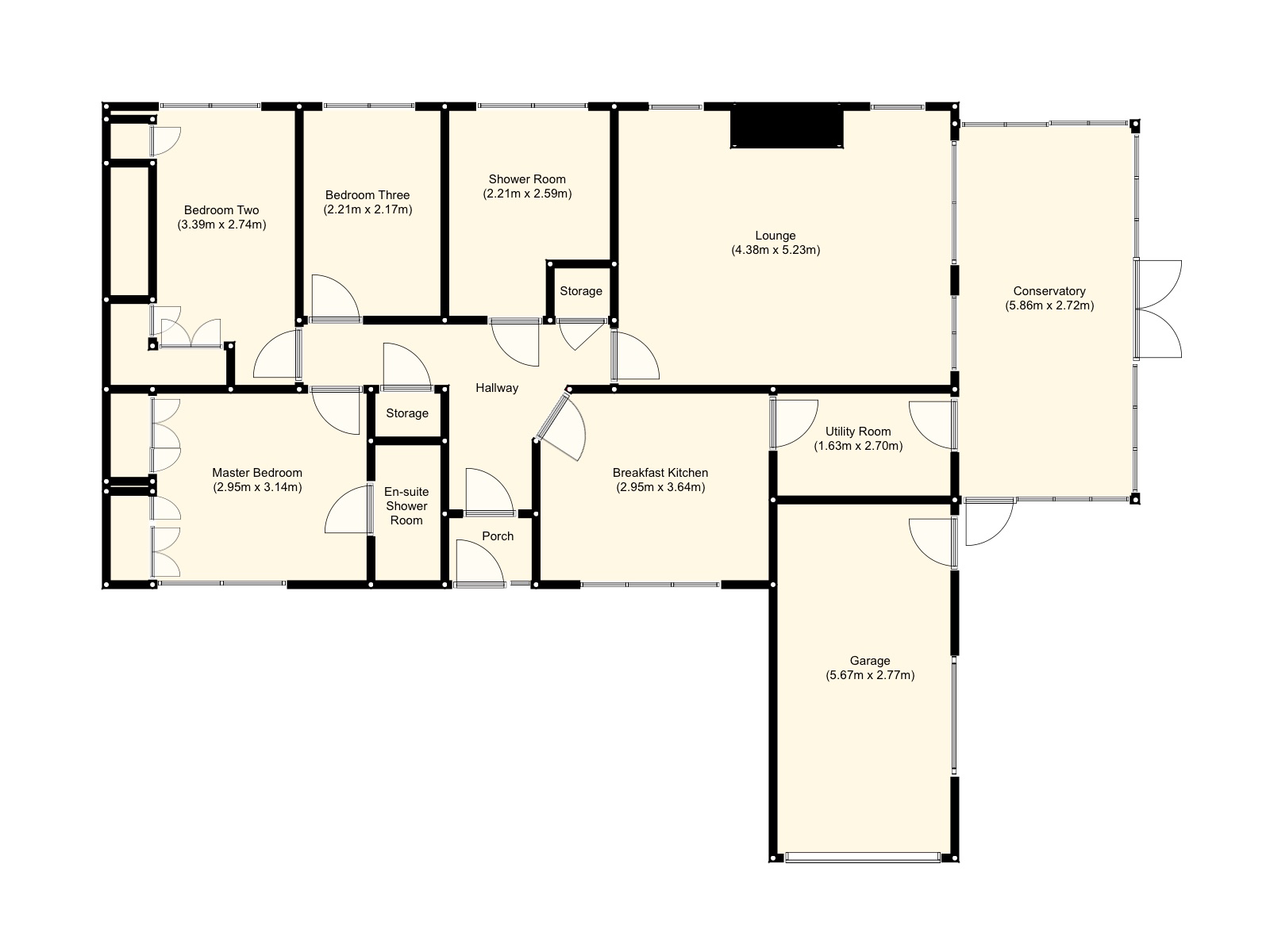
Rooms
Accommodation

Front entrance door opens into the:

Entrance Porch

Presented with wood effect flooring, the entrance hall offers a door leading to the:

Entrance Hallway

With doors leading to the majority of the accommodation, two useful storage cupboards, carpet flooring, central heating radiator and coving. There is also a hatch to the loft space with insulation and boarding.

Lounge

Positioned around a feature gas fireplace, the reception room is presented with carpet flooring and offers dual aspect glazing, two central heating radiators, ceiling coving and sliding doors leading to the:

Conservatory

The conservatory is a fantastic addition to the accommodation providing extra living space, ideal for both formal dining and sitting. With an electric heater, dual aspect glazing all with fitted blinds, carpet flooring and french doors opening out into the rear garden.

Breakfast Kitchen

Fitted with a range of wall mounted and base units with complementary roll edge work surfaces over, unit lighting and tiled splashbacks. Features include an inset 1.5 sink and drainer with mixer tap, built in double 'Neff' oven, four ring gas 'Stoves' hob with fitted extraction hood above, integrated fridge and an integrated 'Neff' dishwasher. Enjoying the use of a fitted breakfast table, there is a window to the front elevation, central heating radiator and access to the:

Utility Room

Providing further storage and space for appliances, with continuation of the units from that of the kitchen, space for washing machine, inset sink and drainer with mixer tap, central heating radiator and a door leading to the utility room.

Master Bedroom

A double room enjoying the use of built in wardrobes, with carpet flooring, central heating radiator, coving, TV point and a window to the front elevation with fitted blinds. A door leads to the:

En-suite Shower Room

Fitted with a modern three piece suite comprising a shower enclosure, wash hand basin with storage beneath and wc, with complementary tiled surrounds. There is also a mirror with above lighting, extraction fan and a central heating radiator.

Bedroom Two

Another comfortable double room featuring built in wardrobes, with carpet flooring, central heating radiator, double glazed window and TV point.

Bedroom Three

Currently being utilised as a home office, the third bedroom offers a double glazed window with fitted blind, wood effect flooring and a central heating radiator.

Shower Room

Fitted with a modern three piece suite comprising a corner shower cubicle, wash hand basin with storage beneath and wc, with tiled flooring and partly tiled walls. There is also a central heating radiator and double glazed window.

Outside

Delightfully located in arguably one of Systons most sought after residential locations, the plot is approached via a private gravelled driveway shared with the neighbouring properties and gives access to the plot which firstly offers a gravelled frontage providing parking as well as offering access to the single garage. Gated access to the side leads to a low maintenance garden being mostly paved and oozing a particularly private feel with fencing to boundaries.

Garage

With an electric door, light, power, door to the garden and a wall mounted Worcester Boiler (Fitted in 2018).

Tenure & Council Tax

We understand the property to be freehold with vacant possession upon completion. Charnwood - Tax Band D. Please be advised that when a property is sold, local authorities reserve the right to re-calculate the council tax band.

Viewing Arrangements

Viewings are strictly by appointment only.

Need Independent Mortgage Advice?

We are pleased to introduce Benjamin York, who works with Newton Fallowell Estate Agents to provide our customers with expert mortgage advice. He has access to thousands of mortgages, including exclusive deals not available on the high street. His advice is tailored to your circumstances, whether you’re looking to take your first steps on the property ladder, moving home, or even investing in a buy-to-let property. He can help find the right mortgage for you and support your application every step of the way. To speak with our expert 'in branch' adviser, please contact our office.

Making an Offer

In line with current money laundering regulations, prospective buyers will be asked to provide us with photo I.D. (e.g. Passport, driving licence, bus pass etc) and proof of address (e.g. Current utility bill, bank statement etc). You will also be asked to provide us with proof of how you will be funding your purchase. Please note that when making an offer, if you are taking out a mortgage, you will also be asked to have a no obligation chat with our 'in branch' mortgage adviser to confirm your affordability. We ask for your cooperation in this matter. We ask for your cooperation in this matter as this information will be required before a sale can be agreed.

Agents Note

These particulars, whilst believed to be accurate are set out as a general outline only for guidance and do not constitute any part of an offer or contract. Details are given without any responsibility, and any intending purchasers, lessees or third parties should not rely on them as statements of representation of fact, but must satisfy themselves by inspection or otherwise as to their accuracy. All photographs, measurements (width x length), floorplans and distances referred to are given as a guide only and should not be relied upon for the purchase of carpets or any other fixtures or fittings. All services and appliances have not and will not be tested by Newton Fallowell. Lease details, service ground rent are given as a guide only and should be checked and confirmed by your solicitor prior to exchange of contracts. No person in this firms employment has the authority to make or give any representation or warranty in respect of the property. We retain the copyright.

Referrals

Newton Fallowell and our partners provide a range of services to our vendors and purchasers, although you are free to choose an alternative provider. We can refer you to Benjamin York at Chamelo to help with finances, we may receive a referral fee if you take out a mortgage through him. If you require a solicitor to handle your sale or purchase, we can refer you on to a panel of preferred providers and we will receive a referral fee should you decide to use them to sell or purchase a property. We can also refer you to a surveyor and energy assessor and we will receive a referral fee should you use their services. If you require more information regarding our referral programmes, please ask at our office.

Free Property Valuations

If you have a house to sell then we would love to provide you with a free no obligation valuation.


Mortgage calculator

Calculate Your Stamp Duty
£
Results
Stamp Duty To Pay:
Effective Rate:
Tax Band % Taxable Sum Tax

Broad Street, Syston, LE7

Struggling to find a property? Get in touch and we'll help you find your ideal property.

Interested in viewing this property?
Book a Viewing
Main menu