3 bedroom Chalet For Sale
£395,000 | Available
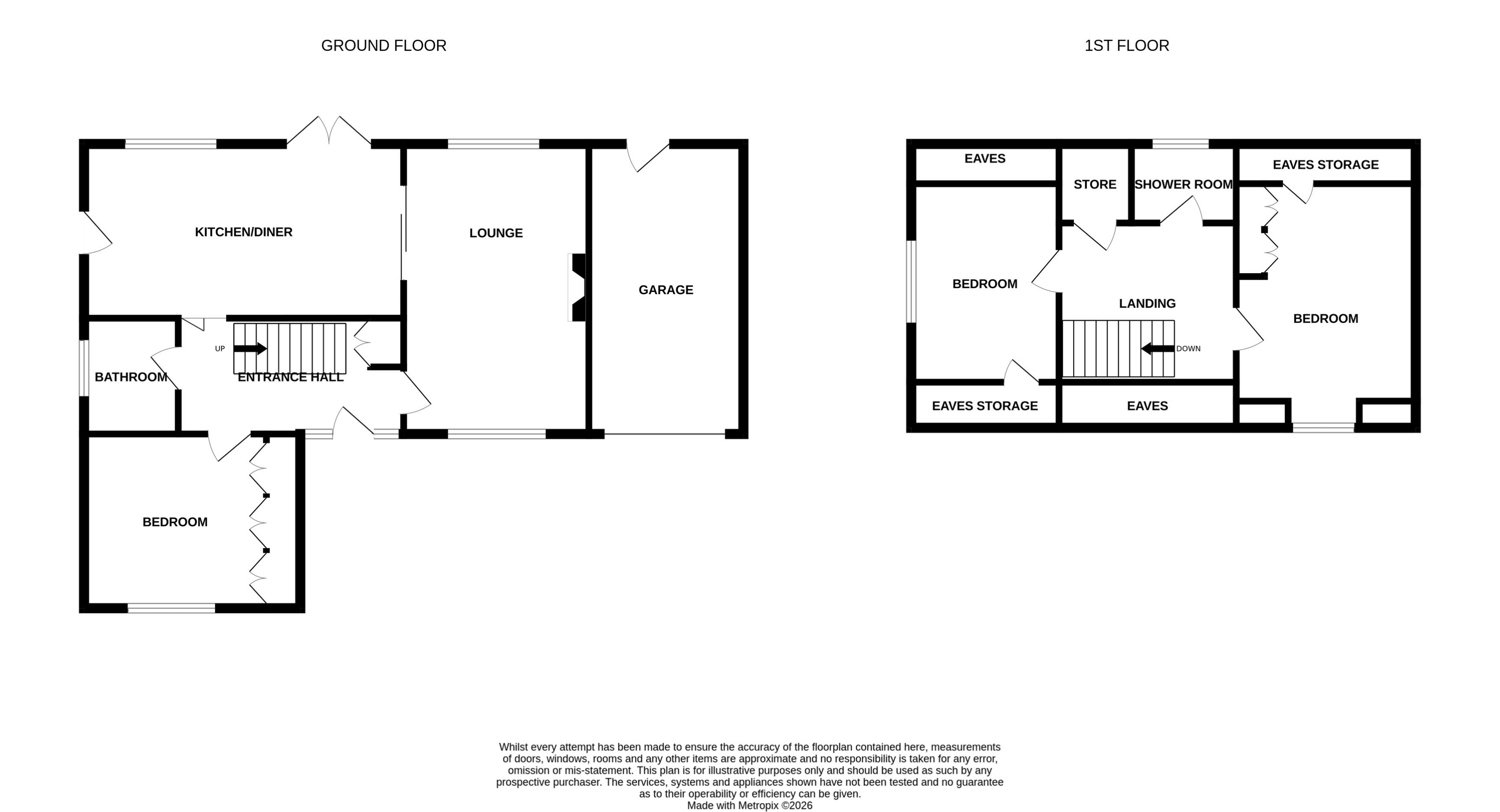
Newton Fallowell are proud to offer for sale this well presented three bedroom detached chalet situated on a large plot enjoying countryside views. The ground floor briefly comprises of a modern kitchen diner with French doors to the rear, a spacious lounge, a ground floor bedroom and bathroom. To the first floor there are two further bedrooms serviced by a shower room. Externally there is a horseshoe driveway to the front with access to a single garage. There are double gates to the side giving access to the generous rear garden and a gravel driveway to the rear of the plot with a spacious gravel courtyard and further garage. The garden is mainly laid to lawn with a patio seating area, mature tree lined boundaries and a summer house with covered veranda and internal store. Viewing of this property is highly recommended and is strictly by appointment only. EPC rating: Unknown. Council tax band: D, Tenure: Freehold,
Part double glazed front door opening to entrance hall with wood flooring, radiator, built in storage cupboard. Stairs to first floor. Doors to:
Fitted with a range of base and eye level units with Corian worktop over, inset stainless steel sink with mixer tap over, electric four ring hob with extractor over, eye level double oven, integrated fridge freezer. PVCu double glazed window to the rear and dining area with PVCu double glazed French doors to rear garden. Opening to:
PVCu double glazed windows to the front and rear, two radiators, coal effect gas fireplace, wall mounted air conditioning unit.
PVCu double glazed window to the front, radiator, range of fitted bedroom furniture.
Comprising of a bath with full height tiling and shower over, vanity unit with WC and sink with base cupboard under. Heated towel rail, PVCu double glazed window.
Access to loft, built in linen cupboard, radiator. Doors to:
PVCu double glazed window to the front, radiator, range of fitted bedroom furniture, access to eaves storage space.
PVCu double glazed window to the side, radiator, access to eaves storage space.
Fitted with a tiled corner shower cubicle, low level WC and wash basin. PVCu double glazed window to the rear, radiator.
To the front of the property there is a horse shoe driveway and there is vehicle access to the side of the property which is enclosed by double gates. The driveway takes you to a generous graveled yard to the rear. The garden is mainly laid to lawn with a patio seating area and mature boundary hedging.
Located to the front, side of the property with up and over door to the front, power and light connected, pedestrian door to rear garden.
With covered decked seating area, power and light connected, internal storage shed.
With up and over door, power and light connected, pedestrian door to the side.
These particulars are issued in good faith but do not constitute representations of fact or form part of any offer or contract. The matters referred to in these particulars should be independently verified by prospective buyers or tenants. Neither Newton Fallowell Market Deeping nor any of its employees or agents has any authority to make or give any representation or warranty whatever in relation to this property.
By law HMRC require us to conduct anti-money laundering checks on all those selling or buying a property as prescribed by the Money Laundering Regulations 2017. Whilst we retain responsibility for ensuring checks and any ongoing monitoring are carried out correctly, the initial checks are carried out on our behalf by Coadjute who will contact you once you have had an offer accepted on a property you wish to buy.
The cost of these checks is £54 (incl. VAT), which covers the cost of obtaining relevant data and any manual checks and monitoring which might be required. This fee will need to be paid by you in advance of us issuing a memorandum of sale, directly to Coadjute, and is non-refundable.
| Tax Band | % | Taxable Sum | Tax |
|---|
Struggling to find a property? Get in touch and we'll help you find your ideal property.