2 bedroom Semi-detached house To Let

Brudenell Close, Baston, PE6

£1,000 PCM | Available

2 Bedrooms
1 Bathrooms
2 Receptions

Market Deeping

3 Bridge Foot, 
Market Deeping, 
PE6 8AA, 
Letting Details
Deposit:
£1,153
Standout Features

Property Description

Available soon with more pictures to follow is this two bedroom semi detached house in the desirable Village of Baston. The property is is good decorative order and comes with a fridge / freezer, washing machine and dishwasher and the lounge is fitted with a wall mounted TV. Early viewing is highly recommended. EPC rating: C. Council tax band: B,

Additional Information
EPC Rating:
C
Council Tax Band:
B
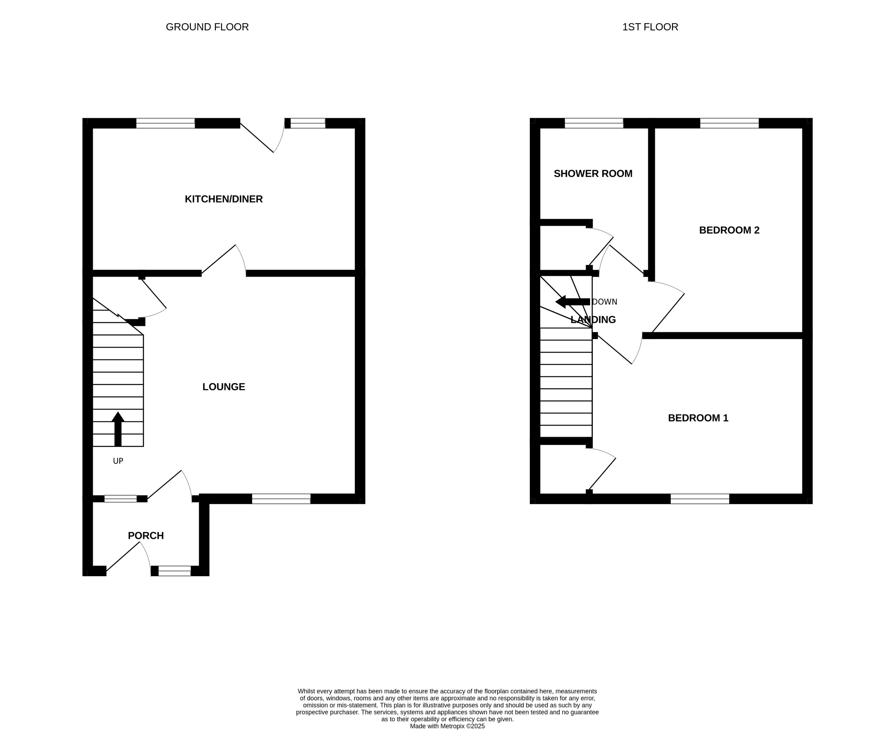
Rooms
Porch
Lounge
3.87m x 4.66m (12'8" x 15'3")
Kitchen/diner
2.57m x 4.66m (8'5" x 15'3")
First floor landing
Bedroom 1
2.8m x 2m (9'2" x 6'7")
Bedroom 2
3.64m x 2.67m (11'11" x 8'9")
Shower room
Outside
Disclaimer

These particulars are issued in good faith but do not constitute representations of fact or form part of any offer or contract. The matters referred to in these particulars should be independently verified by prospective buyers or tenants. Neither Newton Fallowell Market Deeping nor any of its employees or agents has any authority to make or give any representation or warranty whatever in relation to this property.


Brudenell Close, Baston, PE6

Struggling to find a property? Get in touch and we'll help you find your ideal property.

Interested in viewing this property?
Book a Viewing
Main menu