5 bedroom Cottage For Sale

Belvoir Road, Redmile

£399,950 | Available

5 Bedrooms
2 Bathrooms
3 Receptions

Bingham

Cranmer House, 
Market Place, 
Bingham, 
NG13 8AN, 
Property Description

Number 11

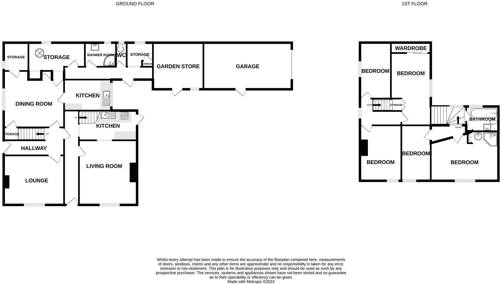
Entrance Hall
4.93m x 1.09m (16'2" x 3'6") - Staircase rising to first floor landing, nterconnecting door to Number 13 which gives access into the hallway of the neighbouring property.

Lounge
4.55m x 3.63m (14'11" x 11'10") - A good sized reception with window to the front elevation, gas fire with marble hearth and back and shelved alcove.

Dining Room
5.05m x 4.14m max (16'6" x 13'6" max) - A versatile reception ideal as formal dining being located adjacent to the kitchen having built in pantry, further under stairs storage cupboard and window to the side elevation.

Pantry / Storage
Pitched ceiling and window to the side elevation.

Kitchen
Fitted with a range of traditional wall and base units having laminate preparation surfaces, enameled sink and drain unit, plumbing for washing machine, gas cooker point and window to the side elevation.

Inner Hallway
2.57m x 0.91m (8'5" x 2'11")

Store/Utility Area
Housing the gas central heating boiler and having a window to the side elevation.

Rear Lobby
3.28m max x 0.97m (10'9" max x 3'2")

Ground Floor Shower Room
2.41m x 1.96m (7'10" x 6'5") - Fitted with a two piece suite comprising: Shower enclosure with curved doors, wall mounted electric shower and wall mounted washbasin. Window to the rear elevation.

W.C.
1.70m x 0.89m (5'6" x 2'11") - Fitted with a WC and having window to the rear elevation.

Store
1.93m x 1.75m (6'3" x 5'8") - Window to the rear elevation, a built in store and a UPVC door leading into the garden.

First Floor Landing
Window to the side elevation.

Bedroom One
6.35m x 2.97m max (20'9" x 9'8" max) - Built in storage cupboards and a window to the rear elevation.

Bedroom Two
4.01m x 2.95m ( 13'1" x 9'8") - Window to the front elevation.

Bedroom Three
4.55m x 2.26m (14'11" x 7'4") - Window to the side elevation.

Number 13

Initial Entrance Hall
6.86m max x 1.04m (22'6" max x 3'4") - Turning staircase to the first floor, quarry tiled floor, interconnecting door with Number 11 which gives access into the hallway of the neighbouring property.

Living Room
3.91m x 4.83m (12'9" x 15'10") - A good proportioned reception having chimney breast with tiled hearth and back, traditional fire surround and mantel, alcoves to the side, deep skirting, exposed beams to the ceiling and window to the front elevation.

Kitchen
3.05m x 1.98m (10'0" x 6'5") - Fitted with a range of wall and base units having laminate preparation surfaces, inset stainless steel sink and drain unit, four ring gas hob, single oven, wall mounted Worcester Bosch gas central heating boiler, plumbing for washing machine, central heating radiator and window to the side elevation.

First Floor Landing

Bedroom One
5.13m x 4.67m (16'9" x 15'3") - A well proportioned L-shaped double bedroom, winow to the front elevation and having chimney breast with inset period fireplace, alcoves to the side and central heating radiator. The room also houses an ensuite shower facility with quadrant shower enclosure with wall mounted shower mixer and separate vanity unit with inset washbasin and tiled surround.

Bedroom Two
3.76m x 2.13m (12'4" x 6'11") - Another double bedroom with window to the front elevation.

Bathroom
2.13m x 2.06m (6'11" x 6'9") - Fitted with a three piece suite comprising enameled bath, close coupled WC and wall mounted washbasin, part pitched ceiling with exposed beam and obscured glaze window.

Outside
The property fronts Belvoir Road with a small court frontage and pathway leading to the front door. The main gardens is laid to lawn with a delightful aspect across adjacent fields on the edge of the village. There is vehicular access leading to a brick and pantile garage. In the garden there is also a timber storage shed.

Agents Note
This property is located within a conservation village
This property has mains gas central heating, mains drains, water and electric.
There is broadband in the area and mobile phone signal.
https://check-long-term-flood-risk.service.gov.uk/risk#
https://check-long-term-flood-risk.service.gov.uk/risk#

Money Laundering Regulations
Intending purchasers will be asked to produce identification documentation at a later stage and we would ask for your co-operation in order that there will be no delay in agreeing the sale.

Note
Although these particulars are thought to be materially correct, their accuracy cannot be guaranteed and they do not form part of any contract. All services and appliances have not and will not be tested. Floorplans are there as a guide only and measurements should be regarded as approximate.
Belvoir and our partners provide a range of services to buyers, although you are free to use an alternative provider. For more information simply speak to someone in our branch today. We can refer you on to The Mortgage Advice Bureau for help with finance. We may receive a fee of 20%, on average this is £100 including VAT, if you take out a mortgage through them. If you require a solicitor to handle your purchase and or sale we can refer you on to Hawley and Rodgers or Movewithus. We may receive a fee of £120 - £180 including VAT per referral, if you use their services.

Additional Information
EPC Rating:
D
Rooms
Number 11
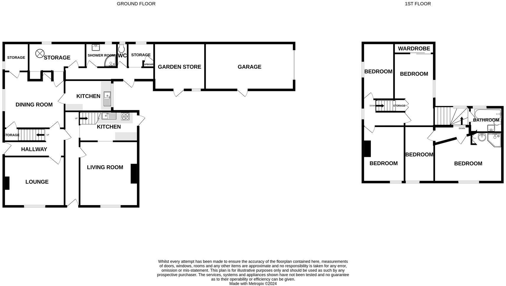
Entrance Hall
4.93m x 1.09m (16'2" x 3'6")
Staircase rising to first floor landing, nterconnecting door to Number 13 which gives access into the hallway of the neighbouring property.
Lounge
4.55m x 3.63m (14'11" x 11'10")
A good sized reception with window to the front elevation, gas fire with marble hearth and back and shelved alcove.
Dining Room
5.05m x 4.14m max (16'6" x 13'6" max)
A versatile reception ideal as formal dining being located adjacent to the kitchen having built in pantry, further under stairs storage cupboard and window to the side elevation.
Pantry / Storage
Pitched ceiling and window to the side elevation.
Kitchen
Fitted with a range of traditional wall and base units having laminate preparation surfaces, enameled sink and drain unit, plumbing for washing machine, gas cooker point and window to the side elevation.
Inner Hallway
2.57m x 0.91m (8'5" x 2'11")
Store/Utility Area
Housing the gas central heating boiler and having a window to the side elevation.
Rear Lobby
3.28m max x 0.97m (10'9" max x 3'2")
Ground Floor Shower Room
2.41m x 1.96m (7'10" x 6'5")
Fitted with a two piece suite comprising: Shower enclosure with curved doors, wall mounted electric shower and wall mounted washbasin. Window to the rear elevation.
W.C.
1.70m x 0.89m (5'6" x 2'11")
Fitted with a WC and having window to the rear elevation.
Store
1.93m x 1.75m (6'3" x 5'8")
Window to the rear elevation, a built in store and a UPVC door leading into the garden.
First Floor Landing
Window to the side elevation.
Bedroom One
6.35m x 2.97m max (20'9" x 9'8" max)
Built in storage cupboards and a window to the rear elevation.
Bedroom Two
4.01m x 2.95m ( 13'1" x 9'8")
Window to the front elevation.
Bedroom Three
4.55m x 2.26m (14'11" x 7'4")
Window to the side elevation.
Number 13
Initial Entrance Hall
6.86m max x 1.04m (22'6" max x 3'4")
Turning staircase to the first floor, quarry tiled floor, interconnecting door with Number 11 which gives access into the hallway of the neighbouring property.
Living Room
3.91m x 4.83m (12'9" x 15'10")
A good proportioned reception having chimney breast with tiled hearth and back, traditional fire surround and mantel, alcoves to the side, deep skirting, exposed beams to the ceiling and window to the front elevation.
Kitchen
3.05m x 1.98m (10'0" x 6'5")
Fitted with a range of wall and base units having laminate preparation surfaces, inset stainless steel sink and drain unit, four ring gas hob, single oven, wall mounted Worcester Bosch gas central heating boiler, plumbing for washing machine, central heating radiator and window to the side elevation.
First Floor Landing
Bedroom One
5.13m x 4.67m (16'9" x 15'3")
A well proportioned L-shaped double bedroom, winow to the front elevation and having chimney breast with inset period fireplace, alcoves to the side and central heating radiator. The room also houses an ensuite shower facility with quadrant shower enclosure with wall mounted shower mixer and separate vanity unit with inset washbasin and tiled surround.
Bedroom Two
3.76m x 2.13m (12'4" x 6'11")
Another double bedroom with window to the front elevation.
Bathroom
2.13m x 2.06m (6'11" x 6'9")
Fitted with a three piece suite comprising enameled bath, close coupled WC and wall mounted washbasin, part pitched ceiling with exposed beam and obscured glaze window.
Outside
The property fronts Belvoir Road with a small court frontage and pathway leading to the front door. The main gardens is laid to lawn with a delightful aspect across adjacent fields on the edge of the village. There is vehicular access leading to a brick and pantile garage. In the garden there is also a timber storage shed.
Agents Note
This property is located within a conservation village
This property has mains gas central heating, mains drains, water and electric.
There is broadband in the area and mobile phone signal.
https://check-long-term-flood-risk.service.gov.uk/risk#
https://check-long-term-flood-risk.service.gov.uk/risk#
Money Laundering Regulations
Intending purchasers will be asked to produce identification documentation at a later stage and we would ask for your co-operation in order that there will be no delay in agreeing the sale.
Note
Although these particulars are thought to be materially correct, their accuracy cannot be guaranteed and they do not form part of any contract. All services and appliances have not and will not be tested. Floorplans are there as a guide only and measurements should be regarded as approximate.
Belvoir and our partners provide a range of services to buyers, although you are free to use an alternative provider. For more information simply speak to someone in our branch today. We can refer you on to The Mortgage Advice Bureau for help with finance. We may receive a fee of 20%, on average this is £100 including VAT, if you take out a mortgage through them. If you require a solicitor to handle your purchase and or sale we can refer you on to Hawley and Rodgers or Movewithus. We may receive a fee of £120 - £180 including VAT per referral, if you use their services.

Mortgage calculator

Calculate Your Stamp Duty
£
Results
Stamp Duty To Pay:
Effective Rate:
Tax Band % Taxable Sum Tax

Belvoir Road, Redmile

Struggling to find a property? Get in touch and we'll help you find your ideal property.

Interested in viewing this property?
Book a Viewing
Main menu