4 bedroom Detached house For Sale

Streton Gardens, Deeping St. James, PE6

£440,000 | Available

4 Bedrooms
2 Bathrooms
3 Receptions

Market Deeping

3 Bridge Foot, 
Market Deeping, 
PE6 8AA, 
Standout Features

Property Description

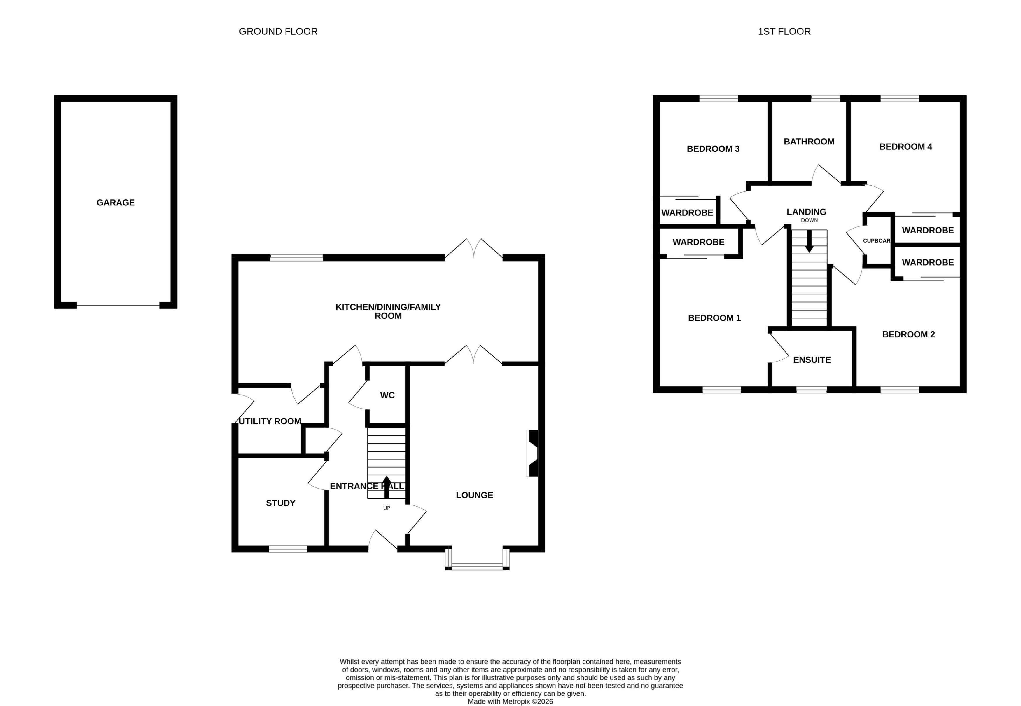
Newton Fallowell are proud to offer for sale in show home condition, this four bedroom detached house which has been finished to a high standard. The accommodation briefly comprises of a study, lounge, kitchen family room, a utility room & WC. To the first floor all bedrooms come with fitted wardrobes and the master benefits from a spacious en-suite. Externally there is a block paved driveway, single garage and a landscaped rear garden. The property enjoys field views to the front and early viewing is highly recommended.  EPC rating: B. Council tax band: D, Tenure: Freehold,

Additional Information
EPC Rating:
B
Tenure:
Freehold
Council Tax Band:
D
Rooms
Entrance hall

With stairs to first floor, LVT flooring, radiator. Doors to:

WC

Fitted with a two piece suite comprising of a low level WC and wash basin, radiator, half height wall tiling, LVT flooring and extractor fan.

Study
2.42m x 2.37m (7'11" x 7'9")

PVCu double glazed window to the front, radiator, LVT flooring.

Lounge
4.83m x 3.5m (15'10" x 11'6")

PVCu double glazed bay window to the front, two radiators, electric living flame fireplace set in ornate surround. Internal double doors to kitchen family room.

Kitchen
3.35m x 3.05m (11'0" x 10'0")

Fantastic multi functional kitchen family room spanning the width of the property. Kitchen area fitted with a matching range of base and eye level units with integrated dishwasher, fridge / freezer, double oven with electric hob and extractor hood over, quartz work top and upstand, inset 1 1/2 bowl sink. PVCu double glazed window to the rear. LVT flooring. Open plan to:

Family & dining
5.02m x 2.75m (16'6" x 9'0")

Dining and seating area continued from the kitchen with PVCu double glazed French doors opening to the rear garden and patio seating area, LVT flooring, radiator. Internal double doors to lounge.

Utility room
2.41m x 1.77m (7'11" x 5'10")

Fitted with base and eye level units housing gas central heating boiler and integrated washing machine. Stainless steel sink with mixer tap, LVT flooring continued from the kicthen, part PVCu double glazed door to the side.

First floor landing

With airing cupboard, radiator and doors to:

Bedroom 1
4.3m x 3.4m (14'1" x 11'2")

PVCu double glazed window to the front, radiator, built in wardrobe with mirrored sliding doors. Door to:

En-suite

Fully tiled ensuite fitted with a three piece suite comprising of a double shower cubicle with thermostatic bar shower, low level WC and wash basin. Heated towel rail, extractor fan, PVCu double glazed window.

Bedroom 2
3.72m x 2.75m (12'2" x 9'0")

PVCu double glazed window to the front, radiator, built in wardrobe with mirrored sliding doors.

Bedroom 3
3.35m x 2.87m (11'0" x 9'5")

PVCu double glazed window to the rear, radiator, built in wardrobe with mirrored sliding doors.

Bedroom 4
3.92m x 2.82m (12'10" x 9'3")

PVCu double glazed window to the rear, radiator, built in wardrobe with mirrored sliding doors.

Bathroom

Fully tiled bathroom, fitted with a three piece suite comprising of a bath with thermostatic bar shower over and glass screen, low level WC and wash basin. Heated towel rail, extractor fan, PVCu double glazed window.

Outside

To the side of the property there is a block paved driveway leading to the single garage. There is side gated access to the low maintenance rear garden which has been landscaped to provide two generous patio seating areas and an artifical lawn.

Garage

Single garage with up and over door, power and light connected.

Estate management fees

The estate management fees are £86.50 every six months (£173 per annum).

Anti-Money Laundering Requirements

By law HMRC require us to conduct anti-money laundering checks on all those selling or buying a property as prescribed by the Money Laundering Regulations 2017. Whilst we retain responsibility for ensuring checks and any ongoing monitoring are carried out correctly, the initial checks are carried out on our behalf by Coadjute who will contact you once you have had an offer accepted on a property you wish to buy.

The cost of these checks is £54 (incl. VAT), which covers the cost of obtaining relevant data and any manual checks and monitoring which might be required. This fee will need to be paid by you in advance of us issuing a memorandum of sale, directly to Coadjute, and is non-refundable.

Disclaimer

These particulars are issued in good faith but do not constitute representations of fact or form part of any offer or contract. The matters referred to in these particulars should be independently verified by prospective buyers or tenants. Neither Newton Fallowell Market Deeping nor any of its employees or agents has any authority to make or give any representation or warranty whatever in relation to this property.


Mortgage calculator

Calculate Your Stamp Duty
£
Results
Stamp Duty To Pay:
Effective Rate:
Tax Band % Taxable Sum Tax

Streton Gardens, Deeping St. James, PE6

Struggling to find a property? Get in touch and we'll help you find your ideal property.

Interested in viewing this property?
Book a Viewing
Main menu