4 bedroom Detached house For Sale

South Leverton, Retford, DN22

£540,000 | Available

4 Bedrooms
2 Bathrooms
2 Receptions

Retford

7 New Street, 
Retford, 
DN22 6EG, 
Standout Features

Property Description

This detached family home is a true gem, perfectly situated in the peaceful village of South Leverton. The property offers a generous and flexible layout, including a spacious sitting room, a well-equipped kitchen including AGA range, and four double bedrooms, providing ample space for a growing family. Presented to a high standard, the home features modern comforts like an integrated dishwasher, integrated fridge, en-suite bathrooms, and a luxurious main bathroom with a freestanding bath and a walk-in shower. Outside, the property boasts a block-paved driveway with a double garage and multiple carparking spaces. The private, enclosed garden with its patio area is perfect for outdoor entertaining and enjoying the serene surroundings. EPC rating: D. Council tax band: G, Tenure: Freehold,

Additional Information
EPC Rating:
D
Tenure:
Freehold
Council Tax Band:
G
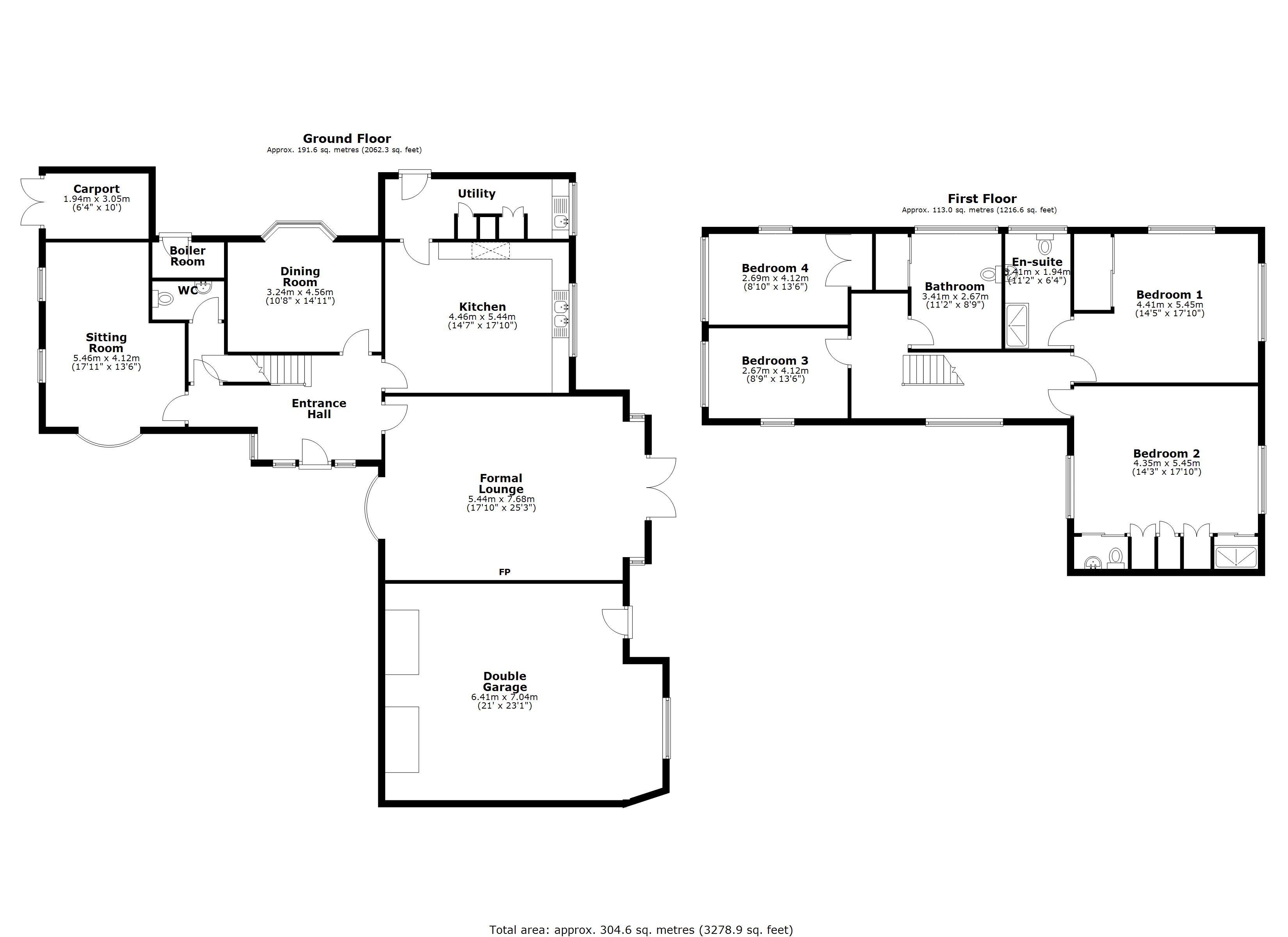
Rooms
Entrance Hallway

A solid hardwood front door with double-glazed glass side panels welcomes you into the hallway. It features two double-panel radiators and two double-glazed windows to the front aspect.

Dining Room
3.24m x 4.56m (10'8" x 15'0")

This room has a small double-glazed bay window to the rear aspect, is carpeted throughout, and includes a single-panel radiator and a TV point.

Sitting Room
5.46m x 4.12m (17'11" x 13'6")

The sitting room is a dual-aspect room with double-glazed windows, including a small bay window. It is carpeted throughout and has a double-panel radiator and a TV point.

Downstairs Cloakroom

The cloakroom features a single-panel radiator and a storage cupboard.

Separate W.C

This room contains a dual-flush W.C. and a wall-mounted washbasin with a mixer tap.

Formal Lounge
5.44m x 6.99m (17'10" x 22'11")

Spacious fully carpeted lounge with wood burner, TV point, double glazed French doors leading to patio area. This room is suitable for installation of a full sized snooker table or extended dining table for entertainment purposes.

Kitchen
4.46m x 5.44m (14'8" x 17'10")

This farmhouse style kitchen is fitted with a large AGA range-cooker with a gas hob and integrated electric fan-assisted oven. It has a range of floor and wall-mounted cupboards, extensive marble worktop, a two-bowl sink with a mixer tap, an integrated dishwasher, integrated fridge and a TV point. There is a double-glazed window to the rear aspect and a single-panel radiator.

Utility Room

This room has a double-glazed window to the rear aspect, floor and wall-mounted storage cupboards, and a sink with a drainer and a mixer tap. There is plumbing and space for a freestanding washing machine, a wall-mounted heated towel rail, and a UPVC door with double-glazed obscure glass to the left aspect. A small, single-glazed window is also present to the rear aspect.

Carport / Workshop

There is an enclosed carport / workshop area and a block paved path down the left of the property which also gives access to the boiler house.

Landing

The landing has a double-glazed window to the front aspect, provides access to the loft, and is carpeted throughout.

Bedroom One
4.41m x 5.45m (14'6" x 17'11")

A dual-aspect room with double-glazed windows to the rear and right aspects. It has two single-panel radiators, fitted wardrobe storage, and is carpeted throughout.

En-suite
3.41m x 1.94m (11'2" x 6'4")

This en-suite features a dual-flush W.C., a double-glazed window with obscure glass, a quadrant shower cubicle with wall-mounted shower controls and a showerhead, a washbasin with a mixer tap, and a vanity unit.

Bedroom Two
4.35m x 5.45m (14'3" x 17'11")

This dual-aspect bedroom has two single-panel radiators, double-glazed windows, and fitted, floor-to-ceiling wardrobes. Including partial ensuite that features a dual-flush W.C., a walk-in shower, and a washbasin with a mixer tap.

Bedroom Three
2.67m x 4.12m (8'9" x 13'6")

This room has double-glazed windows to the left and front aspects, a single-panel radiator, and is carpeted throughout.

Bedroom Four
2.69m x 4.12m (8'10" x 13'6")

A dual-aspect room with double-glazed windows to the left and rear aspects. It has a single-panel radiator and floor-to-ceiling storage.

Main Bathroom
3.41m x 2.67m (11'2" x 8'9")

The main bathroom features a wall-mounted heated towel rail, a double-glazed obscure glass window to the rear, a large walk-in shower cubicle with a wall-mounted shower and showerhead, a dual-flush W.C., a washbasin on a pedestal, and a freestanding bath with a mixer tap and showerhead attachment.

Gardens & Grounds

Outdoor Space: A block-paved patio area, suitable for entertaining, is accessed via French doors from the formal lounge. There is also a hardstanding a shed and a private, enclosed garden with a bordered edge.
Additional Features: There is an oil storage tank and a small path leading down the right side of the property.

Double Garage & Parking arrangements

A block-paved driveway with gates provides access to the property and a double garage. There is a small workshop accessed from the front of the property and there is a small turning circle. The double garage includes: integral workshop - multiple power supply points, water supply connection, overhead storage, double glazed door leading to patio area, double glazed window to the rear overlooking garden

Disclaimer

Every care has been taken with the preparation of these Particulars but complete accuracy cannot be guaranteed, If there is any point, which is of particular importance to you, please obtain professional confirmation. Alternatively, we will be pleased to check the information for you. These Particulars do not constitute a contract or part of a contract. The floor plan shown in these particulars is for illustrative purposes only and should not be interpreted as a scaled drawing. Any site measurements given are subject to site survey.

Services

We wish to advise prospective purchasers that we have not tested the services or any of the equipment or appliances in this property, accordingly we strongly advise prospective purchasers to commission their own survey or service reports before finalising their offer to purchase.


Mortgage calculator

Calculate Your Stamp Duty
£
Results
Stamp Duty To Pay:
Effective Rate:
Tax Band % Taxable Sum Tax

South Leverton, Retford, DN22

Struggling to find a property? Get in touch and we'll help you find your ideal property.

Interested in viewing this property?
Book a Viewing
Main menu