4 bedroom Detached house Sold STC

Kinver Road, Winshill, Burton-on-Trent, DE15

£365,000 | SSTC

4 Bedrooms
2 Bathrooms
3 Receptions

Burton on Trent

36 Station Street, 
Burton on Trent, 
DE14 1AX, 
Standout Features

Property Description

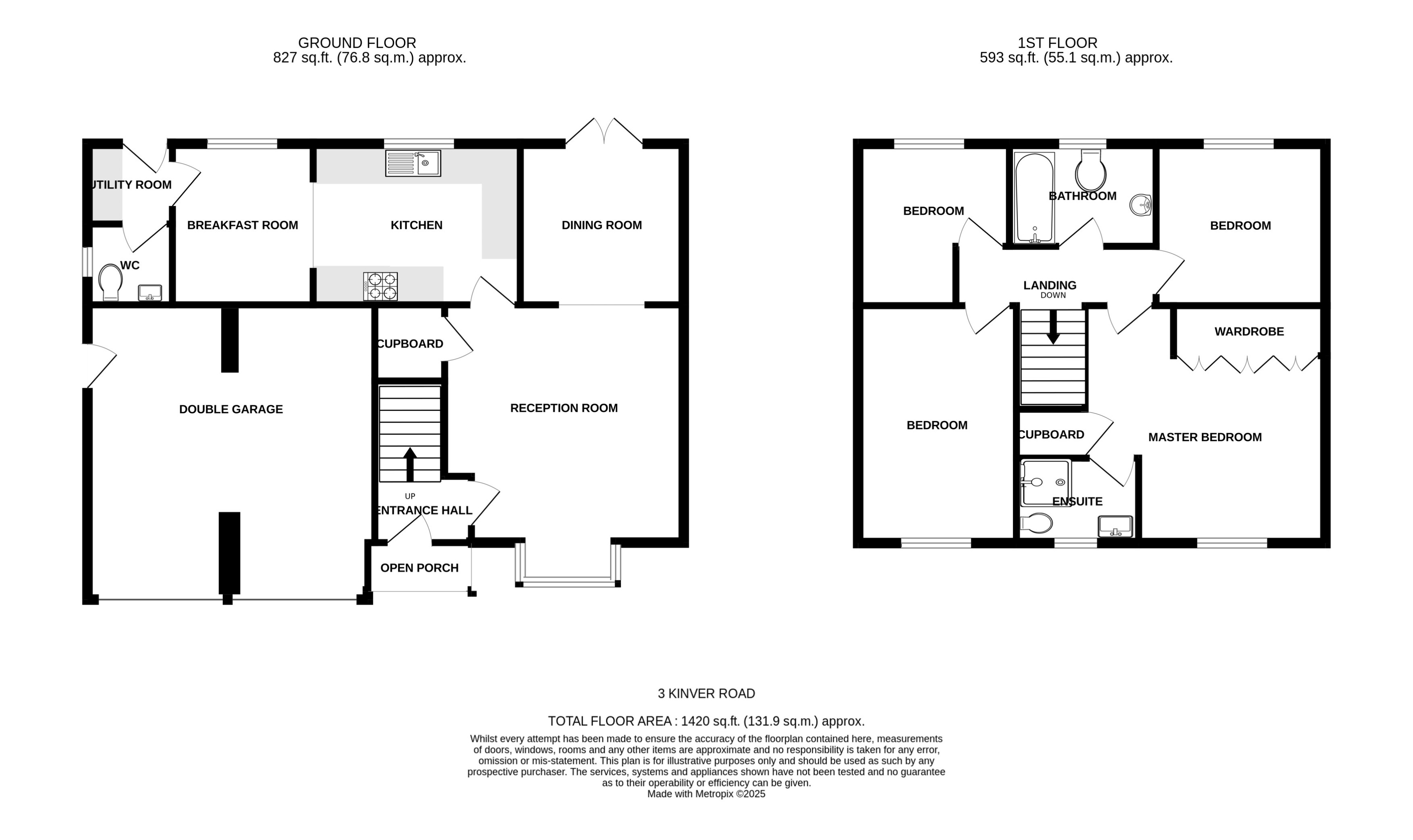
Situated on this extremely popular mature development this well presented spacious family home is worthy of an internal inspection in order to appreciate the accommodation on offer which in brief comprises: - entrance hall, bay windowed front sitting room, dining room, large fitted kitchen with breakfast area, utility, guest cloak room and on the first floor a landing leads to four well proportioned bedrooms, master bedroom having en-suite shower and a family bathroom.  Outside to the front is an extremely deep fore garden, a sweeping driveway provides parking for numerous vehicles and leads to an attached double garage.  To the rear is a lovely landscaped garden with porcelain non-slip tiled patio, steps lead up to a lawned garden and there is a large detached gym/office/mancave erected at the far extent of the garden with air-conditioning, power and water supply. EPC rating: C. Council tax band: E, Tenure: Freehold,

Additional Information
EPC Rating:
C
Tenure:
Freehold
Council Tax Band:
E
Rooms
Accommodation In Detail
Open Canopied Entrance

having feature LED lighting, tiling to floor slate effect tiling to walls and frontage and composite contemporary obscure double glazed entrance door leading to:

Entrance Hall

having staircase rising to first floor, coving to ceiling, one central heating radiator.

Front Sitting Room
4.1m x4.06m extending to 4.86m into bay

having Upvc double glazed square bay window to front elevation, one double central heating radiator, coving to ceiling, useful understairs storage cupboard and archway leading through to:

Dining Room
2.82m x 2.76m (9'3" x 9'1")

having coving to ceiling, one central heating radiator and Upvc double glazed French doors leading out to the rear patio.

Kitchen
3.56m x 2.77m (11'8" x 9'1")

having a good array of grey fronted base and eye level units with complementary rolled edged working surfaces, stainless steel sink and draining unit, plumbing for dishwasher, ceramic tiling to floor, Upvc double glazed window to rear elevation and four ring electric hob with oven under and extractor over.

Breakfast Room
2.4m x 2.8m (7'10" x 9'2")

having Upvc double glazed window to rear elevation, ceramic tiling to floor and one central heating radiator.

Utility
1.5m x 1.44m (4'11" x 4'9")

having plumbing for washing washing machine, vent for tumble dryer, fitted Ideal condensing combi gas fired central heating boiler and half obscure double glazed door to rear elevation.

Guest Cloak Room

having low level wc with concealed cistern, vanity wash basin, obscure Upvc double glazed window to side elevation, ceramic tiling to floor and charcoal grey central heating radiator.

On The First Floor
Landing

having access to loft space and fitted smoke alarm.

Master Bedroom
4.11m narrowing to 3.22m x 3.47m

having Upvc double glazed window to front elevation, one central heating radiator, useful overstairs storage cupboard and range of double built-in wardrobes together with bedside cupboards and kneehole dressing table.

En-Suite Shower Room

having low level wc with concealed cistern, vanity wash basin, fitted shaver point, shower enclosure with thermostatically controlled shower, low intensity spotlights to ceiling, fitted extractor vent, ceramic tiling to floor, heated chrome towel radiator and obscure Upvc double glazed window to front elevation.

Bedroom Two
4.3m x 2.65m (14'1" x 8'8")

having Upvc double glazed window to front elevation and charcoal coloured central heating radiator.

Bedroom Three
2.88m x 3.5m (9'5" x 11'6")

having Upvc double glazed window to rear elevation and fitted charcoal coloured central heating radiator.

Bedroom Four
2.66m x 2.64m (8'9" x 8'8")

having Upvc double glazed window to rear elevation and fitted charcoal coloured central heating radiator.

Family Bathroom

having suite comprising panelled bath with fitted Drenche shower over and glass and chrome screen, vanity wash basin, low level wc with concealed cistern, full tiling complement to walls and floor, obscure Upvc double glazed window to rear elevation, fitted extractor vent, low intensity spotlights to ceiling.

Outside

To the front the property enjoys a lovely garden plot with an extremely deep fore garden and a central driveway provides parking for numerous vehicles and leads to an attached garage with twin up and over doors, electric light, power and side courtesy door. To the rear is a lovely private garden with a large expanse of non-slip porcelain tiled patio, retaining sleeper wall and central steps rise up to a mainly grassed garden. At the far extent of the garden is an extremely large detached leisure/office building.

Leisure/Office Building
5.41m x 5.57m (17'9" x 18'3")

being fully insulated and having pine panels, separate bar area with extensive shelving and electrics, air-conditioning unit, low intensity spotlights to ceiling, separate Wi-Fi, ceramic tiling to floor and French doors opening out to the garden.

Services

All mains services are believed to be connected to the property.

Measurement

The approximate room sizes are quoted in metric. The imperial equivalent is included in brackets.

Tenure

Freehold - with vacant possession upon completion. Newton Fallowell recommend that purchasers satisfy themselves as to the tenure of the property and we would recommend that they consult a legal representative such as a Solicitor appointed in their purchase.

Note

The services, systems and appliances listed in this specification have not been tested by Newton Fallowell and no guarantee as to their operating ability or their efficiency can be given.

Note

Anti-Money Laundering Regulations – Intending purchasers will be required to provide identification documents via our compliance provider, Coadjute, at a cost of £45 plus VAT per transaction. This will need to be actioned at the offer stage and we would ask for your co-operation in order that there will be no delay in agreeing the sale.


Mortgage calculator

Calculate Your Stamp Duty
£
Results
Stamp Duty To Pay:
Effective Rate:
Tax Band % Taxable Sum Tax

Kinver Road, Winshill, Burton-on-Trent, DE15

Struggling to find a property? Get in touch and we'll help you find your ideal property.

Interested in viewing this property?
Book a Viewing
Main menu