4 bedroom Detached house Sold STC

Beamhill Road, Anslow, Burton-on-Trent, DE13

£400,000 | SSTC

4 Bedrooms
2 Bathrooms
2 Receptions

Burton on Trent

36 Station Street, 
Burton on Trent, 
DE14 1AX, 
Standout Features

Property Description

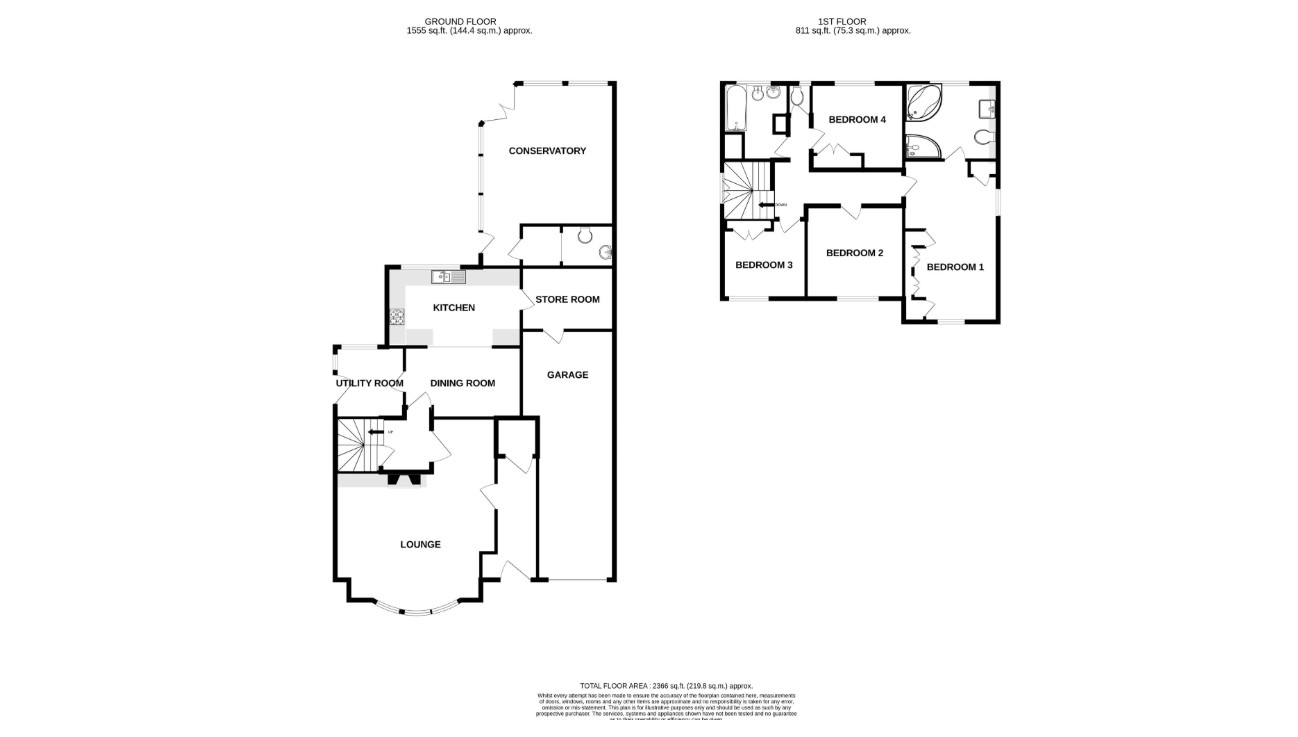
A substantial detached family home constructed in the 1960's by the current owner.  The property is located in a popular address on the outskirts of Burton upon Trent and enjoys open aspects to the rear.  The property is just a mile from the village of Anslow and 1.5 miles from Stretton which offers a comprehensive range of facilities and amenities.  Complemented by an established good sized garden together with ample off road parking and a double tandem garage the accommodation in brief comprises: - reception hall, good sized living room, inner hallway, dining room opening into a good sized kitchen with a utility/study and further utility room/store room.  There is also a substantial conservatory and guest cloak room.  On the first floor a landing leads to a large master bedroom with en-suite, three further bedrooms and bathroom.  The property is offered for sale with no upward chain. EPC rating: C. Council tax band: E, Tenure: Freehold,

Additional Information
EPC Rating:
C
Tenure:
Freehold
Council Tax Band:
E
Rooms
Accommodation In Detail

Half glazed Upvc entrance door opening to:

Reception Hall

having cloaks area and storage cupboard.

Living Room
5.75m x 4.58m (18'10" x 15'0")

having feature stone fireplace with natural wood panelling to chimney breast and slate hearth with log effect gas fire, adjacent tv plinth, four wall light points, two central heating radiators and large bow window to front elevation.

Inner Lobby

having staircase rising to first floor and understairs store cupboard.

Dining Room
3.35m x 2.28m (11'0" x 7'6")

having one central heating radiator, recessed ceiling light, door to utility room/study area and arched opening leading through to:

Kitchen
4.94m x 2.76m (16'2" x 9'1")

having stainless steel sink with mixer tap set into a marble effect work top with tiled surrounds, oak fronted base cupboards and drawers including pan cupboards, integrated dishwasher, matching wall mounted units including two glass fronted cupboards, double width appliance space for range style cooker with extractor canopy over, recessed ceiling lights, picture window to rear elevation and glazed panel door leading to:

Conservatory
5.17m x 3.73m (17'0" x 12'3")

having two wall light points, two central heating radiators, French doors to rear garden and further door to side elevation.

Store Room/Utility Room
3.15m x 2.02m (10'4" x 6'8")

having roll edged work top, high gloss fronted base cupboards, tiled surrounds, appliance space, recessed ceiling lights and door to garage.

Utility Room
3.35m x 2.28m (11'0" x 7'6")

having half glazed Upvc double glazed door to side elevation, picture window to rear elevation, one central heating radiator, recessed ceiling lights, stainless steel sink, wall mounted gas fired boiler and fitted bench/desk with built-in cupboards.

Guest Cloak Room

having a storage area, wc, wash basin and tiling to floor.

On The First Floor
Landing

having window to half landing and loft access via a drop down ladder (the loft is boarded and a good size).

Master Bedroom
5.96m x 3.41m (19'7" x 11'2")

having two central heating radiators, windows to front and side elevations and range of fitted furniture comprising wardrobes, drawers, dressing table with glass top and storage cupboards over bed recess.

En-Suite

having corner bath, twin sized shower cubicle, wash basin set on vanity unit with cupboards and drawers under, wc with concealed cistern, tiling to walls, ladder style radiator, recessed ceiling lights and window to rear elevation.

Bedroom Two
3.42m x 2.9m (11'3" x 9'6")

having one central heating radiator, window to front elevation and a range of built-in furniture comprising wardrobe, storage cupboards over bed recess and single wardrobe.

Bedroom Three
3.02m x 2.81m (9'11" x 9'3")

having one central heating radiator, window to front elevation and fitted furniture comprising double wardrobe and dressing table.

Bedroom Four
2.89m x 2.41m (9'6" x 7'11")

having one central heating radiator, window to rear elevation and built-in furniture comprising double wardrobe and storage cupboards over bed recess.

Bathroom

having airing cupboard, linen cupboard, bath with tiled surrounds, bidet, wash basin, tiling to walls, tiled work top, window to rear elevation and one central heating radiator.

WC

having wc and window to rear elevation.

Garage
9.24m x 3.43m (30'4" x 11'3")

having up and over door, personnel door leading to the utility room/store room.

Outside

To the front of the home is a block paved driveway providing ample parking and gives access to the garage, there is pedestrian access to the rear. To the rear is a substantial garden with a paved patio area, walled raised flower beds, lawned area with a variety of established plants, shrubs and trees. There is also a gazebo, greenhouse and an old summerhouse/garden shed.

Services

All mains services are believed to be connected to the property.

Measurement

The approximate room sizes are quoted in metric. The imperial equivalent is included in brackets.

Tenure

Freehold - with vacant possession upon completion. Newton Fallowell recommend that purchasers satisfy themselves as to the tenure of the property and we would recommend that they consult a legal representative such as a Solicitor appointed in their purchase.

Note

The services, systems and appliances listed in this specification have not been tested by Newton Fallowell and no guarantee as to their operating ability or their efficiency can be given.
Anti-Money Laundering Regulations – Intending purchasers will be required to provide identification documents via our compliance provider, Coadjute, at a cost of £45 plus VAT per transaction. This will need to be actioned at the offer stage and we would ask for your co-operation in order that there will be no delay in agreeing the sale.


Mortgage calculator

Calculate Your Stamp Duty
£
Results
Stamp Duty To Pay:
Effective Rate:
Tax Band % Taxable Sum Tax

Beamhill Road, Anslow, Burton-on-Trent, DE13

Struggling to find a property? Get in touch and we'll help you find your ideal property.

Interested in viewing this property?
Book a Viewing
Main menu