3 bedroom Terraced House Sold STC
£160,000 | SSTC
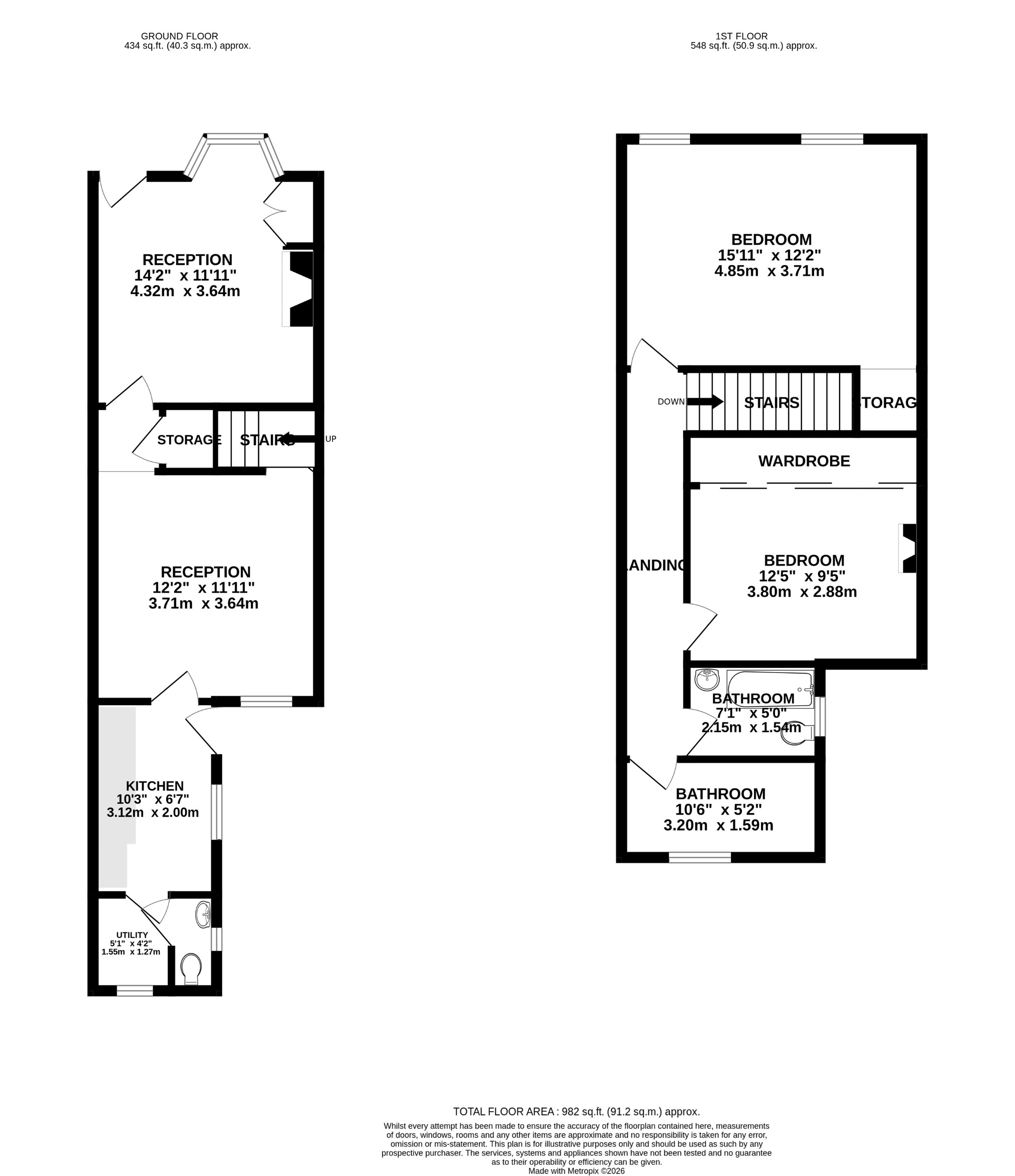
Situated upon the ever popular Frederick Street this traditional, well presented, three bedroomed mid terraced Victorian home is worthy of an internal inspection in order to appreciate the accommodation on offer. In brief the accommodation comprises: - bay windowed front sitting room, inner lobby with understairs store, rear sitting room, fitted kitchen, utility room, guest cloak room and on the first floor a landing leads to the master bedroom, two further bedrooms and re-fitted bathroom. Outside to the front is a small fore garden and to the rear is a pleasant landscaped garden with patio and lawned areas. EPC rating: E. Council tax band: A, Tenure: Freehold,
Half obscure Upvc double glazed entrance door leading to:
having feature fireplace and hearth with open grate, fitted meter cupboard to side of chimney breast, fitted picture rail and one central heating radiator.
having useful understairs door and leading through to:
having Upvc double glazed window to rear elevation, staircase rising to first floor, fitted plate rail, feature electric wall mounted fire and one central heating radiator.
having a good range of cream fronted base and wall mounted units with complementary rolled edged working surfaces, four ring electric hob with oven under and extractor over, polycarbonate sink and draining unit, wall mounted Baxi condensing combi gas fired central heating boiler, ceramic tiling to floor, half obscure double glazed door to side and Upvc double glazed window to side elevation.
having one central heating radiator, ceramic tiling to floor, Upvc double glazed window to rear elevation and plumbing for washing machine.
having low level wc, wall mounted wash basin, ceramic tiling to floor, one central heating radiator and obscure Upvc double glazed window to side elevation.
having one central heating radiator.
having twin Upvc double glazed sash style windows to front elevation, one central heating radiator, feature ornate cast iron fireplace and useful overstairs storage giving access to loft.
having Upvc double glazed window to rear elevation, one central heating radiator, ornate cast fireplace and a range of three double built-in wardrobes with sliding doors.
having Upvc double glazed window to rear and one central heating radiator.
having modern suite comprising panelled bath with thermostatically controlled shower over, pedestal wash basin, low level wc, full tiling complement to walls, fitted extractor vent and obscure Upvc double glazed window to side elevation.
To the front of the property is a small fore garden, this area is laid to gravel. To the rear is a paved area which subsequently leads to a good sized patio, beyond which is a lawned garden with a decking area. There is a bin store, outside store at the far extent of the garden, lighting and water supply.
All mains services are believed to be connected to the property.
The approximate room sizes are quoted in metric. The imperial equivalent is included in brackets.
Freehold - with vacant possession upon completion. Newton Fallowell recommend that purchasers satisfy themselves as to the tenure of the property and we would recommend that they consult a legal representative such as a Solicitor appointed in their purchase.
The services, systems and appliances listed in this specification have not been tested by Newton Fallowell and no guarantee as to their operating ability or their efficiency can be given.
Anti-Money Laundering Regulations – Intending purchasers will be required to provide identification documents via our compliance provider, Coadjute, at a cost of £45 plus VAT per transaction. This will need to be actioned at the offer stage and we would ask for your co-operation in order that there will be no delay in agreeing the sale.
| Tax Band | % | Taxable Sum | Tax |
|---|
Struggling to find a property? Get in touch and we'll help you find your ideal property.