3 bedroom Semi-detached house For Sale
Offers over £265,000 | Available
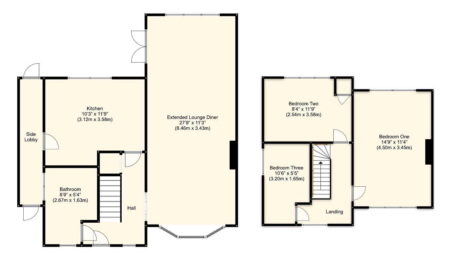
Enjoying a single storey extension to the rear creating a larger reception room as well as the use of a 17ft garden room with bi-folding doors perfect for those occasions when entertaining, fall in love with this much improved three bedroom semi detached property offering a modern interior, ideal for growing families or first time buyers and must be viewed in person to be truly appreciated. The gas centrally heated and double glazed layout includes an entrance hall, aforementioned enlarged lounge diner, modern fitted kitchen and a contemporary fitted bathroom, with the first floor offering three bedrooms. Well placed for access to the motorway network and amenities, the plot offers parking to the front with a side lobby providing access to the larger than average garden to the rear oozing a particularly private feel. An early viewing comes highly recommended to avoid disappointment. EPC rating: D. Council tax band: B, Tenure: Freehold,
Front entrance door opens into the:
Presented with wood effect flooring, the entrance hall offers a carpeted staircase rising to the first floor, central heating radiator and a useful under stairs storage area. The open plan hall gives access to all of the downstairs accommodation.
Affording space for both formal dining and comfortable sitting, the primary reception room offers a bay window to the front elevation as well as window to the rear elevation and french doors leading to the garden. With central heating radiators, feature exposed brick fireplace, wood effect flooring and spotlighting.
Fitted with a contemporary range of wall mounted and base units with complementary roll edge work surfaces over and brick effect tiled splashbacks. Features include an inset 1.5 sink and drainer unit with mixer tap, built in oven with a four ring gas hob, space for fridge freezer, plumbing for washing machine and space for a tumble dryer. With a modern radiator, window to the rear elevation and a side access door to the:
Providing access to the front and rear, with a skylight window.
Fitted with a contemporary three piece suite comprising a bath with shower over and screen, wash hand basin and wc, all with complementary tiled surrounds. Enjoying dual aspect glazing, there is also a column radiator.
Giving access to the bedrooms and bathroom, with a window to the front elevation, carpet flooring and a hatch to the loft space.
A light and airy double room offering dual aspect glazing, with two central heating radiators and carpet flooring.
A second double room enjoying views of the rear garden, with a built in cupboard, carpet flooring and a central heating radiator.
With a window to the side elevation and carpet flooring.
The plot offers a driveway to the front providing off road parking for three cars. To the rear is a larger than average fully enclosed garden firstly offering a raised patio and decking area adjacent to the accommodation perfect for outdoor entertaining. Steps leads down to a mainly laid to lawn garden with a variety of plants and shrubs to the borders. A pathway leads to the back of the garden where a second patio area can be found ideal for outdoor sitting. With fencing to boundaries and access to the garden room.
Enjoying bi-folding doors to the garden, a particular selling feature is the outbuilding providing the perfect space to entertaining. With spotlighting, power, feature bar and panelling.
We understand the property to be freehold with vacant possession upon completion. Blaby District Council - Tax Band B. Please be advised that when a property is sold, local authorities reserve the right to re-calculate the council tax band.
Viewings are strictly by appointment only.
We are pleased to introduce the Mortgage Advice Bureau, who works with Newton Fallowell Estate Agents to provide our customers with expert mortgage advice. They have access to thousands of mortgages, including exclusive deals not available on the high street. Their advice is tailored to your circumstances, whether you’re looking to take your first steps on the property ladder, moving home, or even investing in a buy-to-let property. They can help find the right mortgage for you and support your application every step of the way. To speak with our expert 'in branch' adviser, please contact our office.
In line with current money laundering regulations, prospective buyers will be asked to provide us with photo I.D. (e.g. Passport, driving licence, bus pass etc) and proof of address (e.g. Current utility bill, bank statement etc). You will also be asked to provide us with proof of how you will be funding your purchase. Please note that when making an offer, if you are taking out a mortgage, you will also be asked to have a no obligation chat with our 'in branch' mortgage adviser to confirm your affordability. We ask for your cooperation in this matter as this information will be required before a sale can be agreed.
These particulars, whilst believed to be accurate are set out as a general outline only for guidance and do not constitute any part of an offer or contract. Details are given without any responsibility, and any intending purchasers, lessees or third parties should not rely on them as statements of representation of fact, but must satisfy themselves by inspection or otherwise as to their accuracy. All photographs, measurements (width x length), floorplans and distances referred to are given as a guide only and should not be relied upon for the purchase of carpets or any other fixtures or fittings. All services and appliances have not and will not be tested by Newton Fallowell. Lease details, service ground rent are given as a guide only and should be checked and confirmed by your solicitor prior to exchange of contracts. No person in this firms employment has the authority to make or give any representation or warranty in respect of the property. We retain the copyright.
Newton Fallowell and our partners provide a range of services to our vendors and purchasers, although you are free to choose an alternative provider. We can refer you to Benjamin York at Chamelo to help with finances, we may receive a referral fee if you take out a mortgage through him. If you require a solicitor to handle your sale or purchase, we can refer you on to a panel of preferred providers and we will receive a referral fee should you decide to use them to sell or purchase a property. We can also refer you to a surveyor and energy assessor and we will receive a referral fee should you use their services. If you require more information regarding our referral programmes, please ask at our office.
If you have a house to sell then we would love to provide you with a free no obligation valuation.
| Tax Band | % | Taxable Sum | Tax |
|---|
Struggling to find a property? Get in touch and we'll help you find your ideal property.