3 bedroom Semi-detached house For Sale

Ashover Road, Newhall, Swadlincote, Derbyshire, DE11

£224,000 | Available

3 Bedrooms
1 Bathrooms
1 Receptions

Burton on Trent

36 Station Street, 
Burton on Trent, 
DE14 1AX, 
Standout Features

Property Description

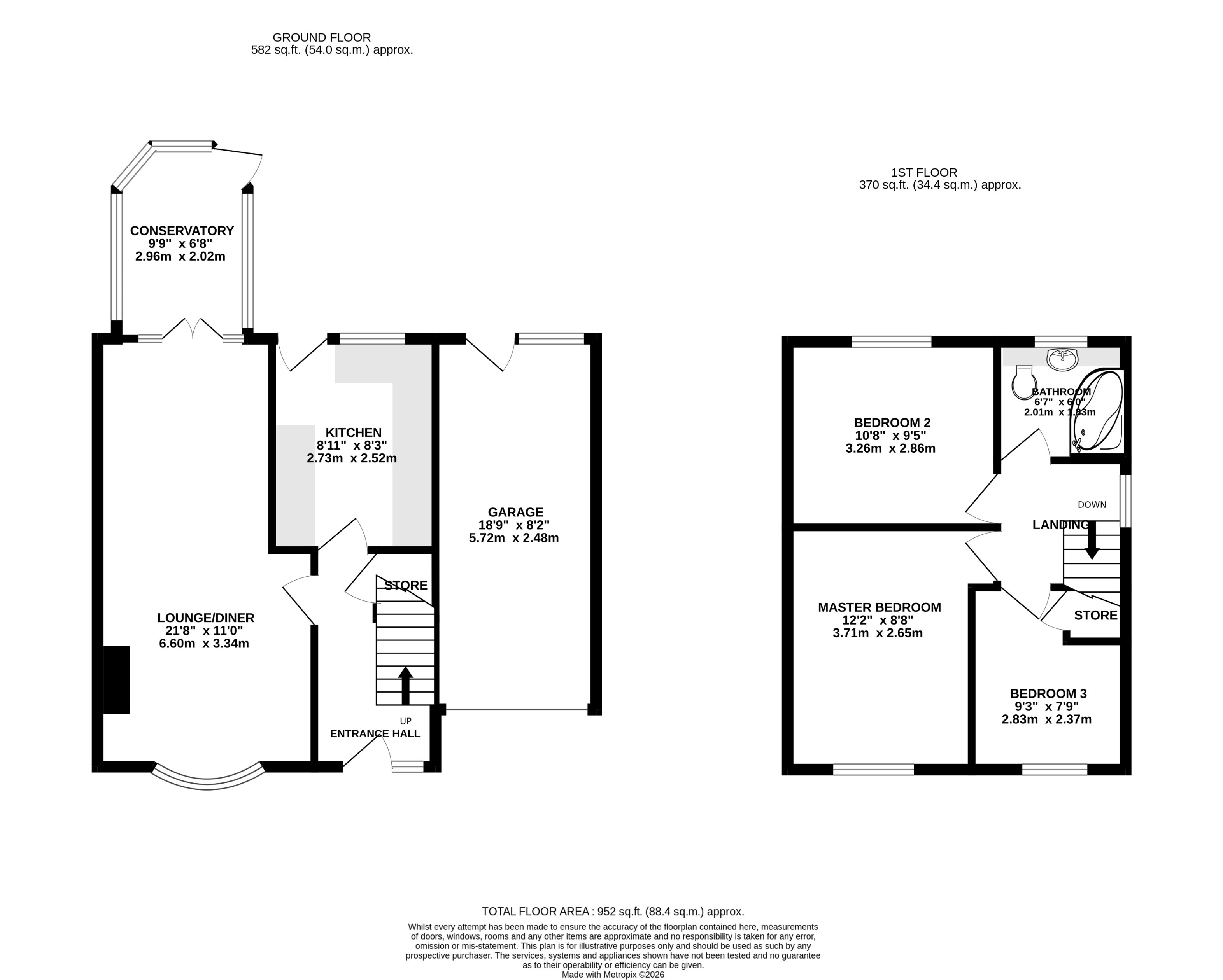
Newton Fallowell are pleased to be able to offer for sale this well proportioned three bedroomed semi detached home in a desirable road in Newhall.  Benefitting from a great sized rear garden which is low maintenance and immaculately landscaped, the property is ideal for any family looking to buy in this area.  In brief the accommodation comprises: - entrance hall, lounge/diner, kitchen, conservatory and on the first floor a landing leads to three bedrooms and high specification bathroom.  The property also benefits from the larger than average which has plumbing for washing machine and tumble dryer and roller shutter doors, there is potential to extend the garage to a second floor subject to planning.  Viewings are highly recommended. EPC rating: D. Council tax band: B, Tenure: Freehold,

Additional Information
EPC Rating:
D
Tenure:
Freehold
Council Tax Band:
B
Rooms
Accommodation In Detail

Frosted Upvc double glazed door with frosted double glazed side panel leading to:

Entrance Hall

having staircase rising to first floor, feature wood panelling to walls, thermostat for central heating, understairs storage with consumer unit, laminate flooring and one central heating radiator with feature cover.

Lounge Diner
3.34m x 3.76m (10'11" x 12'4")

having gas fire with marble hearth and wooden surround, feature chimney breast, media points, wood effect laminate flooring, one central heating radiator and Upvc double glazed bay window to front elevation.

Dining Area
2.69m x 2.83m (8'10" x 9'3")

having wood effect laminate flooring, one central heating radiator and Upvc double glazed patio doors with Upvc double glazed side panels leading to:

Conservatory
2.02m x 2.96m (6'8" x 9'9")

having Upvc double glazed panels, feature wood roof with polycarbonate panels, wood effect vinyl flooring, one central heating radiator and Upvc double glazed door to rear elevation.

Kitchen
2.52m x 2.73m (8'3" x 8'11")

having range of base and wall mounted units, granite effect laminate work surface, sink and drainer with chrome mixer tap, space for oven with extractor over, space for under counter fridge and freezer, tiled splashback, tiling to floor, underfloor heating, Upvc double glazed window to rear elevation and frosted Upvc double glazed door to rear.

On The First Floor
Landing

having access to loft space, feature panelling to walls, carpet to floor and Upvc double glazed window to side elevation.

Master Bedroom
2.65m x 3.71m (8'8" x 12'2")

having fully integrated bedroom furniture, tv aerial point, carpet to floor, one central heating radiator and Upvc double glazed window to front elevation.

Bedroom Two
3.26m x 2.86m (10'8" x 9'5")

having fully integrated bedroom furniture, carpet to floor, one central heating radiator and Upvc double glazed window to rear elevation.

Bedroom Three
2.37m x 2.83m (7'9" x 9'3")

having BT point, media point, built-in overstairs storage, wood effect laminate flooring, one central heating radiator and two Upvc double glazed windows to front elevation.

Bathroom
2.01m x 1.83m (6'7" x 6'0")

having low level wc with hidden cistern, built-in vanity wash basin with chrome mixer tap, jacuzzi style corner bath with glass shower screen and jacuzzi style shower over, extractor fan, built-in storage, vinyl flooring, down lighters, chrome heated towel radiator, full tiling complement and frosted Upvc double glazed window to rear elevation.

Outside

To the rear of the property is an immaculately landscaped low maintenance garden with a large patio area ideal for entertaining, great sized artificial grassed area, further seating area, composite decked seating area and garden/sun room which has power and lighting. To the front is a printed concrete drive and frontage providing parking for one vehicle and leading to the garage.

Garage
2.38m x 5.72m (7'10" x 18'9")

having smart meters for gas and electric, plumbing for washing machine and tumble dryer, plenty of storage, roller shutter door and Upvc double glazed window and door to rear elevation.

Services

All mains services are believed to be connected to the property.

Measurement

The approximate room sizes are quoted in metric. The imperial equivalent is included in brackets.

Tenure

Freehold - with vacant possession upon completion. Newton Fallowell recommend that purchasers satisfy themselves as to the tenure of the property and we would recommend that they consult a legal representative such as a Solicitor appointed in their purchase.

Note

The services, systems and appliances listed in this specification have not been tested by Newton Fallowell and no guarantee as to their operating ability or their efficiency can be given.
Anti-Money Laundering Regulations – Intending purchasers will be required to provide identification documents via our compliance provider, Coadjute, at a cost of £45 plus VAT per transaction. This will need to be actioned at the offer stage and we would ask for your co-operation in order that there will be no delay in agreeing the sale.


Mortgage calculator

Calculate Your Stamp Duty
£
Results
Stamp Duty To Pay:
Effective Rate:
Tax Band % Taxable Sum Tax

Ashover Road, Newhall, Swadlincote, Derbyshire, DE11

Struggling to find a property? Get in touch and we'll help you find your ideal property.

Interested in viewing this property?
Book a Viewing
Main menu