3 bedroom Detached house For Sale

Pingle Lane, Northborough, PE6

£425,000 | Available

3 Bedrooms
2 Bathrooms
4 Receptions

Market Deeping

3 Bridge Foot, 
Market Deeping, 
PE6 8AA, 
Standout Features

Property Description

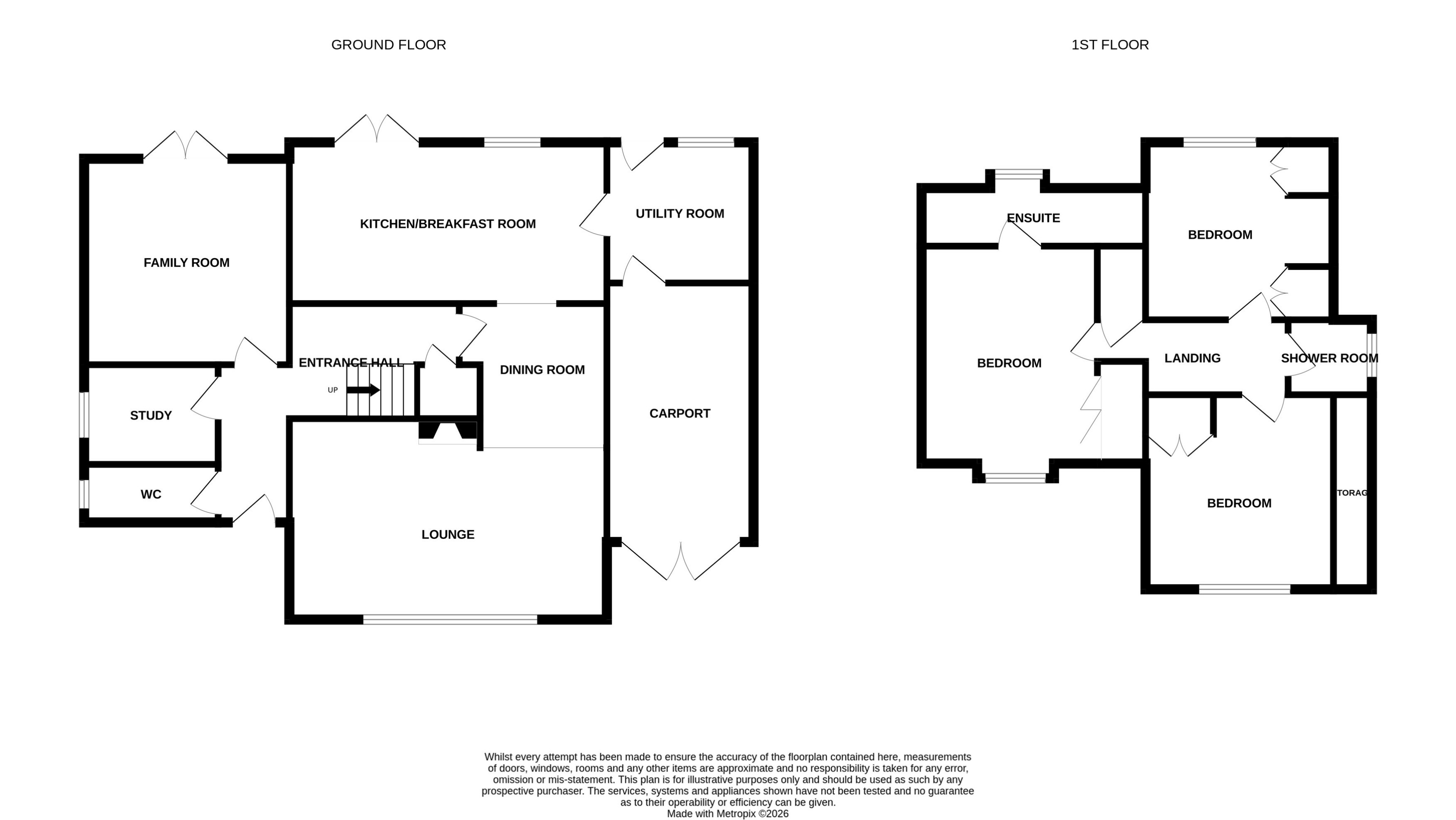
Newton Fallowell are proud to offer for sale in the desirable Village of Northborough, this detached chalet style property. The property offers flexible accommodation over two floors and is situated at the end of a quiet cul-de-sac. The ground floor briefly comprises of a study, family room, lounge, dining room, kitchen breakfast room, a utility room and WC. To the first floor the master bedroom benefits from an en-suite and are two further well appointed bedrooms serviced by a shower room. Externally there is a gravel driveway to the front providing off road parking and there is a generous car port to the side offering a variety of uses. The rear garden is mainly laid to lawn with a patio seating area and a timber built store to the bottom of the garden. Viewing of this property is highly recommended.  EPC rating: D. Council tax band: C, Tenure: Freehold,

Additional Information
EPC Rating:
D
Tenure:
Freehold
Council Tax Band:
C
Rooms
Entrance hall

With tiled flooring, stairs to first floor, radiator. Doors to:

WC

Fitted with a two piece suite comprising of a low level WC and wash basin. PVCu double glazed window, extractor fan, radiator.

Study

PVCu double glazed window to the side, radiator.

Family room
3.84m x 3.66m (12'7" x 12'0")

PVCu double glazed French doors opening to rear garden, built in corner TV unit, radiator.

Lounge
5.66m x 3.58m (18'7" x 11'9")

PVCu double glazed window to the front, radiator. Opening to:

Dining room
2.57m x 2.26m (8'5" x 7'5")

With tiled flooring, radiator, PVCu double glazed window to the side. Opening to lounge. Opening to kitchen breakfast room.

Kitchen / breakfast room
5.66m x 2.87m (18'7" x 9'5")

Fitted with a matching range of base and eye level units with worktop over, breakfast bar with storage under, twin eye level ovens, electric hob with extractor over, stainless steel sink with mixer tap, integrated dishwasher. PVCu double glazed window and French doors to the rear garden. Door to:

Utility room

Fitted with base and eye level units with work top over, space and plumbing for washing machine and tumble dryer, space for fridge freezer, stainless steel sink with mixer tap, tiled flooring. Door to car port. PVCu double glazed door and window to the rear.

First floor landing

Airing cupboard. Doors to:

Bedroom 1
3.89m x 3.17m (12'9" x 10'5")

PVCu double glazed window to the front, fitted storage cupboards, radiator, air conditioning. Door to:

En-suite

Comprising of a bath with hand held shower attachment, sink and WC, heated towel rail, extractor fan. PVCu double glazed window.

Bedroom 2
3.61m x 3.35m (11'10" x 11'0")

PVCu double glazed window to the front, built in wardrobe and range of fitted drawers, radiator.

Bedroom 3
3.35m x 3.17m (11'0" x 10'5")

PVCu double glazed window to the rear, range of fitted bedroom furniture comprising of wardrobes and dressing table, radiator.

Shower room

Fitted with a three piece suite comprising of a corner shower cubicle, sink and WC, radiator, PVCu double glazed window.

Outside

To the front of the property there is a gravel driveway providing off road parking. There is a car port to one side and gated access to the rear garden on the other. The garden is mainly laid to lawn with a patio seating area and a storage shed at the end of the garden.

Car port

With double doors to the front.

Disclaimer

These particulars are issued in good faith but do not constitute representations of fact or form part of any offer or contract. The matters referred to in these particulars should be independently verified by prospective buyers or tenants. Neither Newton Fallowell Market Deeping nor any of its employees or agents has any authority to make or give any representation or warranty whatever in relation to this property.

Anti-Money Laundering Requirements

By law HMRC require us to conduct anti-money laundering checks on all those selling or buying a property as prescribed by the Money Laundering Regulations 2017. Whilst we retain responsibility for ensuring checks and any ongoing monitoring are carried out correctly, the initial checks are carried out on our behalf by Coadjute who will contact you once you have had an offer accepted on a property you wish to buy.

The cost of these checks is £54 (incl. VAT), which covers the cost of obtaining relevant data and any manual checks and monitoring which might be required. This fee will need to be paid by you in advance of us issuing a memorandum of sale, directly to Coadjute, and is non-refundable.


Mortgage calculator

Calculate Your Stamp Duty
£
Results
Stamp Duty To Pay:
Effective Rate:
Tax Band % Taxable Sum Tax

Pingle Lane, Northborough, PE6

Struggling to find a property? Get in touch and we'll help you find your ideal property.

Interested in viewing this property?
Book a Viewing
Main menu