3 bedroom Detached house Sold STC

Hubberts Bridge Road, Kirton Holme, PE20

£200,000 | SSTC

3 Bedrooms
1 Bathrooms
2 Receptions

Boston

26 Wide Bargate, 
Boston, 
PE21 6RX, 
Standout Features

Property Description

A rare and exciting opportunity to acquire a detached home occupying a generous plot of approximately 0.26 acre (subject to survey) and enjoying open views to both the front and rear. Set in a desirable location, the property offers exceptional scope for modernisation, extension, or redevelopment (subject to the necessary consents), making it ideal for buyers seeking to create a bespoke home or investors looking for long-term potential.

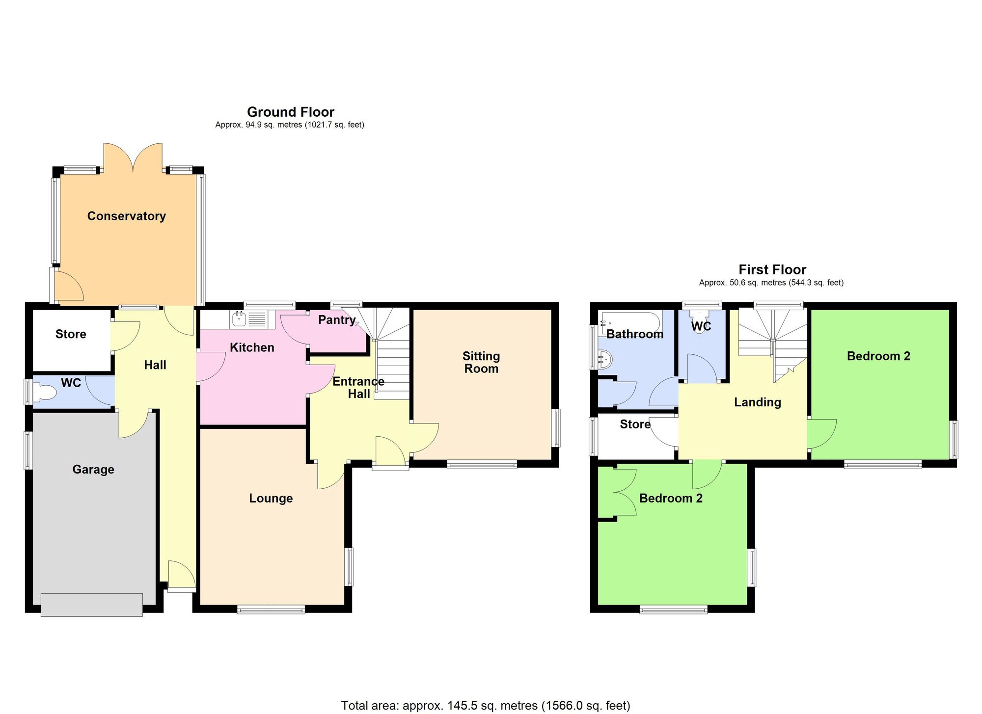
The existing accommodation is well-proportioned and currently comprises an entrance hall, lounge, sitting room, kitchen with pantry, side entrance hall, conservatory, store and WC to the ground floor. To the first floor are two double bedrooms, a bathroom and a separate WC.

Externally, the property is surrounded by expansive lawned gardens, providing ample space for landscaping, outdoor entertaining, or future development and includes a detached garage. Further benefits include oil-fired central heating, double glazing and the advantage of NO ONWARD CHAIN, allowing for a straightforward purchase.

This is a prime opportunity to secure a substantial plot in an attractive setting, offering privacy, views and outstanding potential to enhance value and create a home tailored to your vision.

Additional Information
EPC Rating:
E
Tenure:
Freehold
Council Tax Band:
C
Rooms
ACCOMMODATION

Part glazed front entrance door through to the:

ENTRANCE HALL

Having radiator and staircase rising to first floor.

LOUNGE
14' 7" x 12' 6" (4.45m x 3.82m)

(max) Having windows to front & side elevations, radiator and open fireplace.

SITTING ROOM
12' 6" x 12' 0" (3.80m x 3.65m)

Having windows to front & side elevations, radiator and open fireplace.

DINING KITCHEN
10' 0" x 8' 11" (3.05m x 2.73m)

Having window to rear elevation, oil fired boiler providing for both domestic hot water & heating, pantry off with window to rear elevation and sink unit.

SIDE ENTRANCE

Having part glazed door to front elevation, door to garage, store and WC off. Part glazed door to the:

CONSERVATORY
10' 8" x 9' 7" (3.26m x 2.93m)

Of sealed unit double glazed construction on brick walls with polycarbonate roof with french doors to rear elevation and door to side.

FIRST FLOOR LANDING

Having windows to front & rear elevations, access to roof space and storage cupboard with window to side.

BEDROOM ONE
12' 4" x 12' 4" (3.76m x 3.76m)

Having windows to front & side elevations, radiator and built-in cupboard.

BEDROOM TWO
12' 6" x 12' 0" (3.81m x 3.65m)

Having windows to front & side elevations and radiator.

BATHROOM

Having window to side elevation, radiator, airing cupboard, panelled bath and pedestal hand basin.

SEPARATE WC

Having window to rear elevation and low level WC.

EXTERIOR

The property sits in a lawned garden with hedged boundaries and an oil storage tank.

GARAGE
16' 8" x 10' 1" (5.09m x 3.07m)

Having up-and-over door, door to side, light and power.

THE PLOT

The property occupies a plot of approximately 0.26 acre, subject to survey. Whilst we believe the area of the property has been accurately calculated, any prospective buyer who considers this feature to be particularly important is strongly recommended to have the site measurements checked by their own surveyor before submitting an offer to purchase.

SERVICES

The property has mains electricity and water connected. Drainage is to a septic tank. Heating is via an oil fired boiler serving radiators and the property is double glazed. The current council tax is band C.

LIFETIME LEGAL

We are required by law to conduct anti-money laundering checks on all those selling or buying a property. Whilst we retain responsibility for ensuring checks and any ongoing monitoring are carried out correctly, the initial checks are carried out on our behalf by Lifetime Legal who will contact you once you have agreed to instruct us in your sale or had an offer accepted on a property you wish to buy. The cost of these checks is £72 (incl. VAT), which covers the cost of obtaining relevant data and any manual checks and monitoring which might be required. This fee will need to be paid by you in advance of us publishing your property (in the case of a vendor) or issuing a memorandum of sale (in the case of a buyer), directly to Lifetime Legal, and is non-refundable. We will receive some of the fee taken by Lifetime Legal to compensate for its role in the provision of these checks.

AGENT'S NOTES

These particulars are issued in good faith but do not constitute representations of fact or form part of any offer or contract. The matters referred to in these particulars should be independently verified by prospective buyers or tenants. Neither Newton Fallowell nor any of its employees or agents has any authority to make or give any representation or warranty whatever in relation to this property.


Mortgage calculator

Calculate Your Stamp Duty
£
Results
Stamp Duty To Pay:
Effective Rate:
Tax Band % Taxable Sum Tax

Hubberts Bridge Road, Kirton Holme, PE20

Struggling to find a property? Get in touch and we'll help you find your ideal property.

Interested in viewing this property?
Book a Viewing
Main menu