2 bedroom Terraced House For Sale
£140,000 | Available
Situated close to Swadlincote in South Derbyshire, Church Gresley is a thriving and established village, with a a variety of amenities and facilities including schools, parks, pubs and shops. Centrally located, it is well placed for access to the A444/M42 and wider ranging retail and leisure facilities in nearby Swadlincote.
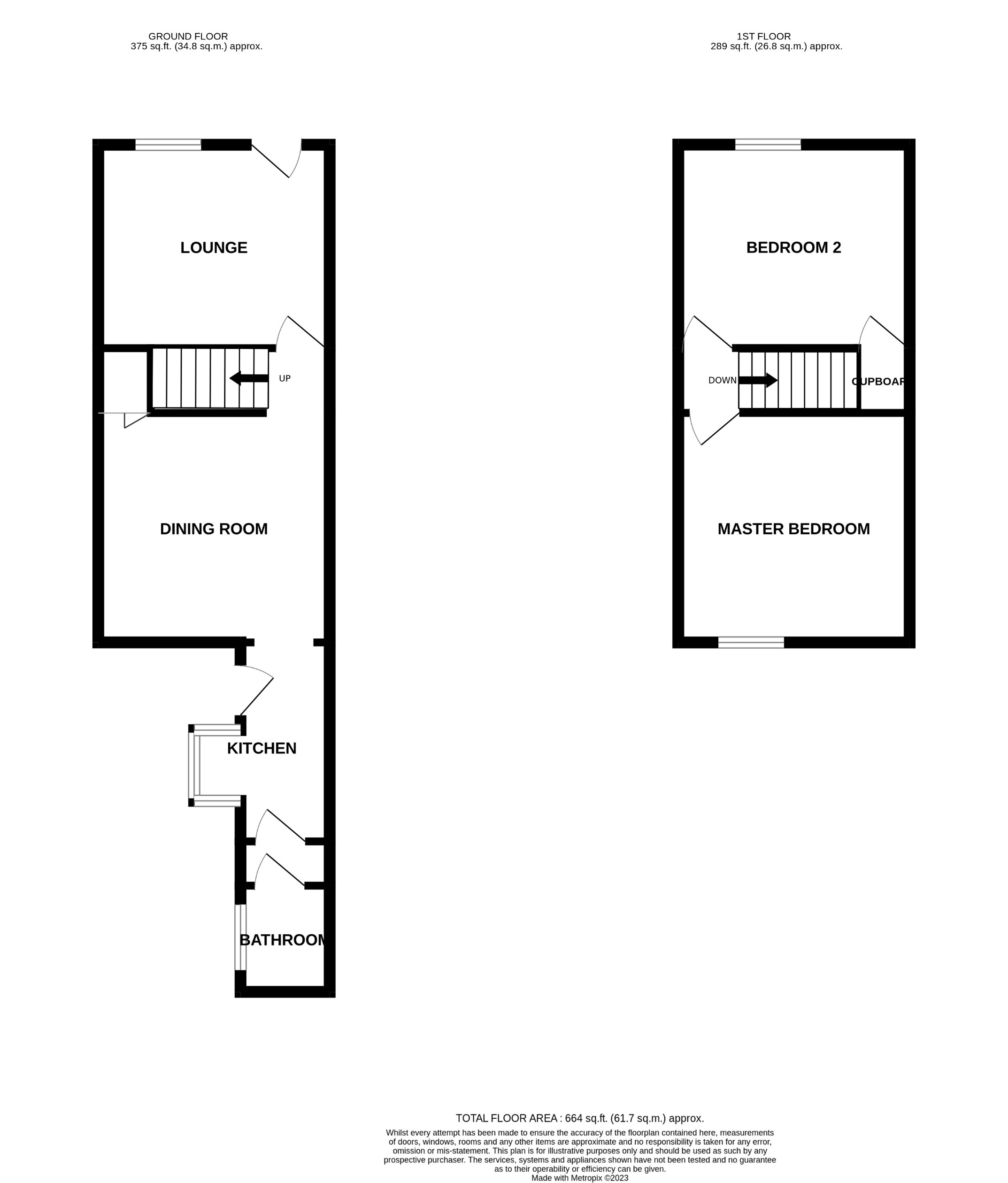
The main entrance is to the front, with a door to the lounge which has a wall mounted electric fire and door to the inner lobby, with stairs off to the first floor. The lobby leads through to the dining room, located to the rear. This has an exposed brick feature fireplace., under stairs cupboard and door to the kitchen. The kitchen has a range of wall and base units, appliance spaces and door to the rear garden. There's a lobby off the kitchen with a further door to the bathroom, which has a bath, electric shower, wash basin and WC. To the first floor, the master bedroom is located to the rear, with bedroom two, also a double with an over stairs cupboard, located to the front.
To the front there's a small, walled fore garden. To the side there's a shared entry with access over the neighbouring property to the South facing rear garden, with block paved patio, lawn and two brick outhouses.
SERVICES: Water, mains gas and electricity are connected. The services, systems and appliances listed in this specification have not been tested by Newton Fallowell and no guarantee as to their operating ability or their efficiency can be given. MEASUREMENTS: Please note that room sizes are quoted in metres to the nearest tenth of a metre measured from wall to wall. The imperial equivalent is included as an approximate guide for applicants not fully conversant with the metric system. Room measurements are included as a guide to room sizes and are not intended to be used when ordering carpets or flooring. TENURE: Freehold - with vacant possession on completion. Newton Fallowell recommend that purchasers satisfy themselves as to the tenure of this property and we recommend they consult a legal representative such as a solicitor appointed in their purchase.
The property is within South Derbyshire District Council and is listed as a band A property at https://www.gov.uk/council-tax-bands. EPC rating: D. Council tax band: A, Tenure: Freehold,
| Tax Band | % | Taxable Sum | Tax |
|---|
Struggling to find a property? Get in touch and we'll help you find your ideal property.