2 bedroom Flat For Sale

Norville Drive, Hanley, Stoke-on-Trent, ST1

£125,000 | Available

2 Bedrooms
2 Bathrooms
1 Receptions

Stoke on Trent

27 Piccadilly, 
Hanley, 
Stoke on Trent, 
ST1 1EN, 
Standout Features

Property Description

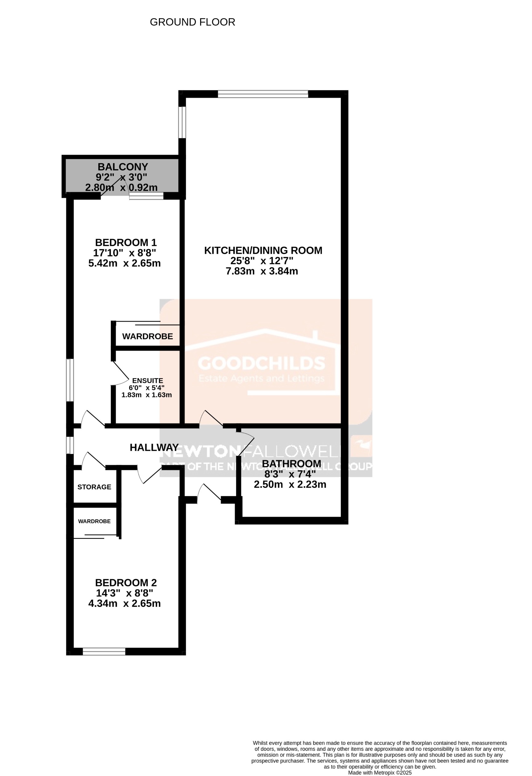
STUNNING GROUND FLOOR APARTMENT WITH A BALCONY & NO UPWARD CHAIN - Are you looking for spacious ground floor apartment close to Hanley town centre and Staffs Uni? If so then look no further! With a modern & well planned layout and ample amenities nearby this is sure to suit a range of buyers from investors, to first time buyers, to those looking to downsize. This property is beautifully appointed throughout and being in such a convenient location we're sure it won't be around for long.

As you walk into the apartment you will be welcomed into the entrance hallway. Just off from here is the family bathroom which comes with a modern white three piece suite and newly laid floor tiles. Next you will find the heart of the home, a huge open plan lounge kitchen diner with new laminate flooring, ideal for entertaining. The kitchen comes with a range of wall and base units together with integrated appliances. Moving through the hallway you step up onto the landing which has a handy storage cupboard and provides access to both bedrooms. These are both double bedrooms with both rooms benefitting from built in wardrobes. The master bedroom has an en-suite with new tiled flooring and provides access onto the balcony.
Outside there is an allocated parking space next to the entrance to the building. EPC rating: C. Council tax band: B, Tenure: Leasehold,

Additional Information
EPC Rating:
C
Tenure:
Leasehold
Council Tax Band:
B
Rooms
Entrance hallway

Electric heater and door to front.

Open plan kitchen / living room
8.31m x 3.86m

Range of wall and base units with preparation work surfaces. Integrated oven with hobs and extractor over. Space for fridge freeze and washing machine. Electric heaters and two triple glazed windows.

Landing

Storage cupboard and triple glazed window.

Bathroom
2.51m x 1.96m

White three piece suite comprising of; W.C, sink and panelled bath. Part tiled walls, newly tiled flooring, extractor fan and heated towel rail.

Master bedroom
2.64m x 3.63m

Built-in wardrobe, electric heater, triple glazed window and door out onto the balcony.

En-suite
1.45m x 1.70m

White three piece suite comprising of; W.C, sink and shower cubicle. Part tiled walls, newly tiled flooring, extractor fan and heated towel rail.

Bedroom two
2.64m x 4.37m max

Built-in wardrobe, electric heater and triple glazed window.

Balcony

Balcony with decking floor ideal for outside dining.

Externally

Allocated parking space next to building entrance.

ID CHECKS

Once an offer is accepted on a property marketed by Goodchilds Estate Agents we are required to complete ID verification checks on all buyers and to apply ongoing monitoring until the transaction ends. Whilst this is the responsibility of Goodchilds Estate Agents we may use the services of Landmark or Move Butler, to verify clients' identity. This is not a credit check and therefore will have no effect on your credit history. You agree for us to complete these checks, and the cost of these checks is £36.00 inc. VAT per buyer. This is paid in advance, when an offer is agreed and prior to a sales memorandum being issued. This charge is non-refundable.


Mortgage calculator

Calculate Your Stamp Duty
£
Results
Stamp Duty To Pay:
Effective Rate:
Tax Band % Taxable Sum Tax

Norville Drive, Hanley, Stoke-on-Trent, ST1

Struggling to find a property? Get in touch and we'll help you find your ideal property.

Interested in viewing this property?
Book a Viewing
Main menu