2 bedroom End of terrace house For Sale

High Street, Newhall, Swadlincote, Derbyshire, DE11

Fixed Price £130,000 | Available

2 Bedrooms
1 Bathrooms
2 Receptions

Burton on Trent

36 Station Street, 
Burton on Trent, 
DE14 1AX, 
Standout Features

Property Description

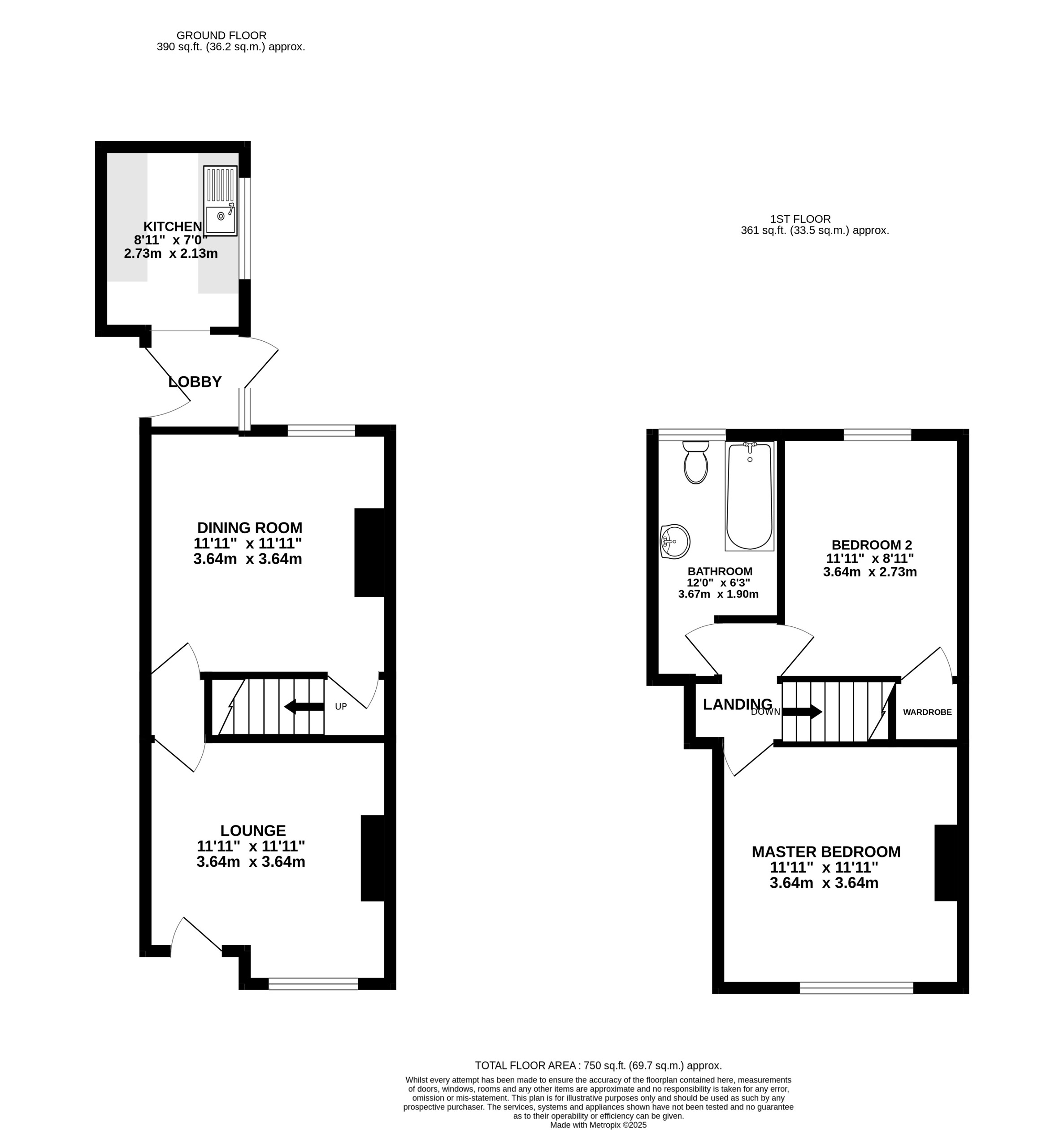
Newton Fallowell are pleased to be able to offer for sale this traditional two bedroomed end terraced located centrally in Newhall.  Benefitting from original features and high ceilings the property in brief comprises: - lounge, dining room, kitchen and on the first floor a landing leads to two large double bedrooms and a good sized bathroom.  Outside the property benefits from a fully enclosed rear garden with a number of outbuildings for storage.  Viewings are recommended. EPC rating: D. Council tax band: A, Tenure: Freehold,

Additional Information
EPC Rating:
D
Tenure:
Freehold
Council Tax Band:
A
Rooms
Accommodation In Detail
Storm Porch

having traditional Minton tiled floor and Upvc frosted double glazed door leading to:

Lounge
3.64m x 3.64m (11'11" x 11'11")

having wood effect laminate flooring, one central heating radiator and Upvc double glazed window to front elevation.

Lobby

having door leading to:

Cellar

having consumer unit for electrics, electric meter, lighting and storage.

Dining Room
3.64m x 3.64m (11'11" x 11'11")

having wood effect laminate flooring, gas fired combination Worcester boiler, thermostat for central heating, one central heating radiator and Upvc double glazed window to rear elevation.

Lobby
1.47m x 1.47m (4'10" x 4'10")

having door leading to entryway, wooden door leading to side elevation and wooden window to side.

Kitchen
2.13m x 2.73m (7'0" x 8'11")

having range of base and wall mounted units, granite effect laminate work surface, stainless steel sink and drainer with chrome mixer tap, tiled splashback, space for washing machine and fridge/freezer, one central heating radiator and wooden single glazed window to side elevation.

On The First Floor
Landing

leading to:

Master Bedroom
3.64m x 3.64m (11'11" x 11'11")

having one central heating radiator and Upvc double glazed window to front elevation.

Bedroom Two
2.73m x 3.68m (8'11" x 12'1")

having built-in storage cupboard which has access to loft space, one central heating radiator and Upvc double glazed window to rear elevation.

Bathroom
3.67m x 1.9m (12'0" x 6'3")

having low level wc, pedestal wash basin with chrome taps, bath with chrome fittings, built-in storage cupboard one central heating radiator and frosted Upvc double glazed window to rear elevation.

Outside

To the front is a good space for bins and a paved pathway leads to the front door and to the entryway. To the rear is an enclosed garden with a large paved patio area, outbuildings for storage, original outhouse, further outbuildings which supply plenty of storage and the rest of the garden is mainly laid to lawn.

Services

All mains services are believed to be connected to the property.

Measurement

The approximate room sizes are quoted in metric. The imperial equivalent is included in brackets.

Tenure

Freehold - with vacant possession upon completion. Newton Fallowell recommend that purchasers satisfy themselves as to the tenure of the property and we would recommend that they consult a legal representative such as a Solicitor appointed in their purchase.

Note

The services, systems and appliances listed in this specification have not been tested by Newton Fallowell and no guarantee as to their operating ability or their efficiency can be given.

Note

Anti-Money Laundering Regulations – Intending purchasers will be required to provide identification documents via our compliance provider, Coadjute, at a cost of £45 plus VAT per transaction. This will need to be actioned at the offer stage and we would ask for your co-operation in order that there will be no delay in agreeing the sale.


Mortgage calculator

Calculate Your Stamp Duty
£
Results
Stamp Duty To Pay:
Effective Rate:
Tax Band % Taxable Sum Tax

High Street, Newhall, Swadlincote, Derbyshire, DE11

Struggling to find a property? Get in touch and we'll help you find your ideal property.

Interested in viewing this property?
Book a Viewing
Main menu