2 bedroom Detached bungalow Sold STC

The Wood, Meir, Stoke-on-Trent, ST3

£180,000 | SSTC

2 Bedrooms
1 Bathrooms
1 Receptions

Stoke on Trent

27 Piccadilly, 
Hanley, 
Stoke on Trent, 
ST1 1EN, 
Standout Features

Property Description

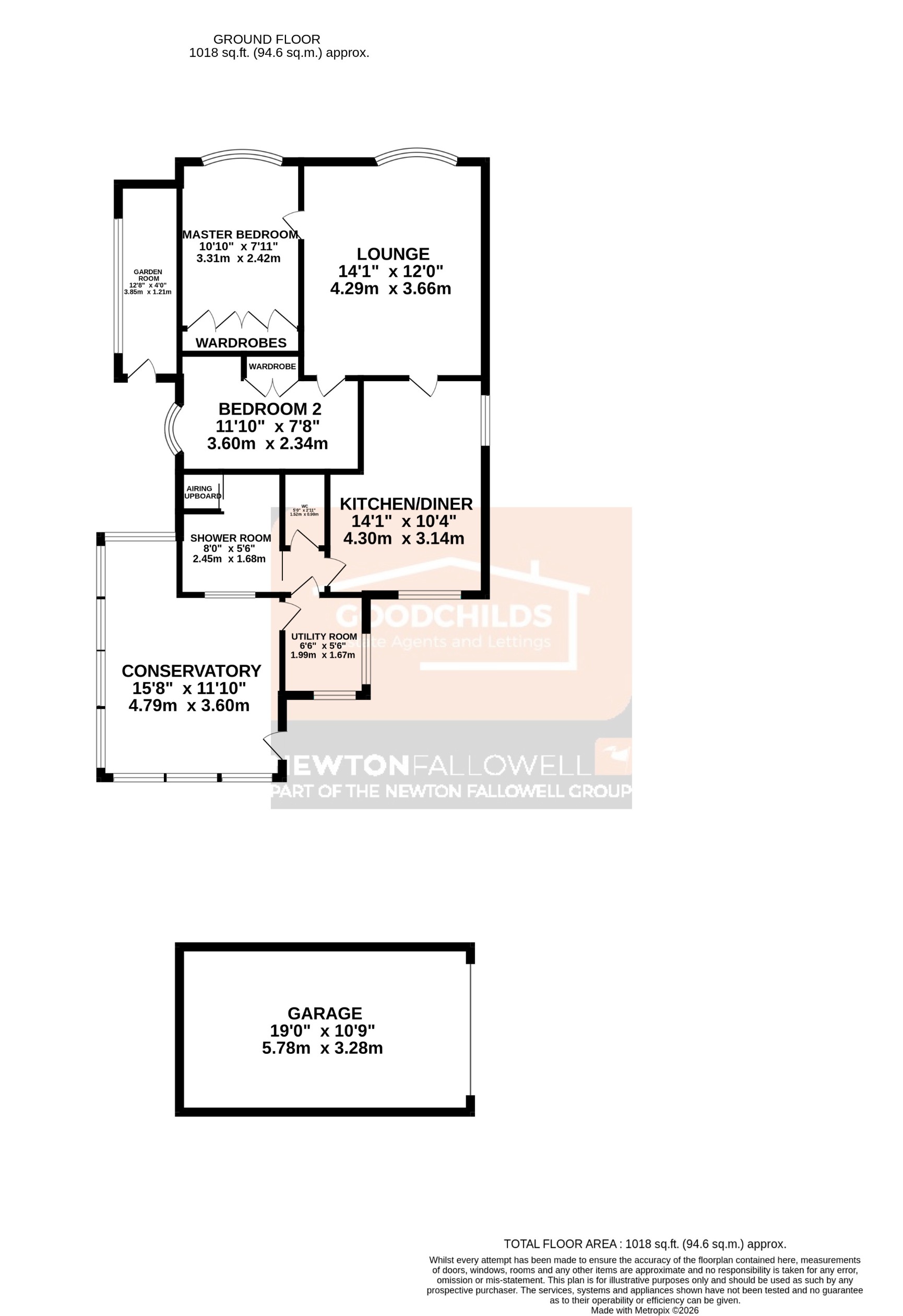
NO UPWARD CHAIN- This two bedroom detached bungalow presents an excellent opportunity to acquire a good size property situated within the popular area of Meir. Occupying a substantial and particularly private plot, the property is ideal for purchasers seeking comfortable single-level living.

 

The property features two bedrooms, each with fitted wardrobes, complemented by a shower room and a separate W.C, ensuring practical convenience for everyday living. The principal living space comprises a spacious lounge, seamlessly connected to a kitchen and dining area, which provides a versatile environment for cooking and entertaining. In addition, a conservatory overlooks the gardens, delivering a bright, extended living space perfectly suited for relaxation in the warmer months. Completing the interior is a handy utility room which is ideal for keeping the noisy appliances out of the way.

 

Further enhancing the property’s appeal is the attractive outdoor space, with both front and rear private gardens providing ample opportunity for a variety of outdoor uses. The plot offers significant privacy, creating a tranquil setting away from neighbouring homes.

 

Parking is another great feature, with two allocated parking spaces as well as a detached garage that offers secure and convenient storage, whether for vehicles or other possessions. The property additionally benefits from double glazing throughout and a gas central heating system.

  EPC rating: Unknown. Council tax band: B, Tenure: Freehold,

Additional Information
Tenure:
Freehold
Council Tax Band:
B
Rooms
Front

Garden laid to lawn with privacy hedges.

Conservatory

Radiator and door into rear garden.

Utility room

Space for appliances and double glazed window to front and side.

Shower room

White W.C and walk-in shower. Radiator, airing cupboard and double glazed window to front.

Separate W.C

White W.C and part tiled walls.

Kitchen/diner

Range of wall and base units with preparation work surfaces. Cooker, fridge, radiator, built-in table with benches and double glazed window to side and rear.

Lounge

Radiator, feature fireplace and double glazed bay window to front.

Master bedroom

Radiator, fitted wardrobes and double glazed bay window to front.

Bedroom two

Radiator, fitted wardrobe and double glazed window to side.

Garage

Up-and-over door to front. Electric power & lighting.

Rear

Rear garden with golden gravel borders and block paved seating space. Gated access to side and to the garage.

ID CHECKS

Once an offer is accepted on a property marketed by Goodchilds Estate Agents we are required to complete ID verification checks on all buyers and to apply ongoing monitoring until the transaction ends. Whilst this is the responsibility of Goodchilds Estate Agents we may use the services of Landmark or Move Butler, to verify clients' identity. This is not a credit check and therefore will have no effect on your credit history. You agree for us to complete these checks, and the cost of these checks is £36.00 inc. VAT per buyer. This is paid in advance, when an offer is agreed and prior to a sales memorandum being issued. This charge is non-refundable.


Mortgage calculator

Calculate Your Stamp Duty
£
Results
Stamp Duty To Pay:
Effective Rate:
Tax Band % Taxable Sum Tax

The Wood, Meir, Stoke-on-Trent, ST3

Struggling to find a property? Get in touch and we'll help you find your ideal property.

Interested in viewing this property?
Book a Viewing
Main menu