2 bedroom Detached bungalow Sold STC

Barry Drive, Kirby Muxloe, LE9

Offers in excess of £399,950 | SSTC

2 Bedrooms
2 Bathrooms
1 Receptions

Leicester Forest East

18 Hinckley Road, 
Leicester Forest East, 
LE3 3GH, 
Standout Features

Property Description

Offered to the market with no upward chain, this two double bedroomed detached bungalow represents an exciting opportunity for those in search of single storey living. Featuring gas central heating and an upgraded roof, the layout includes an entrance porch and hall, lounge diner, kitchen, bedroom one with an en-suite bathroom, a further double bedroom, bathroom and guest WC. Occupying a corner position, the plot enjoys off road parking leading to garage and storage rooms, with a particularly private garden to the rear. There is also access to a useful utility room extension. A rare opportunity and with scope to make further improvements, an early viewing is strongly recommended. EPC rating: D. Council tax band: E, Tenure: Freehold,

Additional Information
EPC Rating:
D
Tenure:
Freehold
Rooms
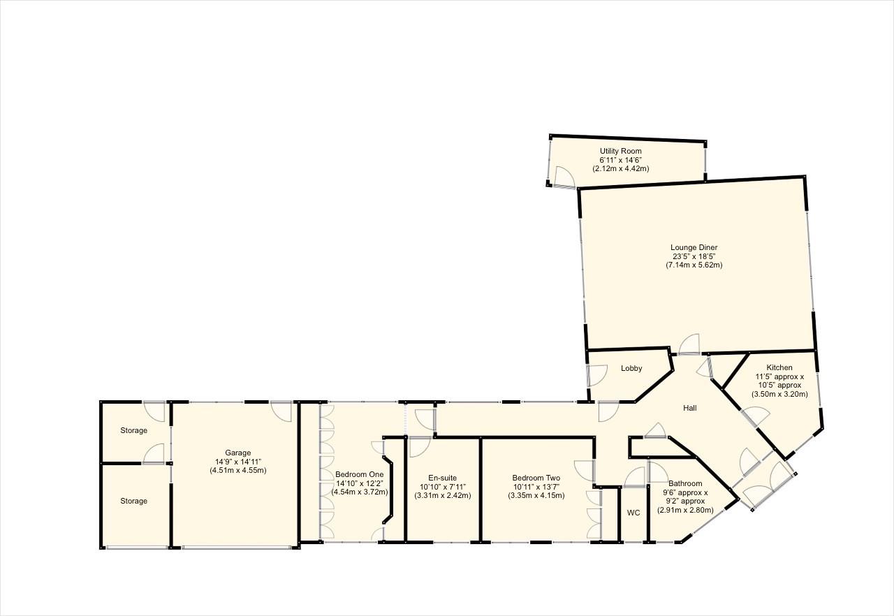
Accommodation

French doors open into the:

Entrance Porch

With a door leading to the:

Entrance Hall

Presented with carpet flooring, the welcoming entrance hall gives access to the majority of the accommodation. With central heating radiators, two storage cupboards and two windows to the rear garden.

Lounge Diner
7.14m x 5.62m

Affording plenty of space for both formal dining and comfortable sitting, the reception room is presented with carpet flooring and offers a window to the front elevation. With a built in air conditioning unit, coving, two central heating radiators and a gas fireplace. Sliding patio doors lead to the private rear garden.

Kitchen
3.48m approx x 3.18m approx

fitted with a range of wall mounted and base units with complementary work surfaces over and tiled splashbacks. Features include a built in oven, gas hob, inset sink and drainer and space for appliances. With two front elevation windows.

Bedroom One
4.54m x 3.72m

Enjoying the use of built in wardrobes, bedroom one is a comfortable double and features dual aspect glazing allowing ample natural light to flood the room. With carpet flooring, central heating radiator and TV point. There is also an air conditioning unit.

En-suite
3.31m x 2.42m

A particular selling feature of the accommodation is the en-suite fitted with a contemporary four piece suite comprising a shower cubicle, bath, wc and wash hand basin with surrounding storage. With underfloor heating, spotlighting, window to the side and tiled flooring.

Bedroom Two
3.35m x 4.15m

Currently being used as a dining room, bedroom two is a double room and enjoys the use of a built in wardrobe, with two side elevation windows, two central heating radiators and carpet flooring.

Bathroom
2.90m approx x 2.79m approx

Fitted with a three piece suite comprising a bath with 'Triton' shower over, wash hand basin and wc, with surrounding storage and complementary tiled walls. With dual aspect glazing and a heated towel rail.

Guest wc

With a wc and wash hand basin, with a window to the side elevation and a central heating radiator.

Utility Room
2.12m x 4.42m

Providing further storage and space for appliances, with an inset sink and double drainer, carpet flooring, wall mounted Worcester Bosch boiler and dual aspect glazing.

Rear Lobby

Providing useful storage, with a door leading to the rear garden.

Outside

Occupying a corner position, the front and side feature lawned areas with planted borders and a brick wall perimeter. There is also a driveway providing off road parking and leading to the garage and storage rooms. To the rear is a low maintenance garden oozing a particularly private feel with fencing to boundaries, raised planted borders, synthetic lawn and a patio area.

Garage
4.51m x 4.55m

Larger than normal garage, with light, power, consumer unit, electric door to the front, electric car charging point and rear access door to the garden.

Storage Room

Split into two sections, the first measuring 1.76m x 2.32m and providing useful storage, with a door to the garden. The front storage room measures 3.45m x 2.32m and offers a door to the front.

Tenure & Council Tax

We understand the property to be freehold with vacant possession upon completion. Blaby District Council - Tax Band E. Please be advised that when a property is sold, local authorities reserve the right to re-calculate the council tax band.

Viewing Arrangements

Viewings are strictly by appointment only.

Need Independent Mortgage Advice?

We are pleased to introduce Benjamin York, who works with Newton Fallowell Estate Agents to provide our customers with expert mortgage advice. He has access to thousands of mortgages, including exclusive deals not available on the high street. His advice is tailored to your circumstances, whether you’re looking to take your first steps on the property ladder, moving home, or even investing in a buy-to-let property. He can help find the right mortgage for you and support your application every step of the way. To speak with our expert 'in branch' adviser, please contact our office.

Making an Offer

In line with current money laundering regulations, prospective buyers will be asked to provide us with photo I.D. (e.g. Passport, driving licence, bus pass etc) and proof of address (e.g. Current utility bill, bank statement etc). You will also be asked to provide us with proof of how you will be funding your purchase. Please note that when making an offer, if you are taking out a mortgage, you will also be asked to have a no obligation chat with our 'in branch' mortgage adviser to confirm your affordability. We ask for your cooperation in this matter. We ask for your cooperation in this matter as this information will be required before a sale can be agreed.

Agents Note

These particulars, whilst believed to be accurate are set out as a general outline only for guidance and do not constitute any part of an offer or contract. Details are given without any responsibility, and any intending purchasers, lessees or third parties should not rely on them as statements of representation of fact, but must satisfy themselves by inspection or otherwise as to their accuracy. All photographs, measurements (width x length), floorplans and distances referred to are given as a guide only and should not be relied upon for the purchase of carpets or any other fixtures or fittings. All services and appliances have not and will not be tested by Newton Fallowell. Lease details, service ground rent are given as a guide only and should be checked and confirmed by your solicitor prior to exchange of contracts. No person in this firms employment has the authority to make or give any representation or warranty in respect of the property. We retain the copyright.

Referrals

Newton Fallowell and our partners provide a range of services to our vendors and purchasers, although you are free to choose an alternative provider. We can refer you to Benjamin York at Chamelo to help with finances, we may receive a referral fee if you take out a mortgage through him. If you require a solicitor to handle your sale or purchase, we can refer you on to a panel of preferred providers and we will receive a referral fee should you decide to use them to sell or purchase a property. We can also refer you to a surveyor and energy assessor and we will receive a referral fee should you use their services. If you require more information regarding our referral programmes, please ask at our office.

Free Property Valuations

If you have a house to sell then we would love to provide you with a free no obligation valuation.


Mortgage calculator

Calculate Your Stamp Duty
£
Results
Stamp Duty To Pay:
Effective Rate:
Tax Band % Taxable Sum Tax

Barry Drive, Kirby Muxloe, LE9

Struggling to find a property? Get in touch and we'll help you find your ideal property.

Interested in viewing this property?
Book a Viewing
Main menu