4 bedroom Cottage For Sale

Main Street, Aslockton, Nottingham

£450,000 | Available

4 Bedrooms
2 Bathrooms
3 Receptions

Bingham

Cranmer House, 
Market Place, 
Bingham, 
NG13 8AN, 
Property Description

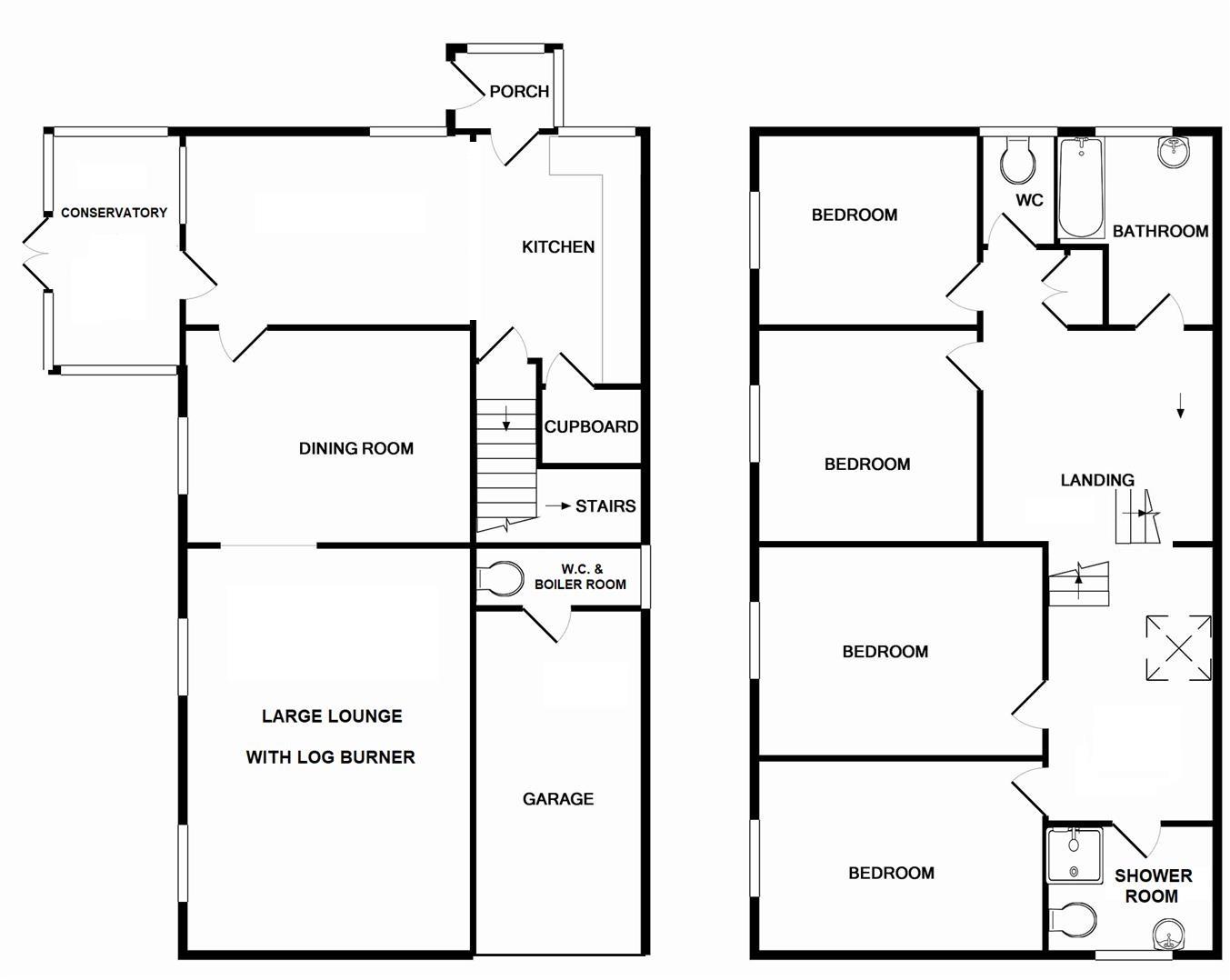
Entrance
Double glazed door into Entrance Porch.

Entrance Porch
UPVC double glazed window, tiled flooring and wooden and glazed door into Open Plan Kitchen Diner.

Open Plan Kitchen Diner
3.98 max x 6.67 max (13'0" max x 21'10" max) - A lovely light and bright characterful room being fitted with a good range of cream base and wall mounted units with solid wooden work surface over, inset ceramic sink with traditional styled mixer tap, space and plumbing for washing machine and dishwasher, built-in electric fan assisted double oven and grill with touch hob and extractor fan over, space for fridge freezer, decorative fireplace, beam to ceiling, wood effect tiled flooring, stairs rising top the first floor and wooden latch and brace doors to Walk-in Pantry and Dining Room / Snug and wooden and glazed door to the Conservatory.

Conservatory
2.14 x 3.31 (7'0" x 10'10") - UPVC double glazed construction having French doors and tiled flooring.

Dining Room / Snug
3.92 x 3.37 (12'10" x 11'0") - Double glazed window. opening through to the Living Room and having decorative fireplace and wall light points.

Living Room
6.42 x 3/86 (21'0" x 9'10"/282'1") - A spacious Primary Reception Room with double glazed windows, wall light points, television point, beam to ceiling, feature decorative fireplace and brick fireplace with Oak mantel and log burning stove.

Landing One
A generously proportioned landing which could be utilised as a home office with double glazed Velux Skylight and wooden latch and brace doors to Bedrooms Two and Three and Shower Room.

Bedroom Two
3.93 x 3.27 (12'10" x 10'8") - Feature period decorative fireplace and double glazed window.

Bedroom Three
3.96 x 2.77 (12'11" x 9'1") - Exposed floor boards and double glazed window.

Shower Room
1.54 x 2.44 (5'0" x 8'0") - Fitted with a three piece white suite comprising: W.C., wash basin and shower cubicle with chrome rain shower, double glazed window, heated towel rail and tiling to the floor and wet areas.

Landing Two
Wooden latch and brace doors to Bedrooms One, Bedroom Four, Bathroom and separate W.C. and having airing cupboard.

Family Bathroom
2.84 x 1.49 (9'3" x 4'10") - Fitted with a two piece white suite comprising: Wall hung wash basin and panel bath with shower over, tiling to the floor and walls, double glazed window and heated towel rail.

Separate W.C.
Fitted W.C. tiling to the floor and wet areas and double glazed window.

Bedroom One
4.07 x 3.38 (13'4" x 11'1") - Double glazed window.

Bedroom Four
4.15 x 2.65 (13'7" x 8'8") - Double glazed window.

Garage
Garage door to the front elevation, light and power and door to W.C.

W.C.
Fitted with a two piece white suite comprising: W.C. and wash basin and housing the gas central heating boiler.

Outside
Set back from the Main Street and being approached by a shared gravel driveway this Detached Character Home sits gable end on with a driveway providing off street parking and having a pedestrian pathway leading to the Entrance and Garden. The Garden is laid mainly to lawn with an outbuilding ideal for storage and timber summer house.

Agents Note
This property has mains gas central heating, mains drains, water and electric.
There is broadband in the area and mobile phone signal.
Very Low risk of surface water flooding, very low risk of flooding from rivers and the sea:https://check-long-term-flood-risk.service.gov.uk/risk#

Money Laundering Regulations
Intending purchasers will be asked to produce identification documentation at a later stage and we would ask for your co-operation in order that there will be no delay in agreeing the sale.

Note
Although these particulars are thought to be materially correct, their accuracy cannot be guaranteed and they do not form part of any contract. All services and appliances have not and will not be tested. Floorplans are there as a guide only and measurements should be regarded as approximate.
Belvoir and our partners provide a range of services to buyers, although you are free to use an alternative provider. For more information simply speak to someone in our branch today. We can refer you on to The Mortgage Advice Bureau for help with finance. We may receive a fee of 20%, on average this is £100 including VAT, if you take out a mortgage through them. If you require a solicitor to handle your purchase and or sale we can refer you on to Hawley and Rodgers or Movewithus. We may receive a fee of £120 - £180 including VAT per referral, if you use their services.

Rooms
Entrance
Double glazed door into Entrance Porch.
Entrance Porch
UPVC double glazed window, tiled flooring and wooden and glazed door into Open Plan Kitchen Diner.
Open Plan Kitchen Diner
3.98 max x 6.67 max (13'0" max x 21'10" max)
A lovely light and bright characterful room being fitted with a good range of cream base and wall mounted units with solid wooden work surface over, inset ceramic sink with traditional styled mixer tap, space and plumbing for washing machine and dishwasher, built-in electric fan assisted double oven and grill with touch hob and extractor fan over, space for fridge freezer, decorative fireplace, beam to ceiling, wood effect tiled flooring, stairs rising top the first floor and wooden latch and brace doors to Walk-in Pantry and Dining Room / Snug and wooden and glazed door to the Conservatory.
Conservatory
2.14 x 3.31 (7'0" x 10'10")
UPVC double glazed construction having French doors and tiled flooring.
Dining Room / Snug
3.92 x 3.37 (12'10" x 11'0")
Double glazed window. opening through to the Living Room and having decorative fireplace and wall light points.
Living Room
6.42 x 3/86 (21'0" x 9'10"/282'1")
A spacious Primary Reception Room with double glazed windows, wall light points, television point, beam to ceiling, feature decorative fireplace and brick fireplace with Oak mantel and log burning stove.
Landing One
A generously proportioned landing which could be utilised as a home office with double glazed Velux Skylight and wooden latch and brace doors to Bedrooms Two and Three and Shower Room.
Bedroom Two
3.93 x 3.27 (12'10" x 10'8")
Feature period decorative fireplace and double glazed window.
Bedroom Three
3.96 x 2.77 (12'11" x 9'1")
Exposed floor boards and double glazed window.
Shower Room
1.54 x 2.44 (5'0" x 8'0")
Fitted with a three piece white suite comprising: W.C., wash basin and shower cubicle with chrome rain shower, double glazed window, heated towel rail and tiling to the floor and wet areas.
Landing Two
Wooden latch and brace doors to Bedrooms One, Bedroom Four, Bathroom and separate W.C. and having airing cupboard.
Family Bathroom
2.84 x 1.49 (9'3" x 4'10")
Fitted with a two piece white suite comprising: Wall hung wash basin and panel bath with shower over, tiling to the floor and walls, double glazed window and heated towel rail.
Separate W.C.
Fitted W.C. tiling to the floor and wet areas and double glazed window.
Bedroom One
4.07 x 3.38 (13'4" x 11'1")
Double glazed window.
Bedroom Four
4.15 x 2.65 (13'7" x 8'8")
Double glazed window.
Garage
Garage door to the front elevation, light and power and door to W.C.
W.C.
Fitted with a two piece white suite comprising: W.C. and wash basin and housing the gas central heating boiler.
Outside
Set back from the Main Street and being approached by a shared gravel driveway this Detached Character Home sits gable end on with a driveway providing off street parking and having a pedestrian pathway leading to the Entrance and Garden. The Garden is laid mainly to lawn with an outbuilding ideal for storage and timber summer house.
Agents Note
This property has mains gas central heating, mains drains, water and electric.
There is broadband in the area and mobile phone signal.
Very Low risk of surface water flooding, very low risk of flooding from rivers and the sea:https://check-long-term-flood-risk.service.gov.uk/risk#
Money Laundering Regulations
Intending purchasers will be asked to produce identification documentation at a later stage and we would ask for your co-operation in order that there will be no delay in agreeing the sale.
Note
Although these particulars are thought to be materially correct, their accuracy cannot be guaranteed and they do not form part of any contract. All services and appliances have not and will not be tested. Floorplans are there as a guide only and measurements should be regarded as approximate.
Belvoir and our partners provide a range of services to buyers, although you are free to use an alternative provider. For more information simply speak to someone in our branch today. We can refer you on to The Mortgage Advice Bureau for help with finance. We may receive a fee of 20%, on average this is £100 including VAT, if you take out a mortgage through them. If you require a solicitor to handle your purchase and or sale we can refer you on to Hawley and Rodgers or Movewithus. We may receive a fee of £120 - £180 including VAT per referral, if you use their services.

Mortgage calculator

Calculate Your Stamp Duty
£
Results
Stamp Duty To Pay:
Effective Rate:
Tax Band % Taxable Sum Tax

Main Street, Aslockton, Nottingham

Struggling to find a property? Get in touch and we'll help you find your ideal property.

Interested in viewing this property?
Book a Viewing
Main menu