3 bedroom Character Property For Sale

Eton Road, Burton-on-Trent, DE14

£275,000 | Available

3 Bedrooms
1 Bathrooms
2 Receptions

Burton on Trent

36 Station Street, 
Burton on Trent, 
DE14 1AX, 
Standout Features

Property Description

Newton Fallowell are delighted to be able to offer for sale this spacious Victorian characterful home located in a popular and convenient position.  The home has been lovingly restored and well maintained by the current owners who have up-graded and enhanced the property over recent years.  Internally the accommodation comprises: - Impressive entrance hall with Minton tiled floor and period staircase, bay windowed front sitting room, second bay windowed sitting room, lovely appointed re-fitted breakfast kitchen, rear lobby, utility/cloaks and rear entrance.  On the first floor a landing leads to three double bedrooms and a sumptuously appointed bathroom with four piece suite. There is a very large attic space which, subject to consent, could easily be converted to further accommodation. The grounds to the property are to the front and double gates lead to a yard and parking area, the main garden being screened by privet hedgerows and feature extensive lawned areas, mature trees and a lovely summerhouse area. EPC rating: D. Council tax band: B, Tenure: Freehold,

Additional Information
EPC Rating:
D
Tenure:
Freehold
Council Tax Band:
B
Rooms
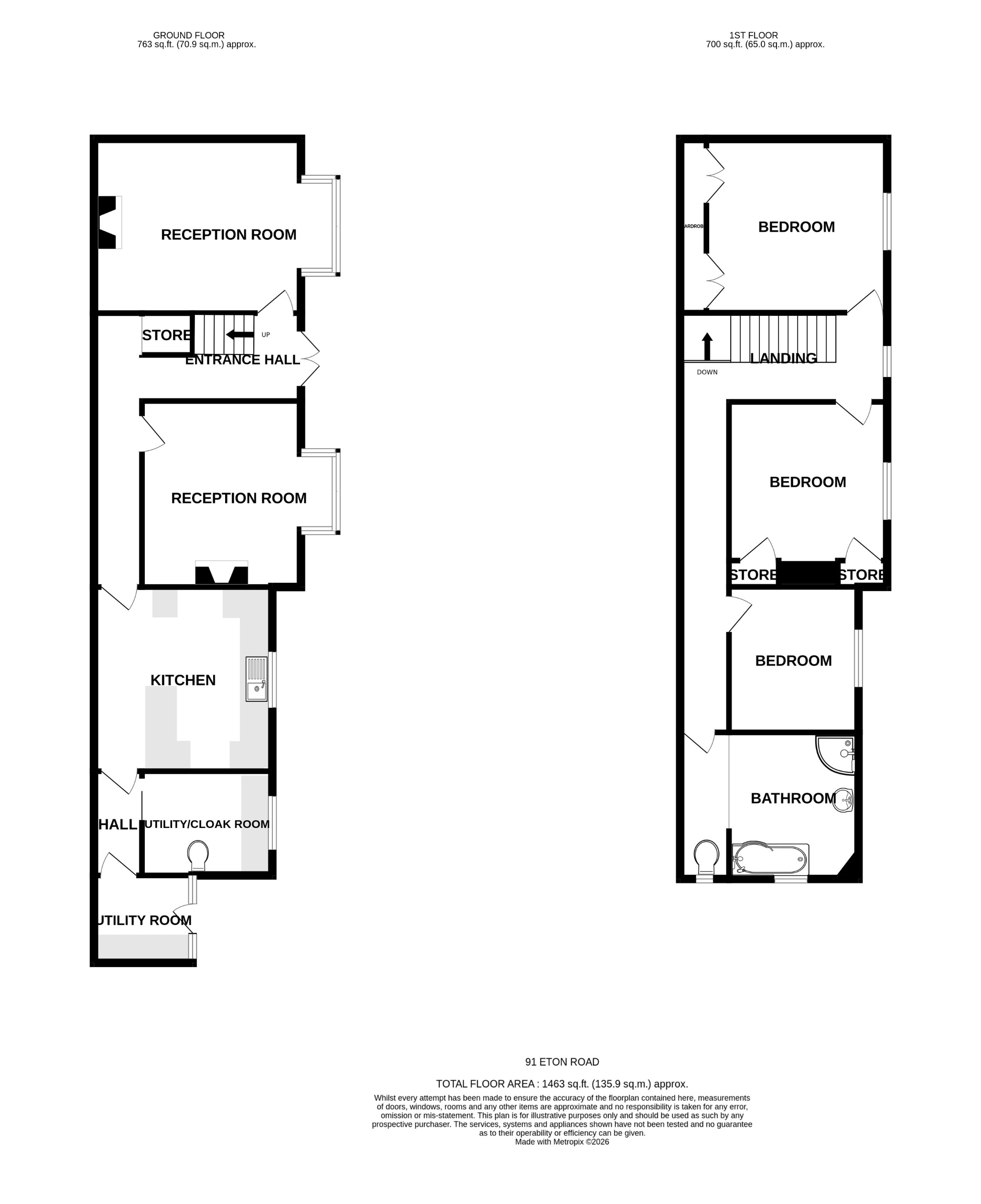
Accommodation In Detail

Upvc double glazed obscure entrance doors leading to:

impressive Entrance Hall
4.56m x 1.87m (15'0" x 6'2")

having a beautiful original Minton tiled floor, staircase rising to first floor, two central heating radiators, stepped moulded plaster coving to ceiling, useful understairs storage cupboard and wall light points.

Sitting Room
3.7m x 4.4m extending to 5.1m into bay

having Upvc double glazed walk-in square bay window to front elevation, stripped pine original flooring, feature fireplace with cast iron log burner surmounted on a tiled hearth and stepped moulded plaster coving to ceiling.

Second Sitting Room
3.72m x 3.43m extending to 4.13m into bay

having quality fitted laminate flooring, feature fireplace with tiled hearth and backplate together with inset Living Flame gas fire, one central heating radiator, fitted dado rail, stepped moulded plaster coving to ceiling and centre ceiling rose.

Re-Fitted Breakfast Kitchen
3.8m x 3.9m (12'6" x 12'10")

having Upvc double glazed window to front elevation, a stunning range of high gloss grey fronted base and eye level units with complementary rolled edged marble effect working surfaces, space for cooker range with gas point and extractor canopy over, polycarbonate sink and draining unit, Upvc double glazed window to side elevation, low intensity spotlights to ceiling and one central heating radiator.

Inner Lobby

leading to:

Utility Room/Guest Cloaks
2.3m x 2.08m (7'7" x 6'10")

having plumbing for washing machine, low level wc with integrated basin and obscure Upvc double glazed window to side elevation.

Rear Lobby
1.91m x 2.09m (6'3" x 6'10")

having Upvc half obscure double glazed door to front elevation with obscure glazed lights to either side.

On The First Floor
Landing

having Upvc double glazed window to front elevation, wall light points, access to loft space and one central heating radiator.

Master Bedroom
4.08m x 3.73m (13'5" x 12'3")

having Upvc double glazed window to front elevation, range of built-in wardrobes and cupboards.

Bedroom Two
3.45m x 3.34m (11'4" x 10'11")

having quality fitted laminate flooring, one central heating radiator, Upvc double glazed windows to front elevation and two useful full height storage cupboards.

Bedroom Three
2.96m x 2.85m (9'9" x 9'4")

having Upvc double glazed window to front elevation and one central heating radiator.

Sumptuously Appointed Bathroom

having suite comprising P-shaped panelled bath with Drenche shower over, low level wc with concealed cistern, vanity wash basin with range of cupboards and shower with multi functions, music and lighting. Ceramic tiling to floor, full tilign to bath areas, heated charcoal vertical central heating radiator, low intensity spotlights to ceiling and two obscure Upvc double glazed windows to rear elevation.

Outside

The property is approached by a pair of double gates which provide access to an enclosed yard which provides ample parking. The main garden to the front is well screened by a high privet hedge and features mature trees and shrubs but is mainly set to lawn. At the far extent of the garden is an attractive summerhouse.

Services

All mains services are believed to be connected to the property.

Measurement

The approximate room sizes are quoted in metric. The imperial equivalent is included in brackets.

Tenure

Freehold - with vacant possession upon completion. Newton Fallowell recommend that purchasers satisfy themselves as to the tenure of the property and we would recommend that they consult a legal representative such as a Solicitor appointed in their purchase.

Note

The services, systems and appliances listed in this specification have not been tested by Newton Fallowell and no guarantee as to their operating ability or their efficiency can be given.
Anti-Money Laundering Regulations – Intending purchasers will be required to provide identification documents via our compliance provider, Coadjute, at a cost of £45 plus VAT per transaction. This will need to be actioned at the offer stage and we would ask for your co-operation in order that there will be no delay in agreeing the sale.


Mortgage calculator

Calculate Your Stamp Duty
£
Results
Stamp Duty To Pay:
Effective Rate:
Tax Band % Taxable Sum Tax

Eton Road, Burton-on-Trent, DE14

Struggling to find a property? Get in touch and we'll help you find your ideal property.

Interested in viewing this property?
Book a Viewing
Main menu