2 bedroom Flat Sold STC

Ridgway Road, Hanley, Stoke-on-Trent, ST1

Offers over £115,000 | SSTC

2 Bedrooms
2 Bathrooms
1 Receptions

Stoke on Trent

27 Piccadilly, 
Hanley, 
Stoke on Trent, 
ST1 1EN, 
Standout Features

Property Description

TOP FLOOR APARTMENT WITH BALCONY VIEWS OF HANLEY PARK- This immaculately presented two-bedroom apartment combines contemporary living with a superb location, situated directly opposite Hanley Park and just a short walk from Hanley Town Centre.

Inside, the property is thoughtfully maintained and features a spacious open-plan layout that seamlessly blends the lounge, kitchen, and dining areas, ideal for both everyday living and entertaining guests. Both bedrooms are generously sized, with the master bedroom enjoying the added benefit of a private en-suite shower room.

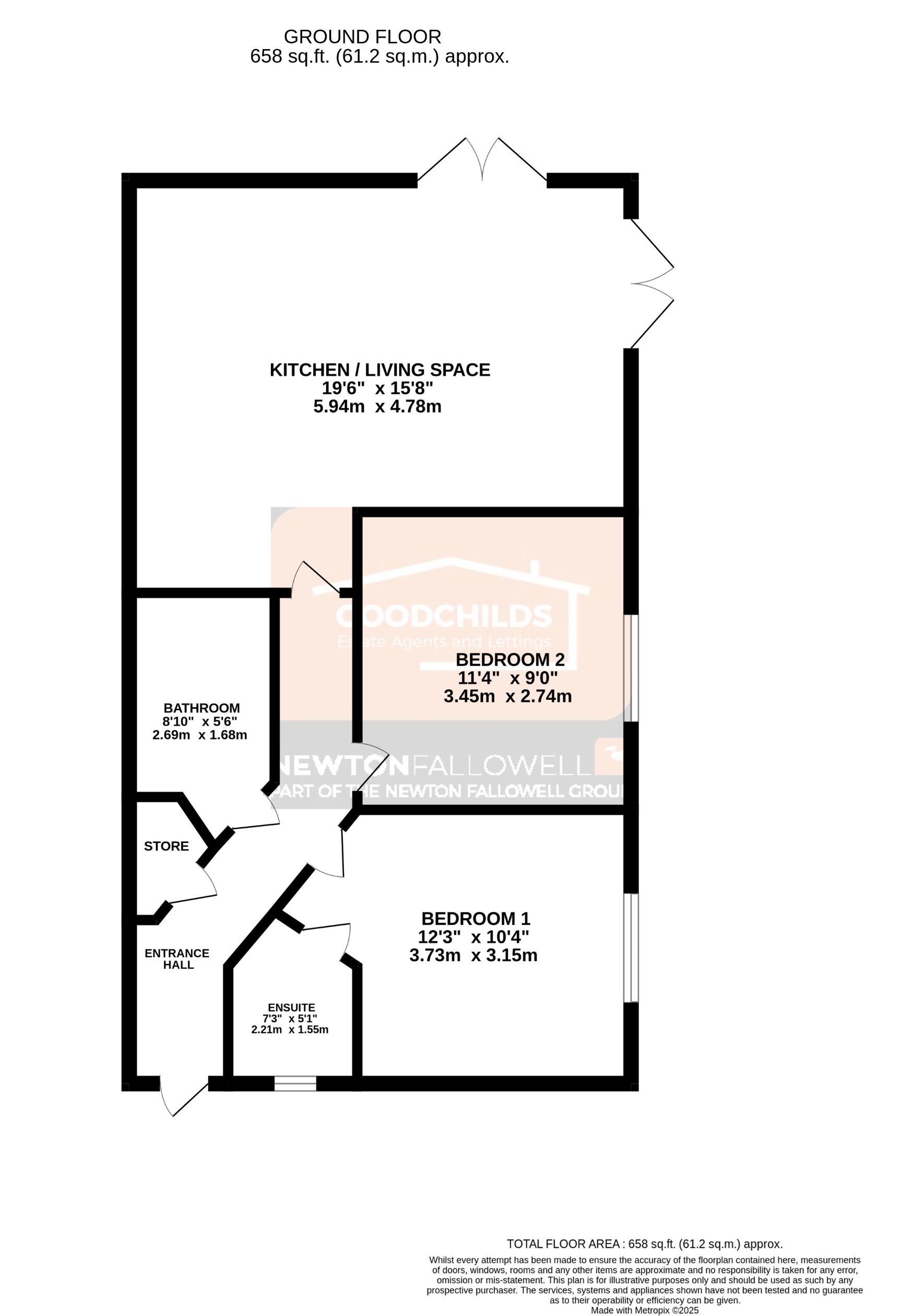
In brief, the accommodation comprises of; entrance hallway, open-plan lounge/kitchen/diner, two bedrooms, en-suite to master, and a family bathroom. Externally, there is an allocated parking space next to the entrance to the building. EPC rating: Unknown. Council tax band: B, Tenure: Leasehold, Annual ground rent: £226, Annual service charge: £1732, Service charge description: Lease End Date  23/12/2168
Lease Term  155 years from 23 December 2013
Lease Term Remaining 143 years,

Additional Information
Tenure:
Leasehold
Ground Rent:
£226 per year
Service Charge:
£1,732 per year
Council Tax Band:
B
Rooms
Externally

One allocated parking space close to the entrance to the building.

Entrance hallway

Radiator, storage cupboard and composite door out to communal hallway.

Open plan kitchen/living room
19'6 x 15'8

Range of wall and base units with preparation work surfaces. Integrated oven, fridge/freezer, washer/dryer and gas hobs with extractor fan over. Breakfast bar with seating space, two radiators and two sets of french doors opening onto the balcony.

Master bedroom
12'3 x 10'4 max

Radiator and double glazed window.

En-Suite
7'3 x 5'1

White W.C, sink and shower cubicle. Radiator, extractor fan and double glazed window.

Bedroom two
11'4 x 9'0

Radiator and double glazed window.

Bathroom
8'10 x 5'6

White three piece suite comprising of; W.C, sink and panelled bath with shower over. Radiator and extractor fan.

Balcony

Balcony with views over Hanley Park & the canal.

ID CHECKS

Once an offer is accepted on a property marketed by Goodchilds Estate Agents we are required to complete ID verification checks on all buyers and to apply ongoing monitoring until the transaction ends. Whilst this is the responsibility of Goodchilds Estate Agents we may use the services of Landmark or Move Butler, to verify clients' identity. This is not a credit check and therefore will have no effect on your credit history. You agree for us to complete these checks, and the cost of these checks is £36.00 inc. VAT per buyer. This is paid in advance, when an offer is agreed and prior to a sales memorandum being issued. This charge is non-refundable.


Mortgage calculator

Calculate Your Stamp Duty
£
Results
Stamp Duty To Pay:
Effective Rate:
Tax Band % Taxable Sum Tax

Ridgway Road, Hanley, Stoke-on-Trent, ST1

Struggling to find a property? Get in touch and we'll help you find your ideal property.

Interested in viewing this property?
Book a Viewing
Main menu